云禧之巅


作品说明
- 项目类型:住宅公寓
- 项目地点:常州市
- 建筑面积:220.0000㎡
- 项目造价:140.0000万元
- 参与设计师:潘飞
- 竣工时间:2024年6月
- 设计机构:无问设计
-
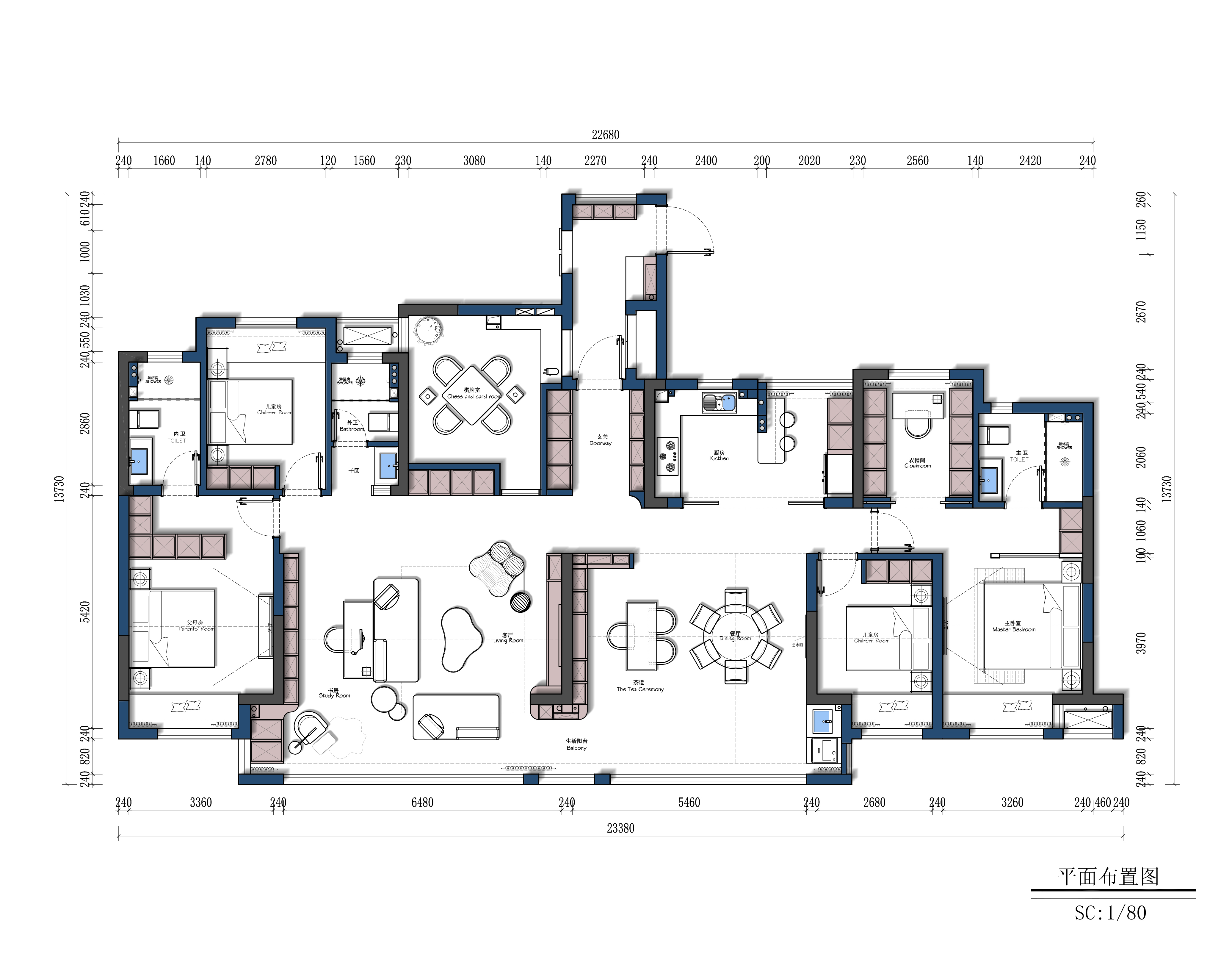
项目定位:这是套两户打通的案子,通过优化布局,合理分局家居空间
-
空间意境:大客厅跟餐厅茶室空间通过原有阳台之间连接在一起,达到围合整体空间的目的
-
空间布局:两户打通,独立的玄关空间,大客厅跟独立餐厅茶室布局,阳台之间外机位优化后,得到环绕型的动线
-
设计选材:地面连纹密封,整体效果比较满意。
-
用户体验:空间分布合理,每一处布局尺度恰到好处

