成都工匠·崇州乡村振兴学院
365
作品说明
- 项目类型:展示
- 项目地点:成都市
- 建筑面积:1000.0000㎡
- 项目造价:200.0000万元
- 竣工时间:2021.10
- 设计机构:公司名称:成都市筑室皆宜文化创意有限公司
-
项目定位:此项目地位于成都崇州市白头镇大雨村,建筑前身为大雨村村委会。
崇州当地丰富的匠人匠艺急待传承与传播。职业培训、乡村振兴已然成为新的社会责任。作为产学研一体化的教学基地,这里将成为崇州职业培训的顶梁柱。这个空间将承载手艺、创意、内容、课程、直播、零售、休闲、体验、艺术跨界组合为一体的乡村公共生活聚落。如何用设计重构空间,用设计唤醒乡村,成为这次设计的课题。 -
空间意境:秉承设计要“取之于地,用之于地”的理念,在先后拜访了数位当地匠人后,将传统工艺融入在空间中,当地产出的竹编、藤编、木雕、红砖等元素成为亮点元素,同时匠人们还亲自参与了空间内的多项手工制作。
-
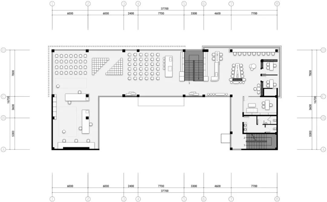
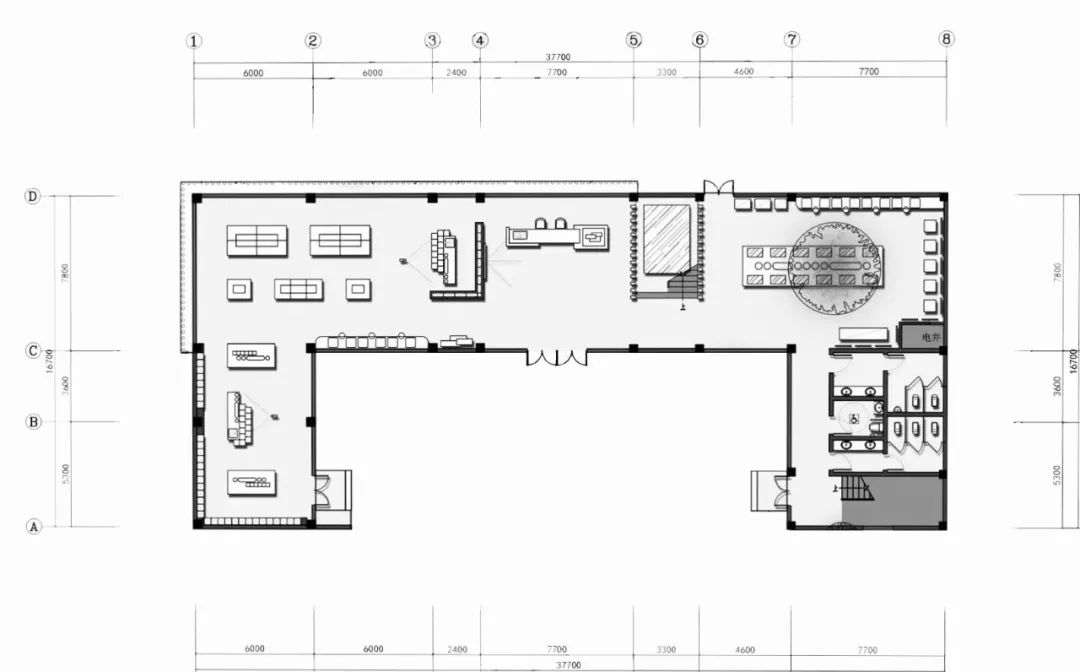
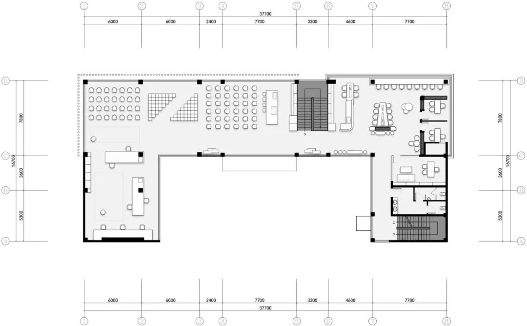
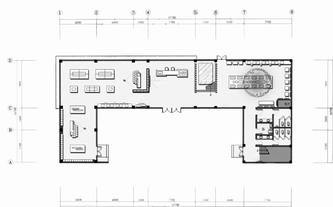
空间布局:整个学院为一座C形建筑,分为上下两层。
一楼主要以“匠人”、“匠艺”、“匠品”三个板块内容为主,匠人,弘扬在地手艺及民俗文化的使者;匠艺,美感与文化兼具的手工艺术品展示;匠品,在地优秀品牌的产品输出。
二楼以教学空间、办公空间为主。 -
设计选材:当地产出的竹编、藤编、木雕、红砖等元素。
-
用户体验:随着“第五届四川‘村长’论坛暨首届乡村振兴县委书记峰会”的顺利召开,崇州乡村振兴学院也正式面世,并陆续开展了线下和线上的课程,进入正常运营阶段。
体系化的课程教育同时也为当地原住民带来了新一轮的就业机会,授课、实操、直播销售等一体化教学让村民们切身感受到生活水平的改善。
除此之外,远在他乡的年轻人也能回到家乡创立事业。
建筑外观
从一楼进入的第一个空间,运用了崇州当地独有的竹编艺术作为支撑,将在地的竹子与中国传统穿斗形式结合,形成特有的造型吊顶。
竹结构细节
连接一、二楼的主楼梯
将视角移至一楼东侧,此空间为“匠人展区”,长条画幅和屏幕展示着各位匠人的事迹及作品介绍。竹林及长桌台面的溪流则寓意雨水源源不断地灌溉着川西林盘,这片土地孕育出数位了不起的匠人。注:水流为自循环系统,不会浪费水资源。
循环水流
一楼西侧则为“匠艺、匠品”展示售卖区,彩色亚克力与大理石的融合给空间赋予了活力感。
圆形矩阵内陈列着当地特色农产品。
亚克力折射出的彩色光影
美食直播区域
二楼空间东侧为教学区域,以匠艺教学、职业培训、大型会议为主。
教学区
教学区
二楼西侧为办公、共享休闲区域。天晴时在窗边眺望一望无垠的稻田,享受放松的田野时刻。
共享休闲区、办公区
共享休闲区、办公区
共享休闲区
建筑轴测图
一楼布局
二楼布局
0
0

认证 · 让您身份增值