空岛半山海景民宿



作品说明
- 项目类型:商业
- 项目地点:大理白族自治州
- 建筑面积:900.0000㎡
- 项目造价:400.0000万元
- 主案设计师: 孙洪玥
- 竣工时间:2024年10月
- 设计机构:成都易禾上品室内装饰设计有限公司
-
项目定位:法国哲学家加斯东·巴什拉曾在《空间的诗学》中指出,空间并非填充物体的容器,而是人类意识的居所。当我设计空间之时,也在考虑人与空间的关系,并希望所有的器物都是符合当下审美,本项目的软装产品由设计师把控出品,从家具的深化设计、木材和面料的选择,再到色板反复打样,每一处细节都是匠心的呈现。项目的定位为精品度假民宿,给客人带来放松治愈的度假体验
-
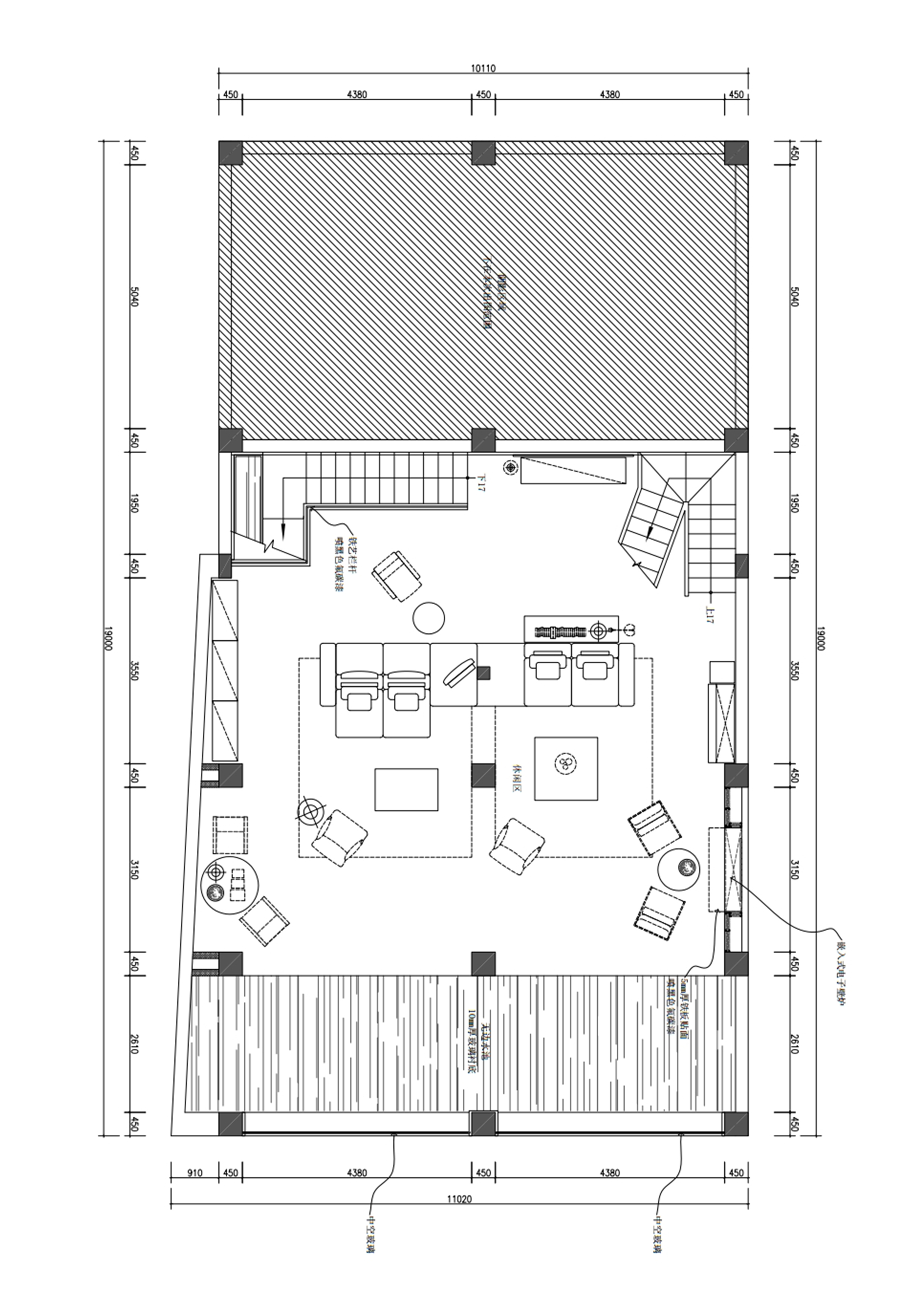
空间意境:项目位于洱海旁,空间的整体设计是自然复古的氛围去打造,大厅水景看台的设计,遮挡住了多余的视线,将空间外之景物纳入内部视线范围中,延伸空间的深度与广度,将室内与洱海连成一片,协调相融,虚实相生,尽感空灵、温柔、自在的基调。软装的陈列配合灯光设计,提前去考虑到每个角度和位置的构图,用艺术展览馆的陈列形式去表达,每一件饰品都有独特的表达。让客人仿佛在逛一个艺术展,一个中古店。
-
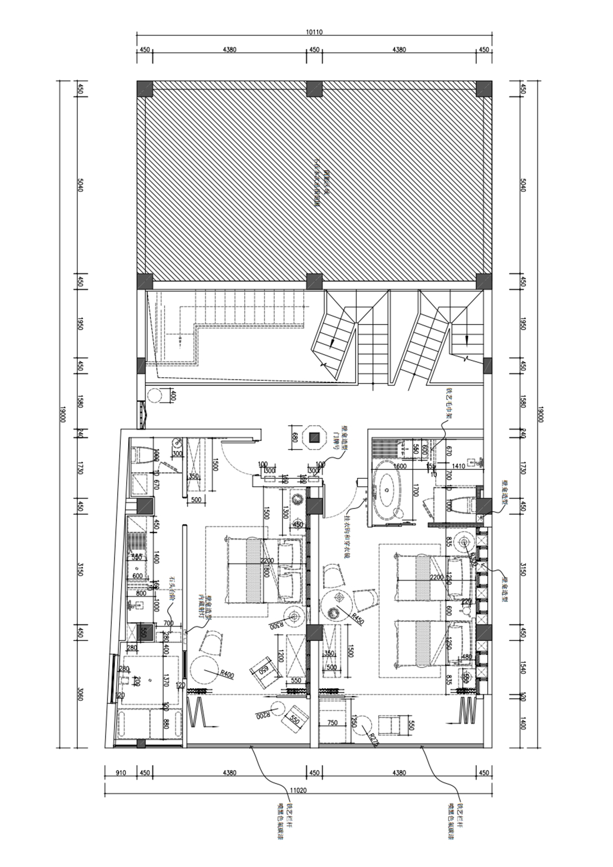
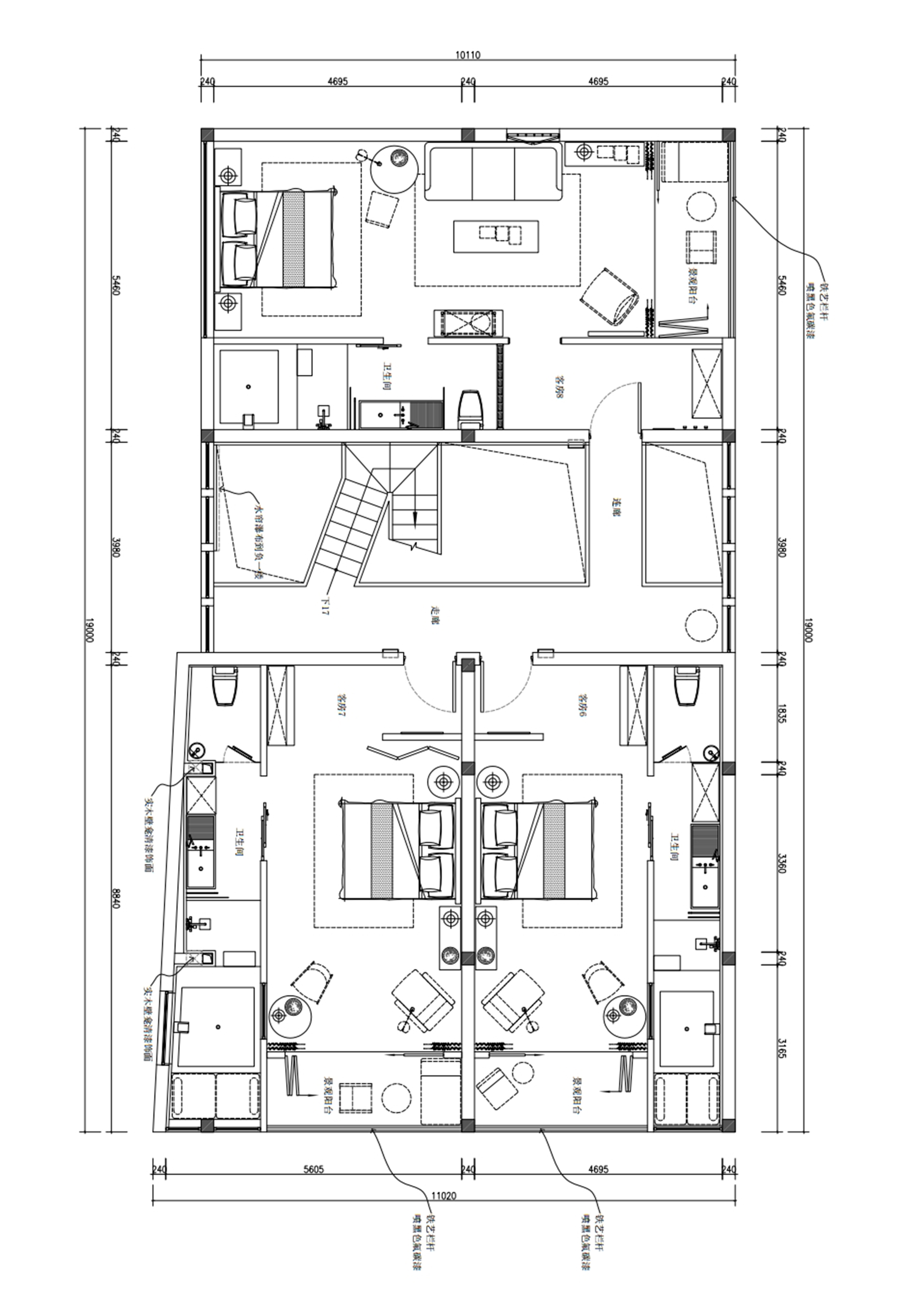
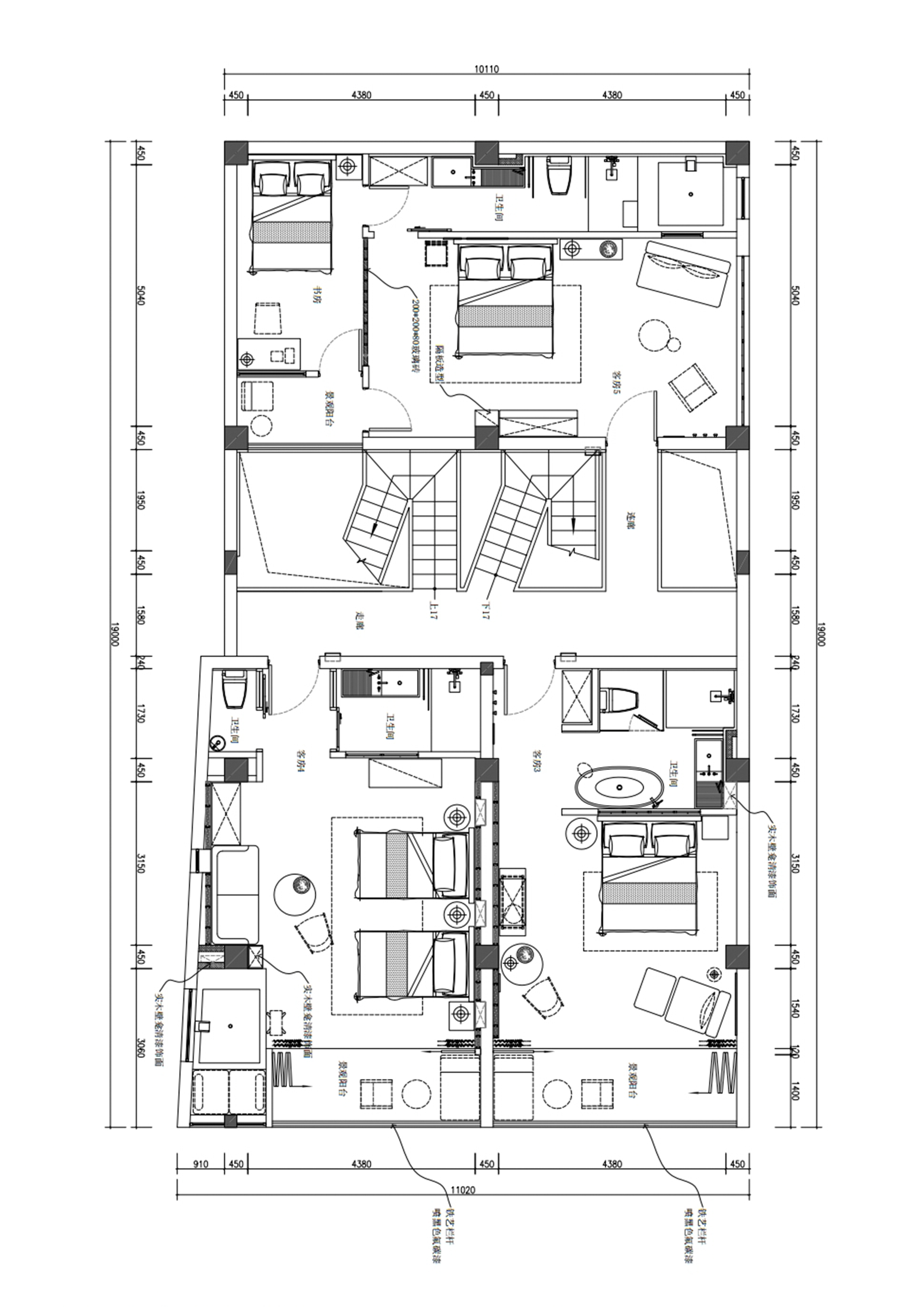
空间布局:大厅的家具布局更像来到了一个中古书店,主沙发运用了POLIFORM岛屿沙发组合环岛式设计,前后对坐,用实木茶几相连,可以更好的把柱子围绕在里面,最大限度的利用空间。满足多组客人同时在公区活动时,互不干扰
-
设计选材:自然主义风格,希望客人能够在充满氛围感、松弛感、情绪感的空间中,让身体和心灵都能得到休息。色调柔和,没有违和的赘饰,使用亚麻、柚木、老榆木,皮革,天然洞石等材料,相互呼应,构成和谐的整体。
-
用户体验:未上携程平台,做到了80%的满房率,有国外的客人入住后,非常喜欢

