洪·书法艺术馆



作品说明
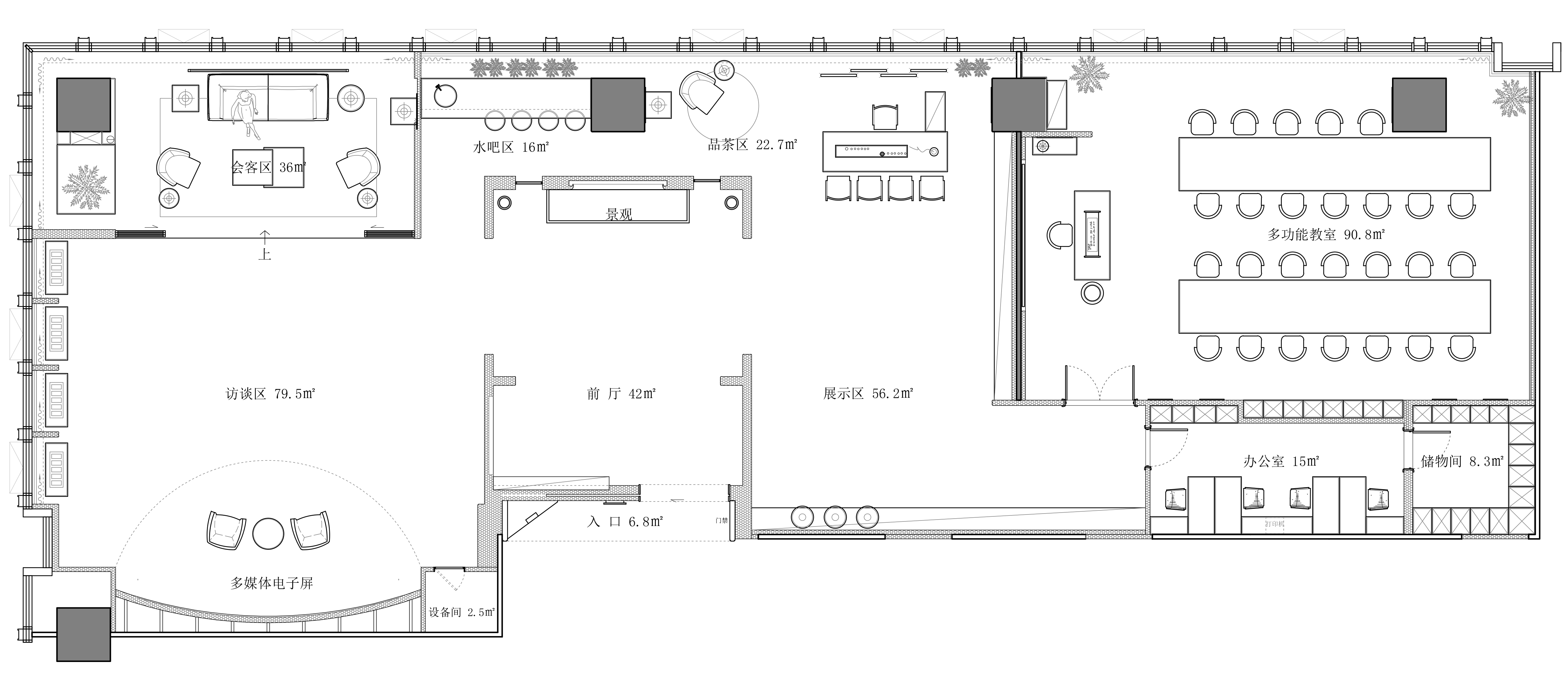
- 项目类型:展示
- 项目地点:太原市
- 建筑面积:405.0000㎡
- 项目造价:115.0000万元
- 主案设计师: 王瑞凯
- 参与设计师:王瑞凯
- 竣工时间:2024年4月
- 设计机构:山西微观空间设计
-
项目定位:寻求生命支点,点亮智慧心灯。
-
空间意境:书法馆的整体设计既不能过于抢眼与夸张而抢夺了书法作品本身的个性,同时又需要保证书法展厅的格调与气质,一切从禅意极简出发。
-
空间布局:光是表现空间情绪的重要介质,光影互相依存,空间中大面积软膜,强调光线的柔美均衡,一方面更好的服务于空间中产品的照明,在情感上弱化了影的存在,营造一种安静的氛围,局部强化光影,表现材料质感。
-
设计选材:在材料设计上,将雅彩石灰艺术漆与敦煌艺术漆进行碰撞,体现材料本身的张力,低调地在空间中体现出其简约质朴的表现力。在颜色的选取上比较单一,既能体现展厅的大气,也可以让参观者把注意力集中到书法作品中。
-
用户体验:整个空间在现代沉静感中透着艺术气氛与宁静的意境。

