上海外滩窗景都市风一家三口宅


作品说明
- 项目类型:住宅公寓
- 项目地点:上海市
- 建筑面积:107.0000㎡
- 项目造价:130.0000万元
- 主案设计师: 王玉洁
- 参与设计师:王玉洁
- 竣工时间:2024.07.17
- 设计机构:上海臻言室内设计有限公司
-
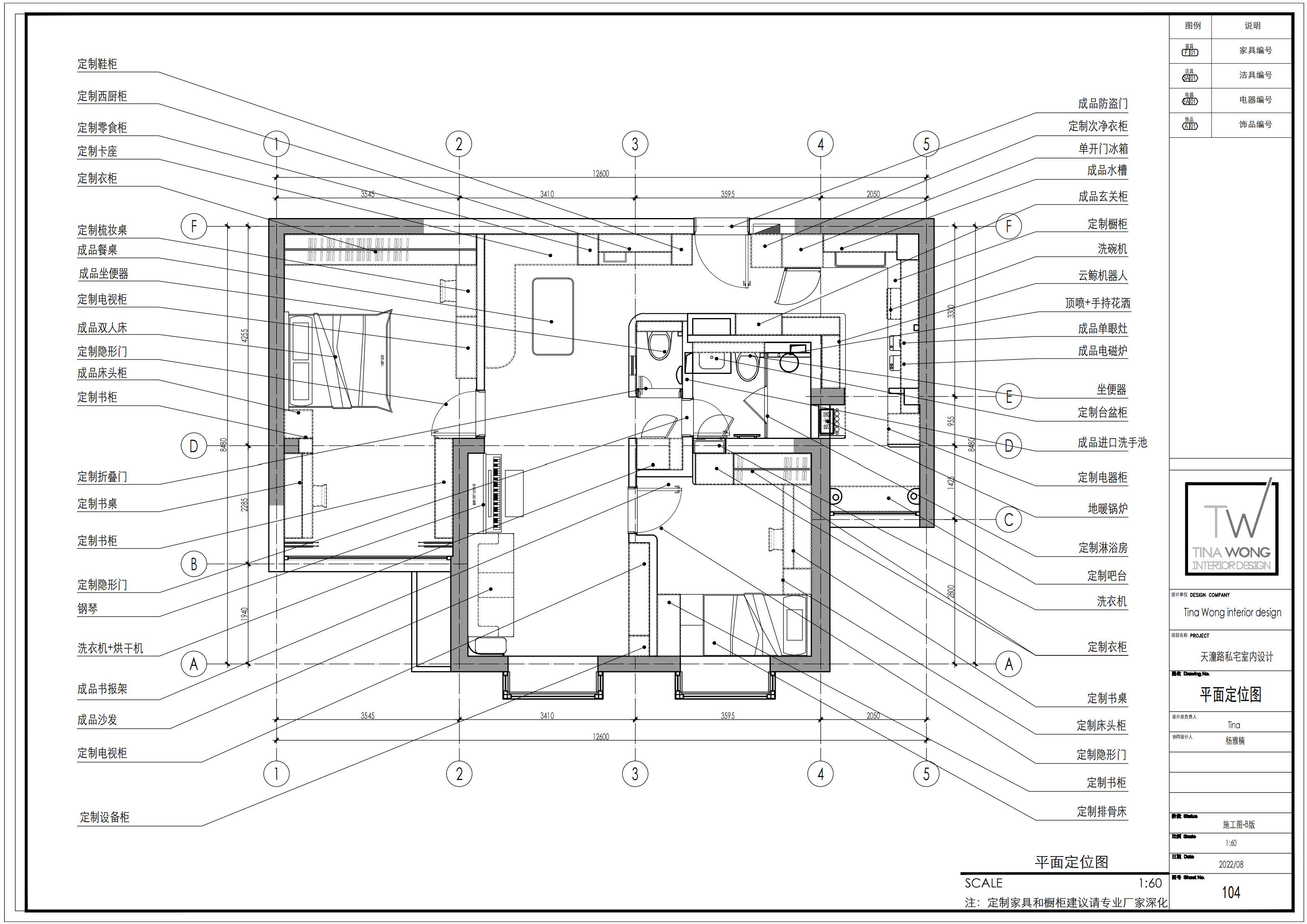
项目定位:本期设计通过精细化空间布局与多功能设计,最大化利用空间,满足屋主一家三口对于两个马桶、三台洗衣机、充足收纳与展示空间、男主人居家办公、儿童安全防护以及便捷合理的餐厨空间等多元化需求。希望提升居住品质,满足屋主多元化需求,营造温馨舒适、功能完备的家居环境。
-
空间意境:本设计方案以简约都市风为基础,巧妙融合弧形转角与精致细节,营造出既现代又温馨的居住环境。白色柜体与墙面、天花的无缝衔接,以及“一门到顶”的设计,展现出空间的简洁与大气。同时,通过精心设计的餐客一体、主卧书房套间、儿童房安全细节以及厨房窗景吧台等创新点,让居住环境既实用又充满格调,完美诠释了现代都市家庭的居住美学。
-
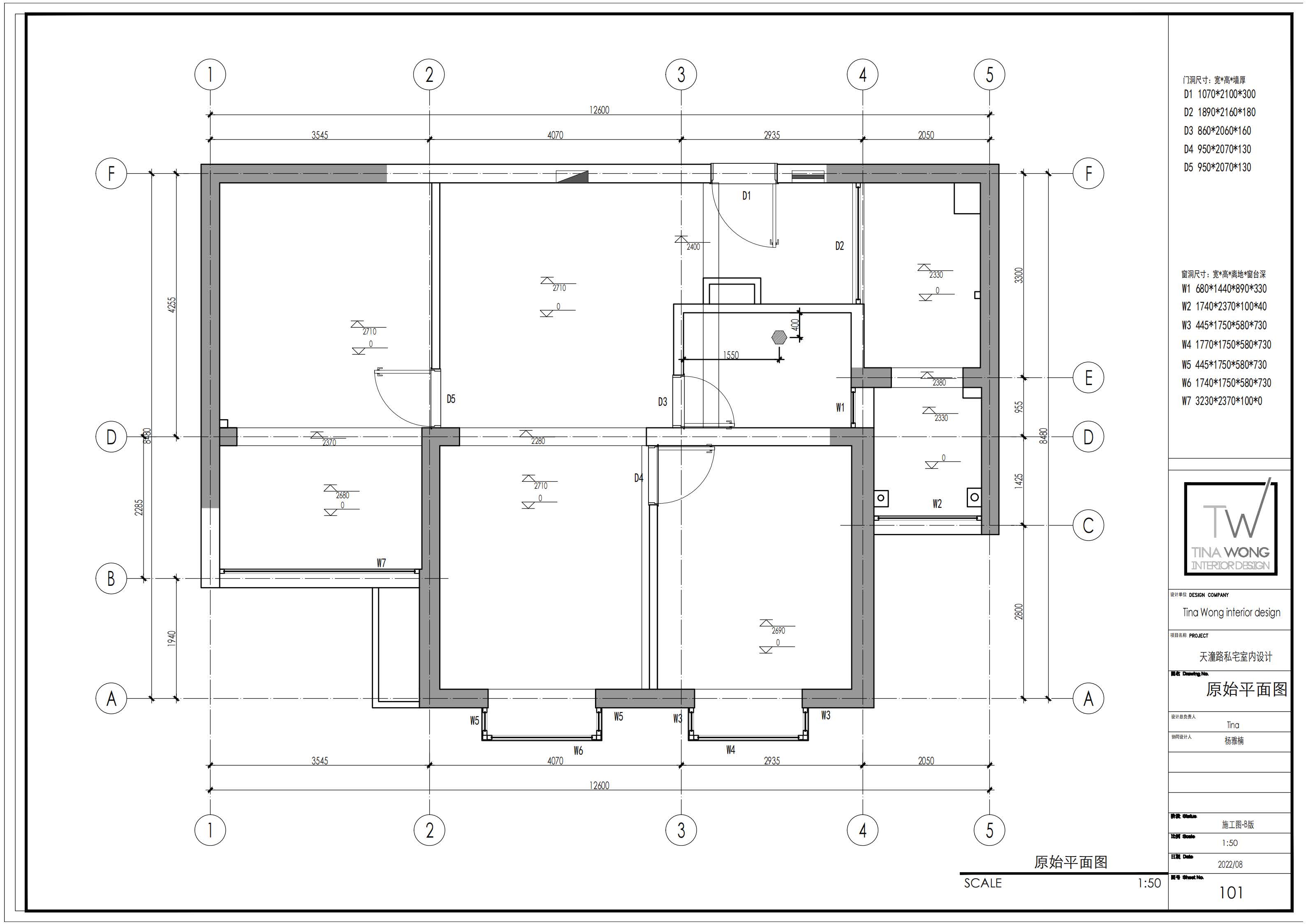
空间布局:我们改动原卫生间的非承重墙体,墙体外扩,设计一个单独卫生间+紧凑型一体式卫生间。一体式洗手间干湿分离,满足屋主两个洗手间的需求。洗烘柜与家政柜,占用部分次卧空间,做内嵌式设计;
主卧墙体外移,客厅做内嵌电视柜组合,使客厅整体立面连续平整。 -
设计选材:在选材上,我们注重实用性与美观性的完美结合。考虑到空间的整体感和统一性,我们选择了白色柜体与墙面、天花进行无缝衔接,不仅增加了收纳空间,还使得整个居住环境更加简洁大气。同时,为了提升空间的隐形感和视觉统一感,我们采用了“一门到顶”的设计,减少了柜门的分割。
-
用户体验:装修很满意,设计团队特别用心。他们真的把我们的需求都考虑进去了。施工过程中,总是及时跟我们沟通,我们有什么不明白的,他们都能耐心地解释,还能根据我们的意见调整方案。

