金堂奖
金堂奖简介
参赛指南
参赛入口
委托报名
参赛记录
设计师V网站
V网站介绍
V网热度榜
作品展示
秒景AI设计
进入AI设计
操作指南
开通会员
* 不支持7天无理由退货
了解更多
五大会员回报
一、五种秒生图 · 让您秒速谈单
文生图、全屋设计、线稿变精装、毛坯变精装、旧房翻新
——自研Ai、前期提案0成本,以图锁客、签单神器
二、秒生爆款文案 · 让您轻松日更
Ai秒生小红书爆款文案、专业级参赛文案
三、小程序分发 · 让您直达业主
V网站小程序支持多平台分享、高效引流
四、个人主页 · 让您专属展示
个人作品专属展示,设计师私属商务名片
五、红
认证 · 让您身份增值
“行业奥斯卡”金堂奖加
认证,让您增值
限时优惠,免费试用3天
金堂奖会员
¥
399
/
年
¥880
终身会员2980元(不限年份、永久使用)
在线支付
在线支付安全认证
安全可靠
您的信息将完全加密
即买即用
享受更多优质会员服务
应付金额:
¥
399
已扫码
请在手机上完成支付
点击刷新
请用微信扫码支付
支付即同意并接受
《金堂奖个人订阅服务协议》
恭喜,您已成功开通金堂奖VIP会员!
会员到期时间:2025-03-10
将于
10
秒后,跳转至
秒景AI设计,
立即跳转
关闭
简介
报名
记录
V网站简介
权益
我的V网站
主页
发布作品
金堂奖
秒景AI
V网站
我的
立即红
认证,享会员五大回报
您免费试用时间已到期,
立即红
认证,享会员五大回报
您的体验仅剩
2天
,立即认证享无限使用!
您的体验仅剩
1天
,立即认证享无限使用!
您的体验仅剩
1小时
,立即认证享无限使用!
立即认证
领取三天试用期
恭喜您成为
金堂奖会员
立享五大回报
会员有效期截止
返回
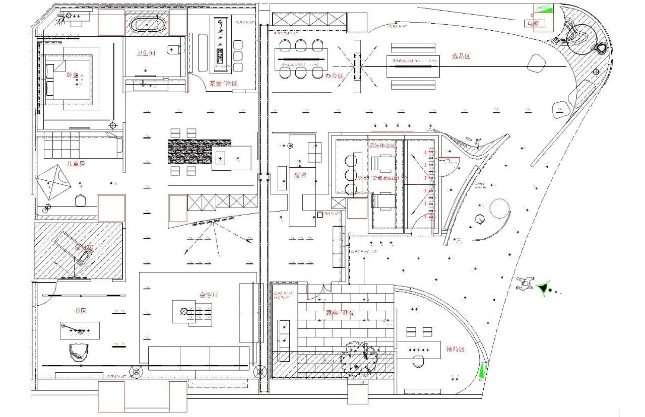
华为智能展厅
165
作品说明
项目类型:商业照明
项目地点:西安市
建筑面积:400.0000㎡
项目造价:4.0000万元
参与设计师:刘浩正
竣工时间:2023年1月
设计机构:立衡中灯光设计
金堂奖杰出作品证书
照明设计说明:
华为全屋智能展厅空间体现了”内敛、质感、惊喜、传承”的原则,塑造一个完全智能的家庭的体验,同时创造一种长安独有的诗意和优雅感。整体设计以“诗人、生活”的场景为中心,从唐代绘画的四个元素-山、水、竹、石-中汲取灵感,主题叙事贯穿整个空间,如一幅卷轴画般展开。
灯光产品解析
平面布局图
灯光点位布局图
0
0
立衡中灯光设计
西安市
私信我
西安市
工作地点
联系方式
待完善
了解更多
安晚私汤美宿
点击了解更多
华为智能展厅
点击了解更多
繁华中的一缕静谧
点击了解更多
烛光 丝萦
点击了解更多