缘来如此·生活馆



作品说明
- 项目类型:休闲娱乐
- 项目地点:宜兴市
- 建筑面积:218.0000㎡
- 项目造价:130.0000万元
- 主案设计师: 徐婷
- 参与设计师:徐赟康、徐娜
- 竣工时间:2019-03-01
- 设计机构:徐婷工作室
-
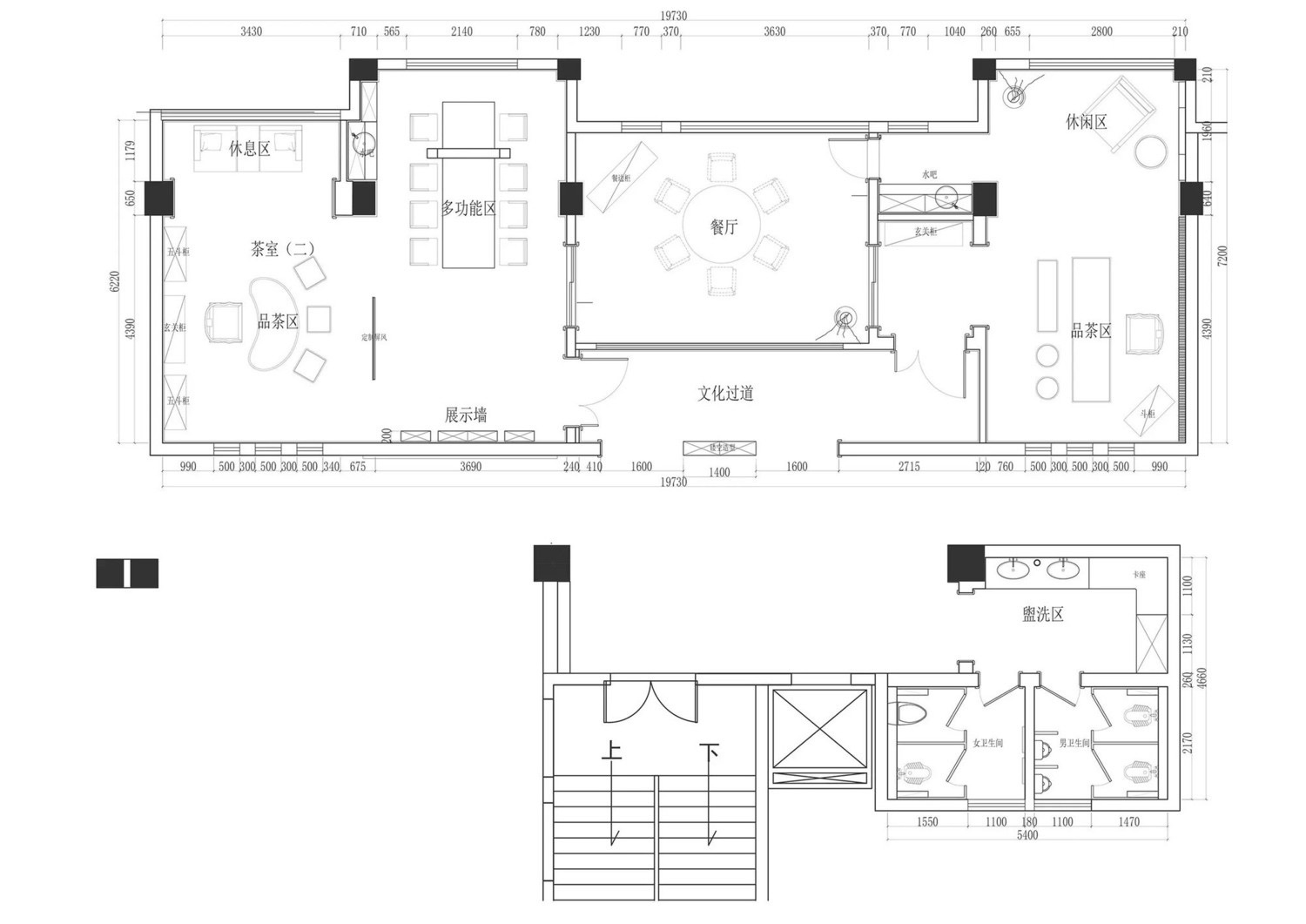
项目定位:缘来如此·生活馆,一个以茶会友的空间,沏上一壶好茶,细细袅袅的茶香,几位好友小聚畅谈,是每个爱生活的人都向往的。
-
空间意境:清雅,空间中只因少了几处暖色调的点缀,瞬间就多了一份理性、清雅。
醇香,暖调中式家私配上冬青果,让整个空间多了一丝绚丽,就像一杯口感浓香的茶,醇香干爽。
-
空间布局:借景,餐厅设计了“条窗”,使单一的空间有了若隐若现的神秘感,在此空间可以预定享受美味佳肴,亦可从不同的角度欣赏空间的变化。
-
设计选材:高踢脚线,就地取材选的岩板加工结合“U”型嵌条,打造300mm的高踢脚线,提升空间整体感。
-
用户体验:满意

