-
项目定位:追求大气、干净、舒适和功能性的完美结合。希望每个角落都能让你感受到家的温暖。注重细节、从每一个小细节入手,提升客户的生活品质和幸福感。
-
空间意境:法式风格强调线条的流畅性和细节的精致,突出功能精致美。
-
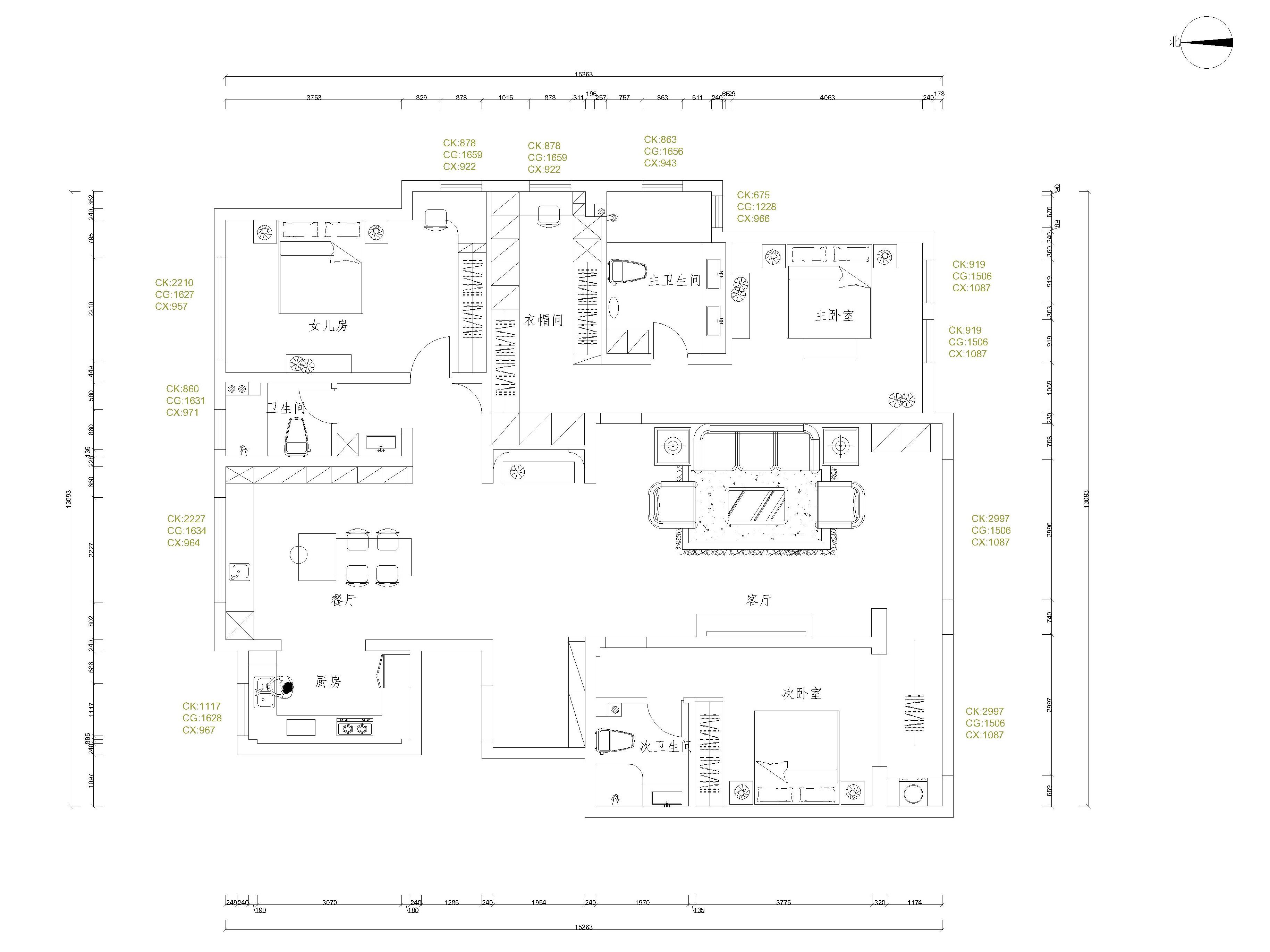
空间布局:原来四室空间规划为现在的三室的空间,减掉的卧室,即为主卧室打造了一个衣帽间,还使得北次卧的空间更舒服。
-
设计选材:整体空间墙面并没有使用乳胶漆,而是全屋壁布和部分无醛墙板,减少空间甲醛的释放。
-
用户体验:客户对于此设计非常满意,整体空间温暖舒适。

