-
项目定位:项目位于武汉市高新区,紧邻地铁2号线;距离藏龙东街地铁站仅0.7km,周边配套充足,交通便利。区域周边路网丰富,配套丰富,教育设施,医疗配套,体育中心等设施齐全。隔路为七一九藏龙岛科研综合大楼;南望汤逊湖;西至百捷科技园;北至光谷大道高架。
武汉作为传统工业重镇,其各处散落着不同历史阶段遗留下的大
批工业遗址,犹如城市独有的年轮。近年来随着城市更新发展过程中重新被发掘,这些空间变成充满魅力的公园/景区/文旅综合空间;逐渐成为年轻人热衷的消费场所。 -
空间意境:现代审美标准与地域符号的本土性、当代性结合。「本土」是对东方语境、地域文化与商业绩效充分理解下的回应;这种回应释放了“本土性”最为肆意、自然的天性。充满现代的空间语境令不同层面的访客对整个空间有了更为有效的感性阅读。
-
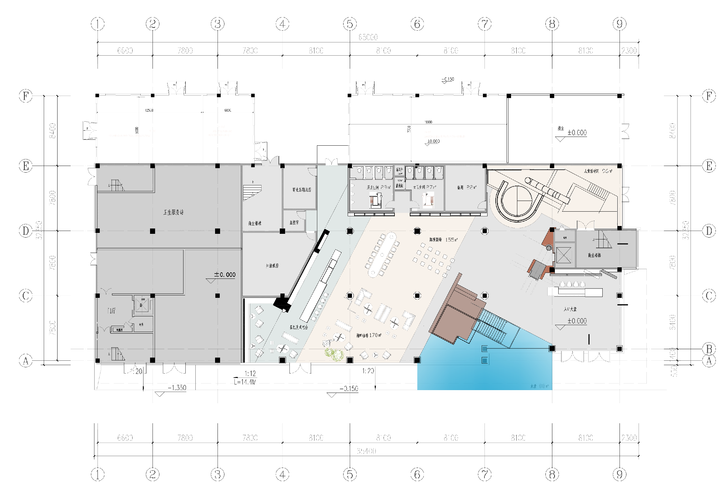
空间布局:湖畔咖啡及剧场后期作为商业空间形象需要高识别度的记忆点;
-
设计选材:天然红洞石、艺术涂料、原橡木饰面
-
用户体验:空间感很强

