雕琢时光的家



- 项目类型:住宅公寓
- 项目地点:烟台市
- 建筑面积:188.0000㎡
- 项目造价:150.0000万元
- 主案设计师: 杜小娜
- 竣工时间:2024-6-1
- 设计机构:一禾空间设计工作室
-
项目定位:本案设计以现代极简为主轴,呈现出功能性与艺术性并存的高级生活空间。通过材料、色彩与结构的精妙结合,我们为业主打造了一个既沉稳大气又充满生活温度的家。
-
空间意境:植被与自然气息的引入
创新点:室内加入了绿植和鲜花装饰,增加了自然气息,与天然材质形成呼应,打破了硬质材料可能带来的冷感。
价值:这种“微景观”的设计不仅使空间更富生机,还体现了对现代生活中人与自然关系的关注。
-
空间布局:创新点:客厅沙发采用开放式布局,通过不同方向的靠背设计模糊了空间边界,增强了流动感。沙发旁的极简曲线落地灯、层次分明的圆形茶几,将功能性与艺术性结合。
价值:布局突破了传统分隔式功能区域的限制,让空间更灵活多变,适配不同生活场景,如家人聚会、独自休憩或待客。
-
设计选材:创新点:以天然石材、木质纹理和金属材质相结合,创造了既柔和又有力量感的空间。背景墙的灰色大理石与木质饰面形成冷暖对比,同时搭配暗黑色金属线条,增添了现代极简的精致感。
价值:这种材质对比不仅打破了单一的风格限制,也让空间具有视觉上的层次感和触感上的丰富性。 -
用户体验:经过设计团队的精心规划与施工,客户对空间的实际使用效果表示高度满意。整体布局充分考虑了家庭成员的互动需求,开放式设计让客厅、餐厅和厨房形成了流畅的生活动线,既提升了空间利用率,又拉近了家人之间的距离。客户特别提到,柔和的色彩搭配与舒适的材质运用,让整个空间倍感温馨;橙色点缀更增添了活力,完全符合他们对家的期待。
灯光设计在夜间展现了绝佳的氛围感,成为一家人晚间休憩的亮点。储物空间设计实用且隐形,令房间始终保持整洁有序。客户评价说:“设计不仅美观,还贴合我们的生活习惯,每一处细节都体现了设计师的专业与用心,让我们感受到了真正属于自己的家。”
空间主基调以浅色木饰面为主,搭配深色大理石背景,形成硬朗与温润的对比,既有现代极简的冷静感,又兼顾了家的温馨属性
沙发区选用了皮革与布艺结合的材质,橙色皮革的大胆点缀为空间注入一丝活力,同时柔软布艺带来舒适的触感,体现了刚柔并济的设计理念。
设计大胆突破单一色彩的局限,利用暖橙色与中性色调的搭配,为空间注入了层次感。灰白地毯搭配局部几何纹理,为视觉提供动感,同时也巧妙划分了功能区域。
背景墙的大理石纹理在灯光映衬下更显层次,深浅之间形成视觉的流动性,提升整体高级感。
沙发弧形灯的设计,为客厅注入了一份艺术雕塑感,同时为阅读和休息提供了温暖的光源。
餐厅整体以开放式布局为主,与周围空间无缝衔接,增强了空间的通透感。餐桌区域与厨房、客厅区域之间形成了自然的动线,既方便日常使用,又不会显得拥挤。
餐桌区域与厨房、客厅区域之间形成了自然的动线,既方便日常使用,又不会显得拥挤。
桌腿和灯具采用了金属材质,与整体木质饰面形成对比,为空间增添了现代感与质感。 浅色调的背景与深色餐椅形成视觉上的层次感,提升了整体协调性。
墙面与天花板均使用浅木色饰面,结合地面的浅色石材,营造出温馨而高雅的空间氛围。
这个餐厅的设计兼具美感、舒适感与实用性,不仅满足了家庭用餐的需求,还通过细节设计体现了品质与个性。
主背景墙采用纹理丰富的大理石板材,带有自然流动感的灰、黑、金色纹理,成为整个门厅的视觉焦点。纹理设计赋予空间自然与艺术融合的美感。 木饰面:周围木质墙面采用纵向格栅设计,增添了立体感和精致细节,同时与大理石形成材质对比,提升整体层次。
金属细节:金色吊灯与装饰细节为空间增添了现代感,与背景的金色纹理相呼应。
卧室整体以墙板为主,增强了空间的通透感。结合外面的光线使空间更加自由
结合衣柜的造型,结合空间的颜色,在整个空间里休息是很舒服的感受
孩子的房间结合了孩子的需求,卡住、书柜、书桌,满足孩子在空间里的所有的功能
在自己喜欢的空间,有属于自己独立的享受
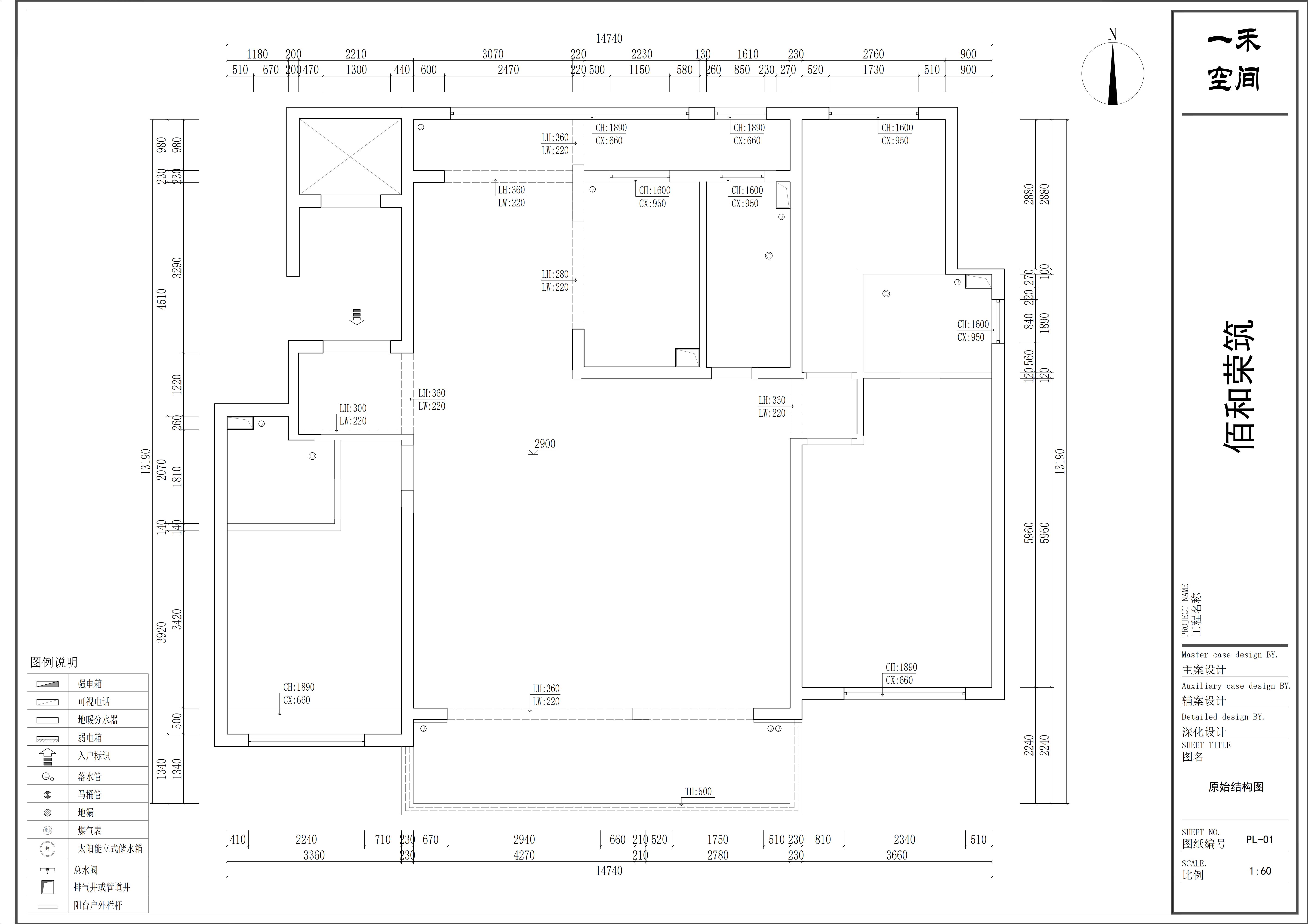
原始平面图考虑到一家3口的居住生活,满足夫妻二人+2个儿子的生活需求、考虑到北面卧室太小、厨房较小、阳台较大的痛点,结合室外的自然光景,做出客户满意的方案
秩序与流畅感的表达 开放式布局增强了空间的通透感,客厅、餐厅与书区自然衔接,使得功能区域彼此独立又相互联系。沙发弧形灯的设计,为客厅注入了一份艺术雕塑感,同时为阅读和休息提供了温暖的光源。背景墙内嵌设计巧妙隐藏了电视区域的功能性,减少了杂乱感,使整个空间更显整洁。

