山屿湖
172
作品说明
- 项目类型:住宅公寓
- 项目地点:贵阳市
- 建筑面积:263.0000㎡
- 项目造价:3150000.0000万元
- 主案设计师: 张辉 | 田念
- 参与设计师:张辉 田念
- 竣工时间:2024年6月20日
-
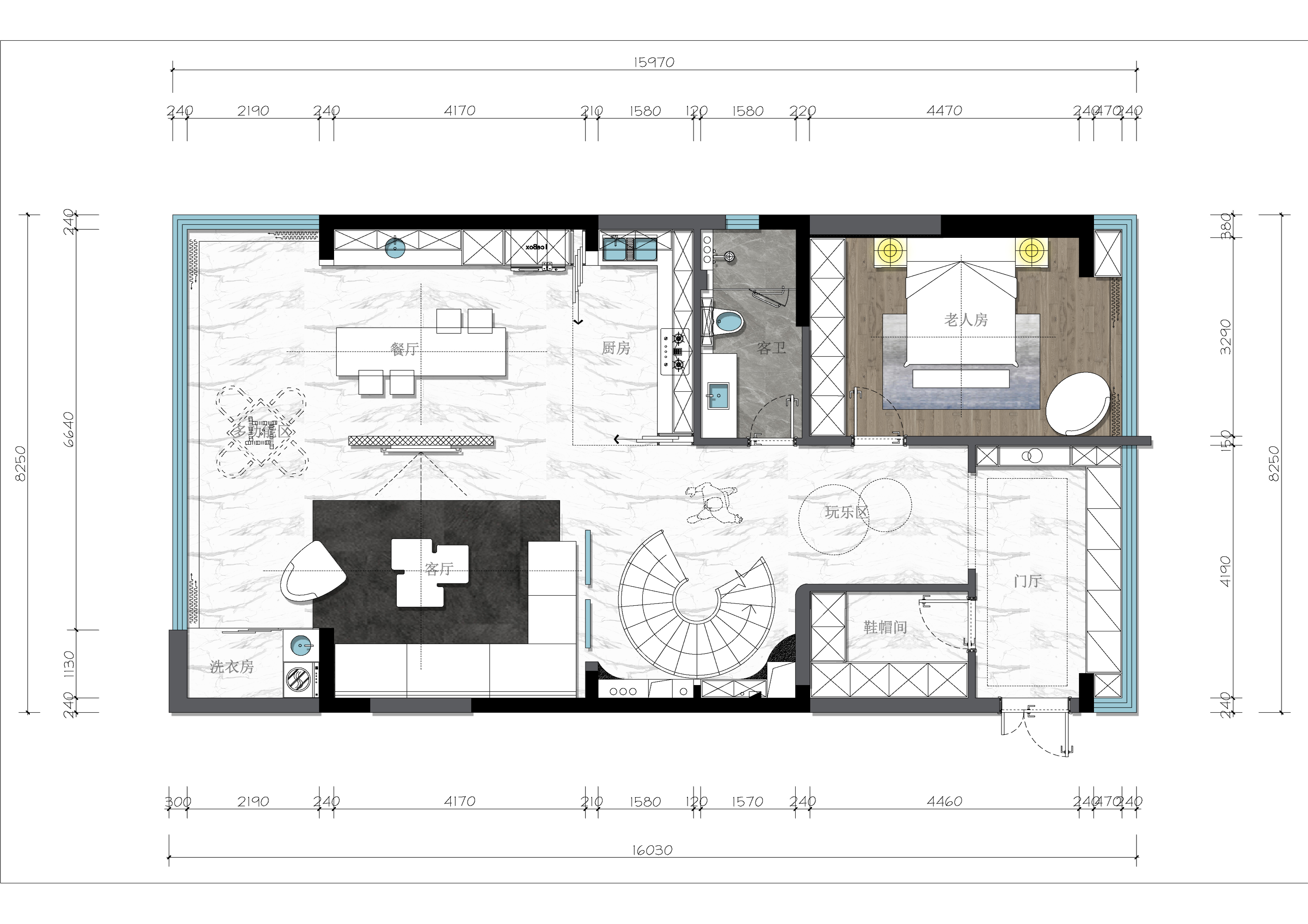
项目定位:该项目主要为业主一家提供节假日度假使用
-
空间意境:项目造景打造人与自然的结合,风格上采用宋史美学,结合现代元素打造现代禅意的感觉。
-
空间布局:空间为循环动线,把最大的采光面给到各个空间,
-
设计选材:材料上墙面主要选用实木贴皮墙板,既能达到设计效果,又经济实惠。
-
用户体验:客户搬家后满意度超高,使用方便,动线合理。
0
0

认证 · 让您身份增值