蓄勢待發
553
作品说明
- 项目类型:住宅公寓
- 项目地点:台湾
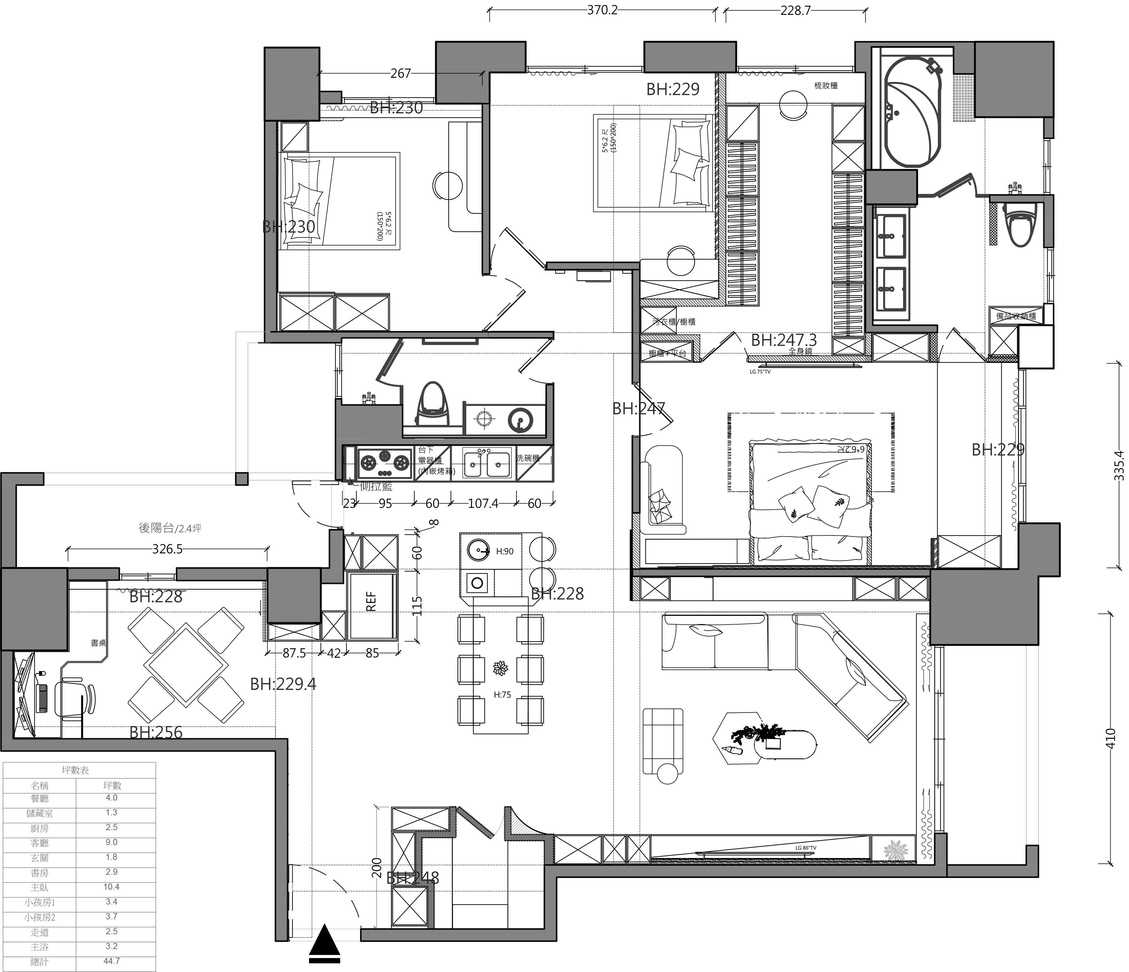
- 建筑面积:90㎡
- 项目造价:110万元
- 参与设计师:羅德智,陳佳儒
- 竣工时间:2024年4月
- 设计机构:逸硯空間設計室內裝修有限公司
-
项目定位:本案為一處採用現代風的私人住宅,坐落在歷史底蘊豐厚、生活機能便利的地區,結合居者使用需求的空間設計,予人暢想美好的未來生活。因應新生活型態的來臨,先以寬敞的開放式格局做規劃,再以灰階色調搭配大地色系,在多樣化的燈飾映照下,營造敞亮、溫馨的居家環境。為了讓整體空間更為簡潔俐落,特地將室內各場域皆消弭多餘的凹凸處,呈現出平整光滑的美感。
-
空间意境:鑒於居者對於儲物機能的需求,本案在各個場域配置了系統櫃、開放式展示櫃等櫃體,提供充足的收納空間。考量到家中有幼童,故所有櫃體皆採用無把手設計,具有降低碰撞受傷的安全功能,讓孩童能在家中自由玩耍。使用於室內場域的平釘天花板,除了能隱藏水管、電線等管線外,也便於配設內崁燈或間接照明設計。餐桌採用的水滴狀吊燈,能夠均勻分配每個座位的光線。
不同於一般住宅,本案的天花板、牆面與家具都消弭了多餘的凹凸處,讓整體空間更為平整、簡潔,營造出俐落美觀的視覺效果。在色調上,也與色系單調的居宅迥異,本案雖以冷色調為主軸,但是仍運用大地色系的木質地板作搭配,以此平衡不同色調之間的風格屬性。此外,還採用多樣化的吊燈、線燈設計,將室內設計轉化為藝術創造,讓空間的每一隅都值得細細品味。 -
空间布局:本案以「蓄勢待發」作為設計理念,為居者提供放鬆身心的住處,能在充分休息後再次出發。考慮到屋主一家重視日常的交流互動,因此以開放式設計公領域,促進家庭成員的互動頻率,聯繫彼此情感。公領域所採用的人字拼木地板,塑造「向前邁進」的意象,呼應「蓄勢待發」的設計理念。
整體以灰階色調為主基調,並以少許的弧形線條作點綴,帶來沈穩、低調的奢華感受。考慮到黑、白、灰皆屬於冷色系,因此搭配大面積的木質地板與柔和的燈光,為室內空間增添溫暖、質樸的氣息。天花板、牆面與家具皆去除不必要的凹凸面,讓視覺上更顯乾淨、整齊,同時也減少空間上的壓迫感。餐桌上使用了水滴狀吊燈,除了帶來舒適柔和的光線,也增添了線條上的變化。 -
设计选材:本案使用天然材料木材作為主要建材,實踐「取之於自然,用之於自然」的概念,降低對有限資源的依賴,並減少能源消耗。選用持久耐用的超耐磨木地板,能減少因損壞而汰換材料的機率,避免額外的資源耗費。本案中大量運用LED燈條的設計,不緊提供日常所需的光線來源,亦具有節省室內空間的功能。藉此,不僅為居住者帶來環保、永續、健康的生活環境,還能替未來世代留下可持續發展的天地。
-
用户体验:本案空間是以開放式格局進行擘劃,能促進屋主一家人互動交流、聯繫情感。此外,居宅內配有系統櫃、開放式展示櫃等多個儲物櫃,成功因應了屋主大量的收納需求。其中,屋主對無把手的櫃體設計尤為滿意,因為其高安全度的設計能降低家中孩童碰撞受傷的情形發生,讓孩子能盡情玩耍。另外,本案有使用超耐磨木地板材,能便於屋主清潔又不必經常汰換。
0
0

认证 · 让您身份增值