-
项目定位:与山共鸣,静谧澄澈,回归内心的纯净,设计师将龙坞茶山自带“灵”、“清”的地符标志融入“玉露”这套下叠户型中,以简洁利落的设计手法,营造出意义深远的设计感,展现独特的家居空间魅力。
-
空间意境:走进客厅,是抒写自我表达的洒脱气质,由外至内的交织光影、木质客椅与方圆弧线沙发围合出超越空间的尺度,在方寸之间定格下一个个美妙的、开心的、温馨的、遗憾的生活叙事。
家庭室以少而精,云雾弥漫的茶村景色画面的挂画与艺术摆件作为空间视觉的前缀,沿用一楼的色彩基调营造私享空间,使用了更柔和的线条色彩让理性与感性共生,将生活与美感融为一体,增添温暖治愈的休憩氛围。 -
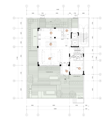
空间布局:客厅和餐厅是相互连贯的开放式布局,玄关、客厅、餐厨之间相互没有过多视觉上的的阻挡,形成流畅的空间动线隐秘流动的墨色从客厅蔓延至餐厨之中,演练着湖水下的暗流涌动。在工坊走道的两端以陶艺艺术品作为端景点缀,储物间的功能打造也作为陶艺区的储藏室将其功能连贯。主卧阳台将茶山的景色尽收眼底,眼前的翠色先跃至茶尖转而又蔓延至远山,山谷间燕雀的鸣叫在清晨中渐次响起,在山间将大地唤醒。
-
设计选材:选用经济适用环保的石材,营造出沉静低调的气息。
-
用户体验:家不只是一个抽象的符号,它是心之所向,是世外中的世外,是视觉、听觉、时间与空间围合成的空间。

