建发·缦云
742
作品说明
- 项目类型:休闲娱乐
- 项目地点:东莞市
- 建筑面积:1020.0000㎡
- 项目造价:561.0000万元
- 参与设计师:王冠,刘建辉,王兆宝
- 竣工时间:2024.03
- 设计机构:矩阵纵横设计股份有限公司
-
项目定位:在会所规划上,设计组将缦式敛藏 诗意 静谧的生活观在岭南铺陈开来,在东方美学与现代奢美的碰撞与交锋之中,结合莞邑与岭南的地域色彩,对空间进行生机与改变。
-
空间意境:岭南印象风格强调空间的流动性和通透性,同时也考虑到人的心理感受。通过合理的空间布局,岭南印象风格的空间能够给人带来一种舒适、自然的感觉。岭南印象风格注重细节的处理。无论是家具、灯光还是墙面都经过精心设计。这些细节的处理不仅增加了空间的层次感和立体感,也使得整个空间更加生动、有趣。色彩搭配,岭南文化在色彩运用上大胆鲜明,可以营造出热烈欢快的氛围。这些色彩不仅符合对温馨舒适的要求,也能展现古朴典雅的气质。所以设计中加入中国红来强调空间的层次感和立体感。项目选用的工艺品制作精细,图案别致,如陶瓷、剪纸元素等,这些工艺品可以作为室内装饰元素,提升空间的艺术品质
-
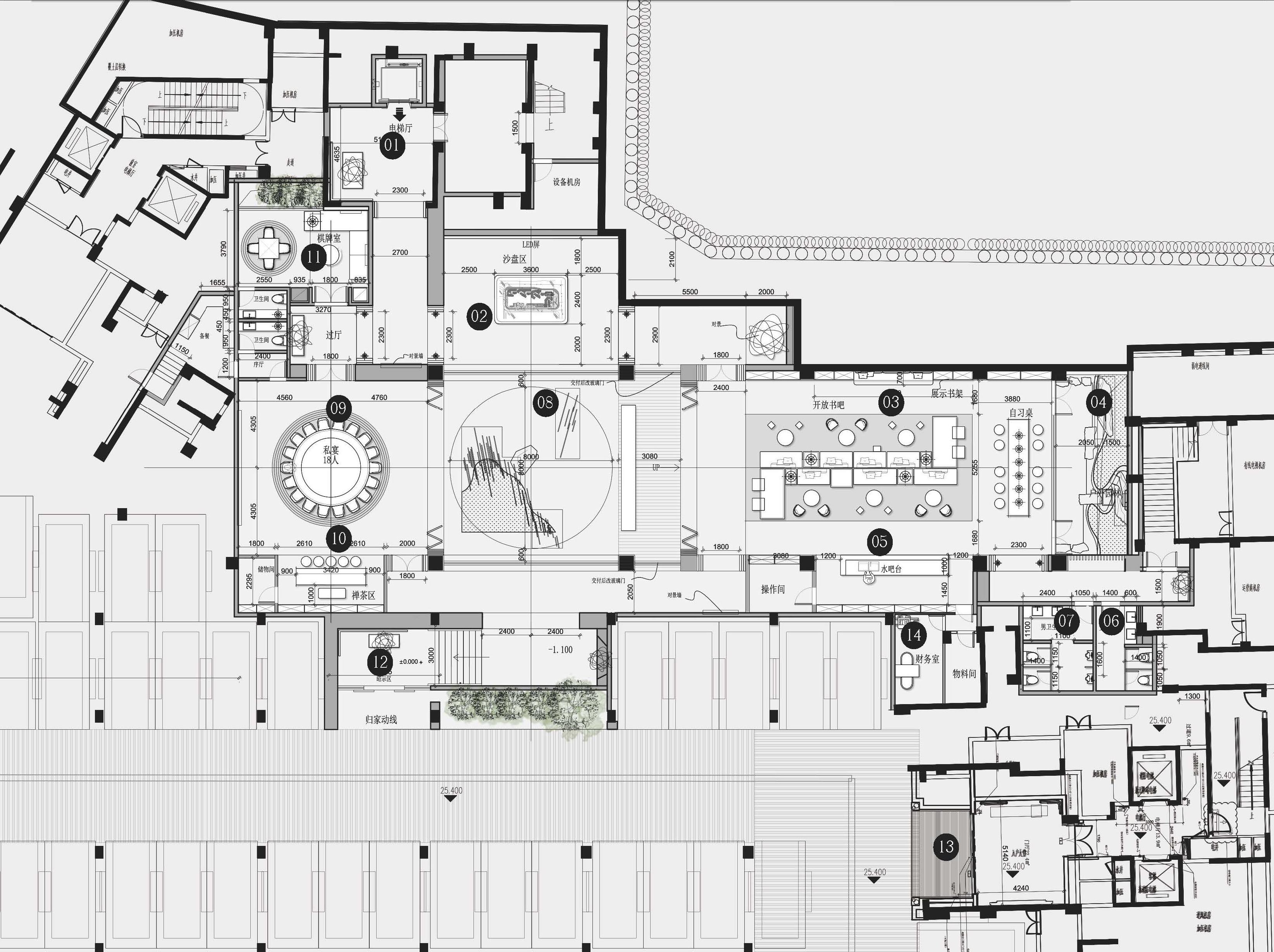
空间布局:架空层设计上,我们紧密联系在地文化感受,以“游园”为设计主旨,全方位考量老、中、青、幼不同年龄的真实诉求,打造涵盖八大功能区的全龄共享空间,在社区内实现家的延伸。同时结合岭南的元素点缀空间细节,营造出独属于缦云的奢雅格调。在下层空间,我们融汇现代审美与生活功能的双重考量,创新打造东莞城区首个下沉式庭院臻藏会所,从“自然无界”到“书中百味”,从自然元素与场域重叠的前厅,再到精致秀美的书吧会所,以及留出片刻冥想的禅茶区, 缦享别具一格的东方庭院生活。
-
设计选材:在软装设计中,岭南印象风格多选用天然材料,如木材、石材等。这些材料符合绿色环保理念,突显出自然之美。为了增加空间的生机和活力,绿植和艺术品摆件。花艺点缀了大量红色,不仅突出新中式的氛围,又能展现出地域特色。摆件则多采用陶瓷、石材等材料,以传统工艺品为主,展现出岭南文化的独特魅力。
-
用户体验:作品投入使用后,整体空间的设计从视觉、触觉和情感体验上为用户创造了多维度的享受。架空层设计的全龄功能区使社区居民得以在家门口享受多功能休闲娱乐空间,无论是长者的悠闲漫步、青年的社交需求,还是儿童的玩乐探索,都得到了全面满足。岭南元素的细腻融入则为社区增添了一份文化归属感。软装的岭南印象风格以其精美的工艺、鲜明的色彩以及丰富的装饰细节,为用户带来了视觉上的极致享受和心理上的舒适放松。天然材料与绿色环保理念的结合进一步提升了空间的品质感和可持续性。投入使用后,用户普遍对设计表示高度认可,认为项目兼具实用性与美观性,同时凸显了地域文化的魅力。多功能区的规划提升了社区生活的便利性与品质,而自然与文化元素的交织更是让人身心愉悦。整体用户评价积极,为品牌后续的开发与传播奠定了良好口碑基础。
0
0

认证 · 让您身份增值