东湖之墅



作品说明
- 项目类型:别墅
- 项目地点:宁波市
- 建筑面积:1000.0000㎡
- 项目造价:800.0000万元
- 主案设计师: 吴建能
- 参与设计师:史悠依
- 竣工时间:2023.2
- 设计机构:宁波方寸间设计有限公司
-
项目定位:取人文之气,传承东方雅致
致敬东方文化精神,向世界讲述东方故事,是设计团队在和业主时常交流中的一些心得 -
空间意境:一处山水,便是一方精神居所,进可享受都市繁华,退可品林泉之雅,拨开繁忙,回归心安。光影随风潜入,庭院波平如镜,遍植绿树,山石屹立,一日三餐四季流转,人间烟火与人文底蕴相融合
-
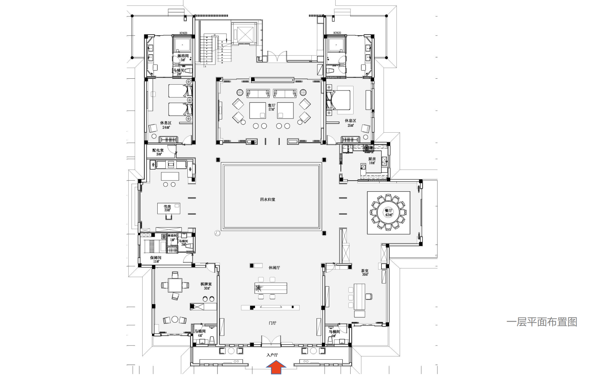
空间布局:一层为起居接待厅,通过东方、有仪式感、有文化底蕴的空间氛围,呈现生活的松弛感和愉悦感。从入户花园,水景,到仪式感的玄关,在到四水归堂的东方生活的精髓
-
设计选材:采用大自然肌理元素材质,天然石材及木材的应用
-
用户体验:原是接待朋友度假,住着舒服,便当作常住空间

