童梦幻境
393
作品说明
- 项目类型:样板间/售楼处
- 项目地点:赣州市
- 建筑面积:720.0000㎡
- 项目造价:450.0000万元
- 参与设计师:王锦阳、卢俊华、孙晋英
- 竣工时间:2018-12-31
- 设计机构:大诺营造
-
项目定位:项目服务对象以20-40点年轻群体为主,设计师寓意将空间年轻化,聆听人们的纯真畅想,描摹他们的童心与美梦,让美以不同的形式浸润他们的心灵,让他们在“幻境”中放松当下的驻足时光,在轻松愉悦的氛围里相谈。
-
空间意境:前厅采用大篇幅的海洋鱼群手绘与空中飘零的伞构造海天相合的迷幻场景,并通过不同现实翱翔于空中的鱼形成反差,引导顾客进入这个奇幻世界。移步空间中心,洽谈区分为三个主题:1、几何王国:采用色彩碰撞跳跃、随性切割构成的几何图形玻璃屏风,巧妙的弱化、和谐了色彩高饱和的沙发与书柜之间的关系。几何图案以及色彩之间的碰撞不仅活跃空间氛围还增加了空间的趣味性。2、泡沫海浪:沙盘上空的吊灯形态如同海浪中的泡沫与洽谈背景的蓝色波浪呼应,营造海浪波动,泡沫纷飞的场景,如若阳光洒入,波光粼粼的光影效果将增强幻境的氛围。3、林中树屋
-
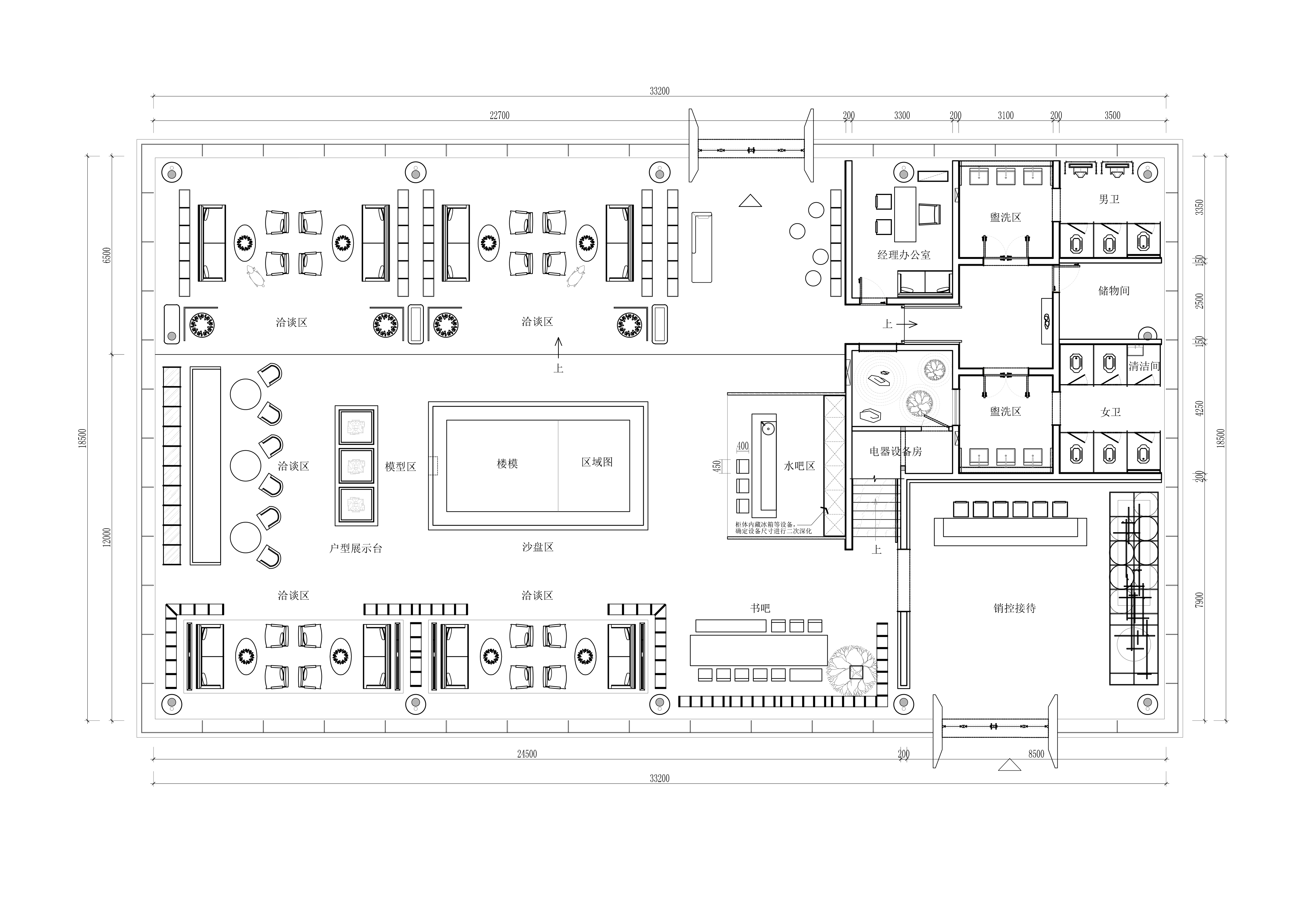
空间布局:利用建筑立柱切割空间布局,改变以往的沙盘与区位图的布局方式,将二者结合一体。充分利用空间,动线明确,在二楼处留有窗台,做到上下呼应,空间对话。
-
设计选材:采用了优质天然木材。摒弃以往的常规沙盘,取消围合,外圈采用了黑玻为底衬,预想与建筑光影做呼应。
-
用户体验:最终的成果是一个新颖的空间,童话的主题弱化了商业的氛围,也更加精准打击了客户群体,获得一致好评。
建筑外观
建筑外观水景面
海洋鱼群遨游天空的画作与天空飘零的伞构造海天相合的迷幻场景。
大堂
步入内部
红枫与蓝色海洋的碰撞
用数百本真书打造的书吧
书吧
几何形状的屏风与沙发、地毯之间相互呼应。
运用色彩跳跃、随性切割的几何图形玻璃屏风弱化、和谐了色彩高饱和的沙发与素色为主的书柜之间的关系。
大型花器与书屋结合,宛如置身神秘林中偶然寻得的隐秘树屋。
大型花器弱化立柱的突兀感,柔和视觉感受。
运用了大量卡通元素,去烘托童梦这个主题。
洽谈区
洽谈区
洽谈&水吧
水吧
沙盘吊灯如海洋中的泡沫
无壁沙盘,使得构成更加完美。
黑玻倒影
块面切割
块面切割
图形构成
灯饰自然形成的构成效果
水吧台顶部
运用蓝色玻璃营造海浪波动,如若阳光洒入,波光粼粼的光影效果更加呼应了幻境的氛围。
洽谈区
楼梯转折处
空间之间的连通
上下空间的对话
运用建筑的原立柱划分空间,整体空间视觉开阔,改变以往沙盘成列位置,将其置入中心区域,沙盘在满足商业用途的同时,也成为了整体设计中的一个装饰部分,并且方便后期营销介绍。
0
0

认证 · 让您身份增值