百川空间设计工作室



作品说明
- 项目类型:办公
- 项目地点:贵阳市
- 建筑面积:220.0000㎡
- 项目造价:50.0000万元
- 主案设计师: 何邦山
- 参与设计师:杨超
- 竣工时间:20240608
- 设计机构:百川空间设计
-
项目定位:百川空间设计工作室作为一群热爱行业的年轻创业者共同创立的品牌,不同于普通的商业空间,她脱离了传统的闹市商业区,把自己隐藏在边缘小区的点式楼里,依然掩盖不住自身的商业价值。
-
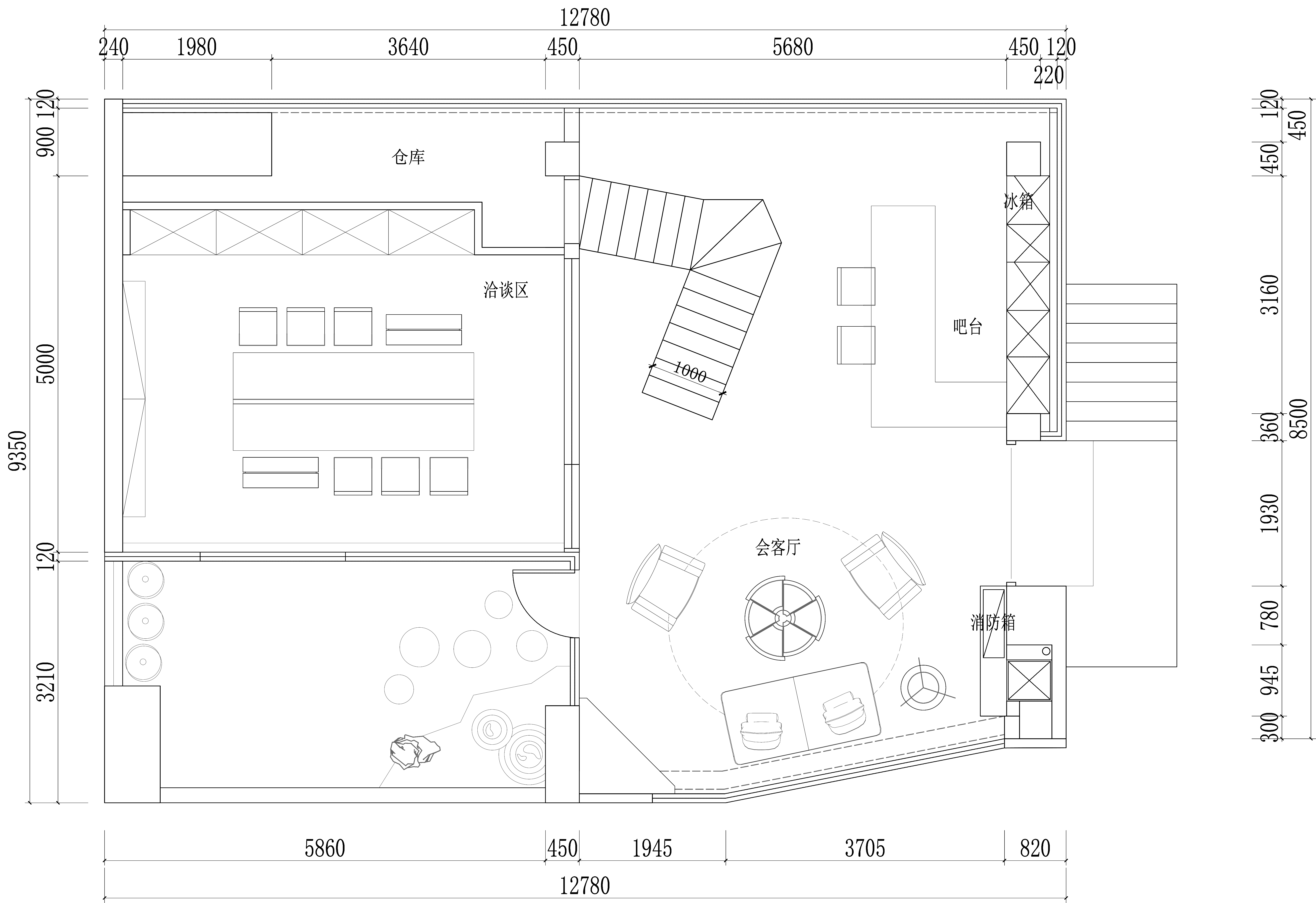
空间意境:我们并没有把她当做一个传统品类的商业空间来设计。在满足了基本功能之后,我们更注重于她的艺术表达和情感交互,希望所有的人在这个空间内能得到。空间规划上我们并没有做太复杂的动线,我们想表达直接的交互方式,让等待、洽谈、一气呵成。同时,也更注重于让所有的人坐在这个空间内的任何一个角度,都能感受到美好事物很直接的视觉传达。保留原有的旧建筑的肌理,与新材质的糅合,产生不一样的化学反应,她可能是矛盾、是对峙,最后是依存。
-
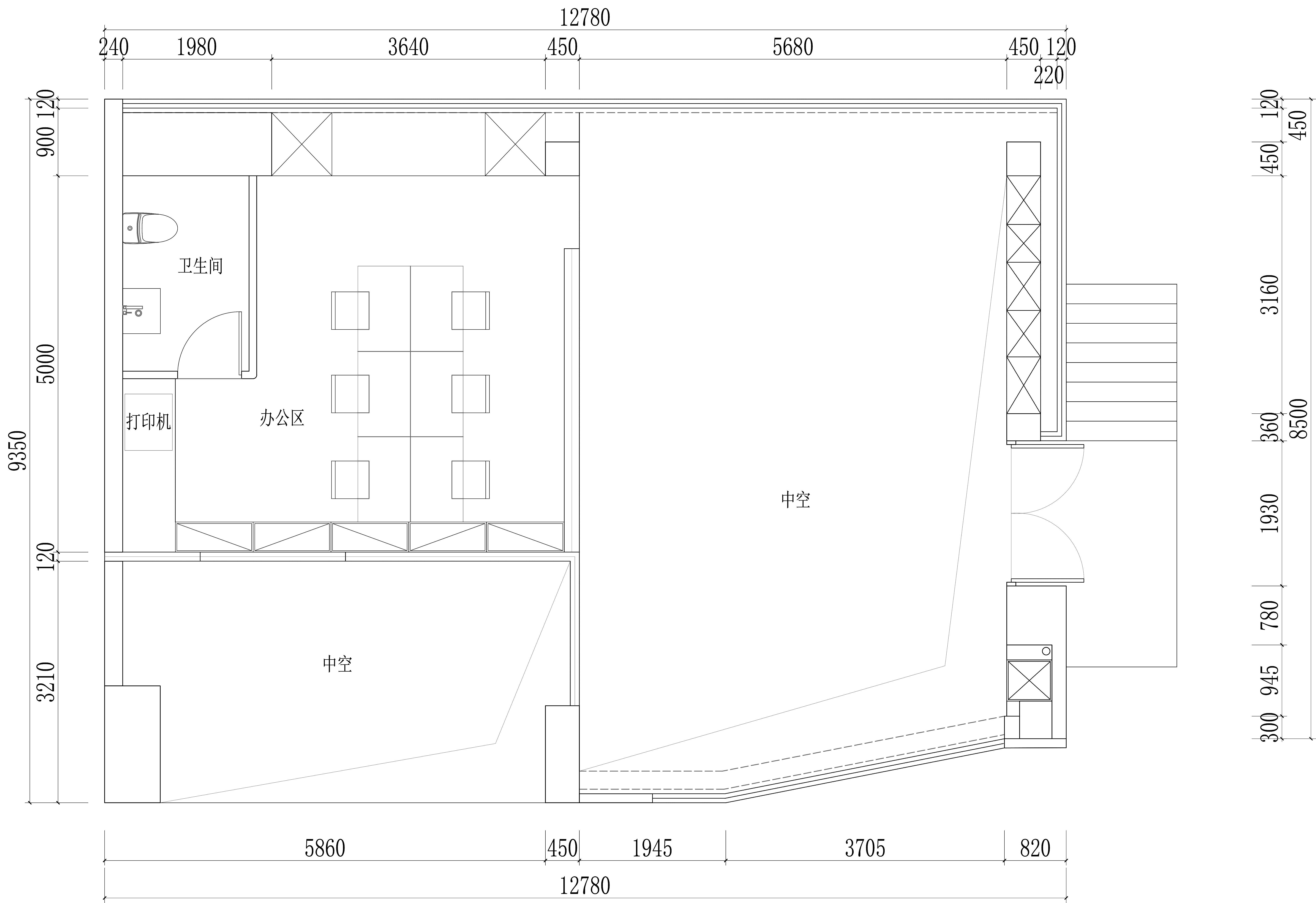
空间布局:储藏空间独立于会议室的一侧,形成独立储藏间和其他物品储藏间,这个设计创造了强大的收纳功能,同时让“隐”成为可能。在我看来这就是艺术最大的力量,艺术并不是那么遥不可及,这些纯粹的美,仿佛点点的星光,点亮了我们对生活对美的渴望。百川想成为这其中的一点星光,我们谈论美,谈论生活,简单的,真诚的。从品牌名“意念”的字面含义出发,通过空间的表现方式重新定义潜意识下的精神世界。将如何抓住并处理自然景观和未来主义之间的关系作为项目设计重点,放大“意念”调控自然的功能属性,以直白和具有穿透力的方式创造一个与意识和直觉对话的场所。
-
设计选材:顶面木地板结构自然连接街道的同时增强了项目的独特性,封闭的造型让内部空间与外界完全隔绝。自然的材质肌理与几何结构碰撞,以微妙的方式营造神秘感和仪式感。木地板的吊顶,利用不同媒介作为一个单元融合进空间中,同步现场氛围与光影的微妙变化,流动的花园景观为意想世界提供可视画面。为置身于其中的顾客提供更为微观的视觉感受。与以往采用软性材料来软化空间的坚硬感不同,花园石板作为自然界最原始的元素以最直接快捷,不具侵略性的方式存在于空间的各个角落。连接空间里的所有介质,模糊室内与室外,建筑与自然,现实与幻想的边界。
-
用户体验:工作室的环境收到广大朋友的喜爱,每个人都赞不绝口,氛围独特,成为设计师和业主们的打卡点,各大产品去工作室拍产品宣传片。

