之间你我
23654
作品说明
- 项目类型:住宅公寓
- 项目地点:北京市
- 建筑面积:150.0000㎡
- 项目造价:220.0000万元
- 参与设计师:张勇、马鑫
- 竣工时间:2019-03-15
- 设计机构:触觉设计
-
项目定位:本案中,设计师用别具一格的设计手法,在有限的框架内打破一贯的居住思维,构筑定制化的美学及生活方式,让「你我之间」满足一切感性的功能体验与视觉冲击力。各种材质衔接自然且流畅,巧妙绝伦地演绎出每种功能空间的节奏属性。每一个设计亮点都与屋主的性格相互交流,诠释屋主对品质生活的要求。
-
空间意境:本案整个空间运用多材质推叠出空间层次,凸显纯粹而定静的本质。设计师倡导将功能性与生活美学结合起来,勾勒出室内丰富的生命力,以线面的连贯保持空间的连续,智能化家居系统传递着安全与舒适感,让居住者体会空间的沉稳与内敛。
-
空间布局:步入玄关,映入眼帘的是一只超级限量版暴力熊,没有繁杂的装饰和色彩,纯净大方而又气定神闲,黑色中透出霸气与安全,让人一进家门便忘却了一天的烦扰与疲倦。
玄关周围,每个空间在相互关联的同时,又不失隐蔽感,几个主空间的入口均被计成了隐形门形式,运用了极具富有质感的天然木饰来营造多个不经意的“进入”,让人惊喜不断、意犹未尽,进入每一扇门的背后,更会发现别有洞天。
设计师运用开阔的空间设计手法,将餐区、客厅相连,扩大视觉感受,设计出满足个性化生活需求的流畅动线。黑白灰色系与木饰贯穿空间,灯具由几何线条塑造造型, -
设计选材:客厅呈黑白灰色调,作为整个客厅的亮点——沙发背景墙,设计师用特殊材料做呈现,还原并强调空间内材质交织的魅力,引入质朴天然石材,与良好的自然光照相映,平衡着整个空间内的家具造型,同时也平衡着理性的生活方式,并满足感性、大胆、创新的生活体验。极简风格的电视背景墙与木纹、石材形成了独有的成熟内敛气质。
仅由轮廓与线条勾勒的时钟为客厅增添了几分洁净利落的神韵,与天然石材背景墙相互依托,呈现出独特的装饰效果。整个客厅宽敞通透、装饰简练而精致,时刻彰显着屋主的格调与品位。
灰色棉麻床品,简单却富有品质感。床头的装 -
用户体验:简练而精致,时刻彰显着屋主的格调与品位。
客厅(沙发区整体正写)
客厅(正拍,左侧毛石+右侧云朵拉灰石材,一组黑色沙发,一款非常具有质感的地砖,这一切好美)
客厅(电视墙正角度拍摄云朵拉灰与KD纯实木涂装板,配以黑色拉手的完美邂逅)
客厅玄关区(视角为从卫生间角度拍摄,将台湾KD木饰面与铜板拉丝、意式极简长虹玻璃门,配以一个超级限量版暴力熊,此情此景,别具一格)
餐厅+客厅整体视角(以GUBI灯为餐区亮点,以来自台湾的KD涂装板进行餐边柜整体装饰,配以右侧木质、石材饰面,突显整体感)
主卧室(整体正面照,背景墙为KD拼装)
主卫生间(来自福建特选石材——杭灰石,配以欧文莱灰,和谐中透漏出大气与沉稳,来自土耳其的威达洁具,也毫不逊色,占据着整个主卫的C位)
衣帽间(全角度照)
次卧室(整体斜角照,五斗橱为锐驰品牌,配一个日本限量版玩偶,使空间内生动活泼了不少)
次卧室(正面照,锐驰的床+边几,配以意式极简衣帽柜)
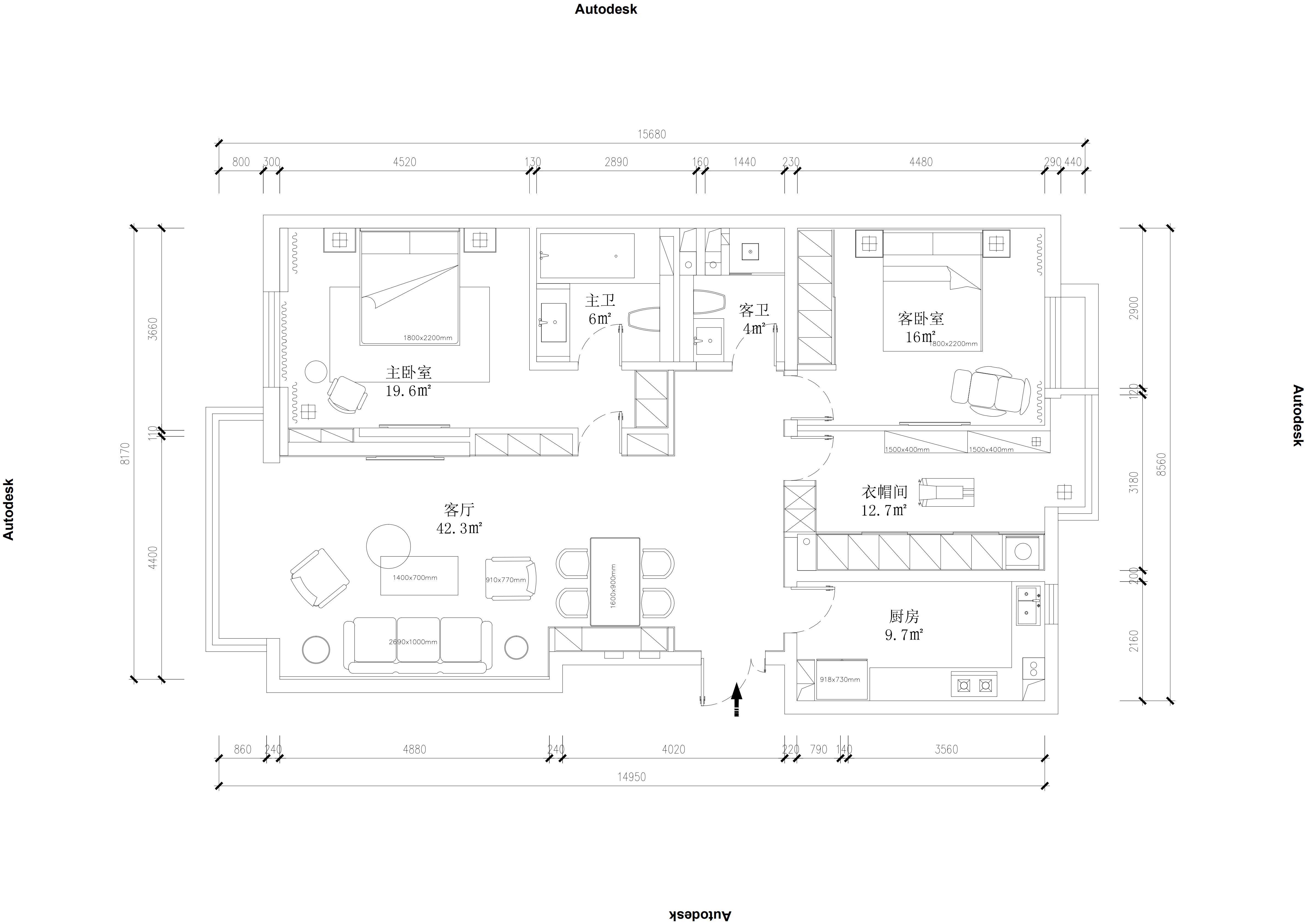
平面布局图
平面规划图
原始结构图
1
5

认证 · 让您身份增值