柏舟民宿



作品说明
- 项目类型:酒店
- 项目地点:临安市
- 建筑面积:500.0000㎡
- 项目造价:500.0000万元
- 主案设计师: 刘丰华
- 参与设计师:刘丰华(刘文选)
- 竣工时间:2019-05-01
- 设计机构:中国美术学院风景建筑设计研究总院有限公司
-
项目定位:艺术融入空间
-
空间意境:推开柴门,一幅宋代的山水画境映入眼帘,松鹤呼应,小园几许,收尽春光,有桃花红,李花白,菜花黄。远远围墙,隐隐茅堂,柏舟的庭院构成了令人魂牵梦绕的中国古代士大夫生活美学。
民宿外环绕有一座中式古典庭院,后山还有供人静心养性的禅房,从空中俯瞰,整个民宿更像是一件艺术品。门前流经清泉山涧,对岸是一片原生态农田,500多平米的民宿建筑藏身于山谷之间,却没有一丝违和,让人感觉房子是从山林间自然地“生长”出来的。 -
空间布局:柏舟民宿就像是都市人的“后花园”,傍水而居,靠山而食,可以感受到一种对乡村生活的体验和交流。是都市人调节紧张节奏,放空心灵的驿站,不仅仅满足都市人休闲度假,更是乡村文化和个人审美的心灵契合。是一个充满现代感与个人特色的民宿,与当地的农居建筑、田园文化高度融于一体,脱离了传统农家乐的模式,也摒弃了与当地人文过于不符的商业元素,从而呈现出一种人、建筑与自然三者的和谐生态关系。
-
设计选材:吾心安处便是家,柏舟民宿整体的室内设计在简约之中又透着一股禅意,在细节上十分考究。考虑到现在很多住客都是一家三口出行,孩子也需要有相对自由的室内空间,便将一座旧砖窑改造成了乡村儿童图书馆。
-
用户体验:如果说莫干山是洋家乐,是西式生活方式与中国山村的融合,那么柏舟民宿则是中国经典文化与现代生活在乡村的意外碰撞,有着我们自己熟悉的气息和温度。
柏舟民宿
柏舟民宿位于河桥古镇洞坞村的山谷里,由旧民居改建而成。 推开柴门,一幅宋代的山水画境映入眼帘,松鹤呼应,小园几许,收尽春光,有桃花红,李花白,菜花黄。远远围墙,隐隐茅堂,柏舟的庭院构成了令人魂牵梦绕的中国古代士大夫生活美学。
民宿外环绕有一座中式古典庭院,后山还有供人静心养性的禅房,从空中俯瞰,整个民宿更像是一件艺术品。门前流经清泉山涧,对岸是一片原生态农田,500多平米的民宿建筑藏身于山谷之间,却没有一丝违和,让人感觉房子是从山林间自然地“生长”出来的。
柏舟民宿就像是都市人的“后花园”,傍水而居,靠山而食,可以感受到一种对乡村生活的体验和交流。是都市人调节紧张节奏,放空心灵的驿站,不仅仅满足都市人休闲度假,更是乡村文化和个人审美的心灵契合。是一个充满现代感与个人特色的民宿,与当地的农居建筑、田园文化高度融于一体,脱离了传统农家乐的模式,也摒弃了与当地人文过于不符的商业元素,从而呈现出一种人、建筑与自然三者的和谐生态关系。
吾心安处便是家,柏舟民宿整体的室内设计在简约之中又透着一股禅意,在细节上十分考究。考虑到现在很多住客都是一家三口出行,孩子也需要有相对自由的室内空间,便将一座旧砖窑改造成了乡村儿童图书馆。
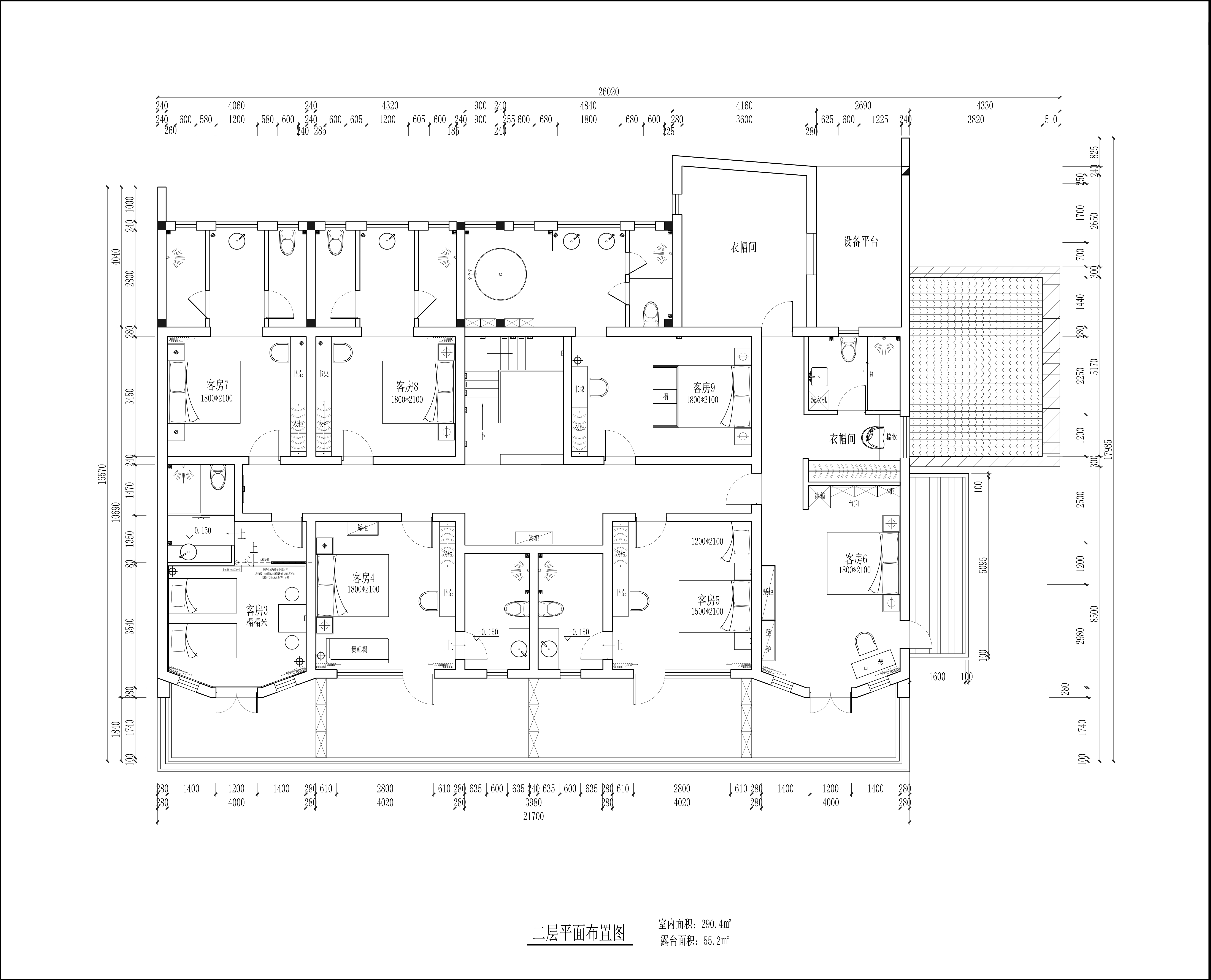
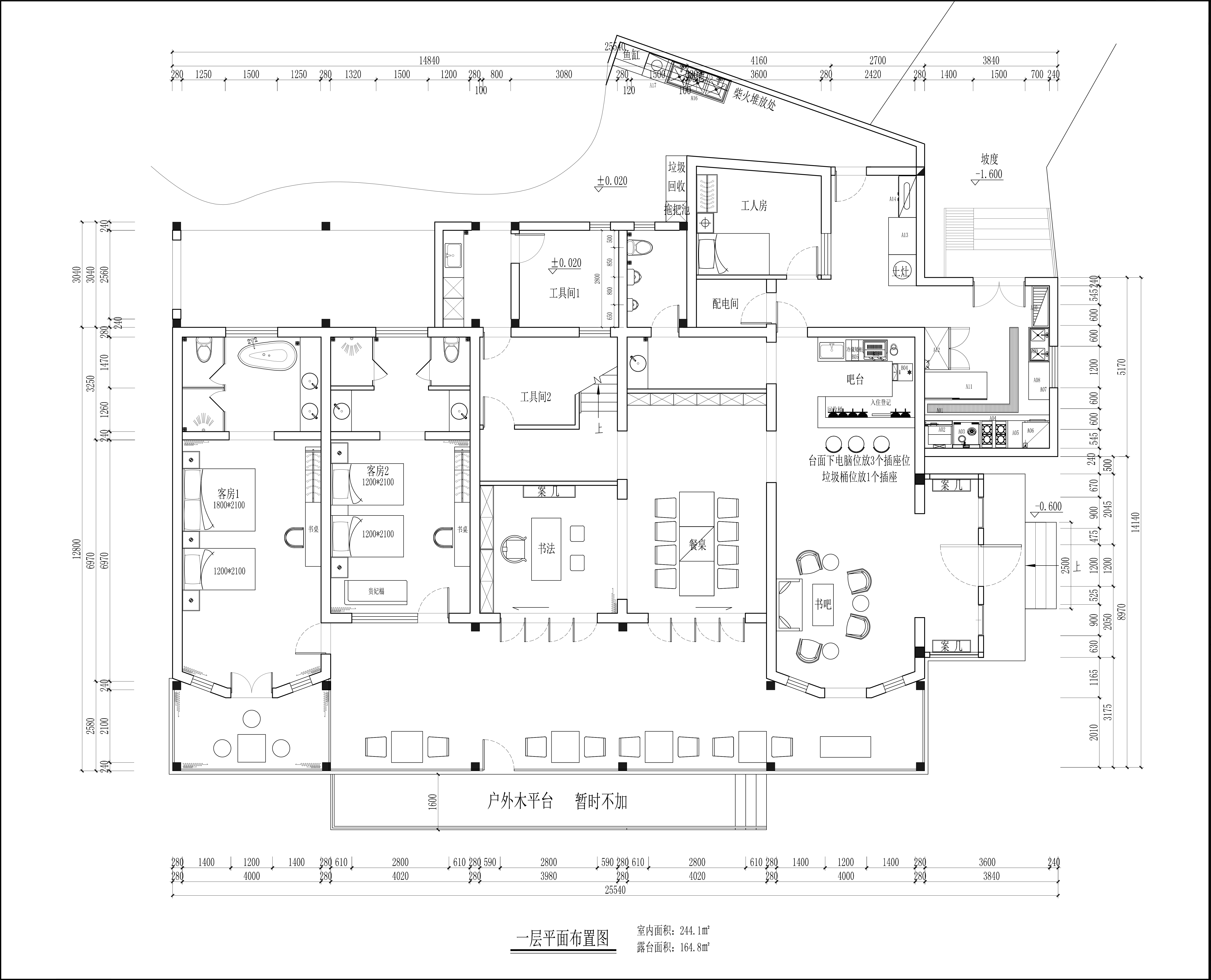
昌化平面-1
昌化平面-2
昌化平面-3
昌化平面-4

