南美咖啡總店
146
作品说明
- 项目类型:餐饮
- 项目地点:台湾
- 建筑面积:110.0000㎡
- 项目造价:110.0000万元
- 参与设计师:蔡松霖
- 竣工时间:2024/10/31
- 设计机构:时研国际设计股份有限公司
-
项目定位:五十余年来三代人的经营之下,南美咖啡士林总店从早期政府配额管制的咖啡豆贸易商,慢慢变成今日的零售咖啡豆结合咖啡馆的模式,同时也是台湾整个咖啡产业最初的始祖级老字号,也是老台北咖啡爱好者的集体记忆,因此展现咖啡贸易文化及70年代的台北街市意象成为本项目的主要目标。
期许本店能在咖啡馆林立的台北,创造出一种全新的美学态度。 -
空间意境:在美学上,我们透过很明确地分析过程确立的风格定位,由于咖啡贸易史与殖民文化有着密切的关系,且士林地区又属台北市发展较慢的区域,街道仍保有明显地70~80年代之台北城市风貌,经过与客户的多番研究讨论之后,最终混合了老店初创时期的台北一般街巷建筑语汇以及殖民风格的装饰质感,将铁花窗、复古印花地砖、复古手工釉面壁砖、白雾玻璃灯具、东南亚硬木色调复古等元素一并整合,混搭半世纪前的台湾街巷印象与折衷的殖民主义风格,保留了店内几样数十年历史的老件装饰,甚至以桧木复刻了五十多年前第一代的招牌设于店内,让老顾客们彷佛沉迷在年轻时的旧时代当中,却又没有明确地时代感,使整体氛围洗炼而弥新。
-
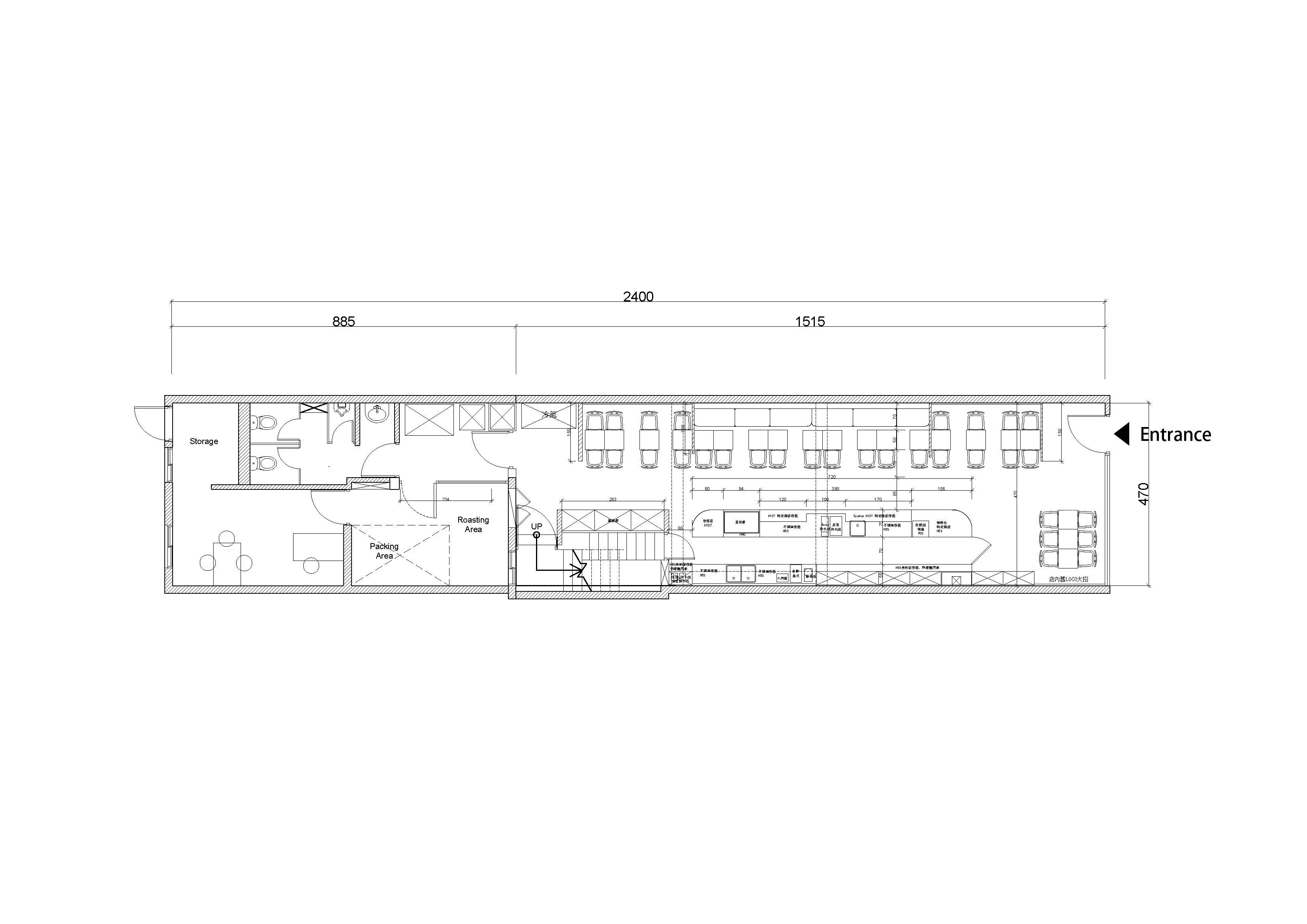
空间布局:在平面布局上,受限于传统透天店面的狭长空间,我们特别在材质性格于垂直高度上增加了轻重层次之分,浓墨重彩的语汇发生在吧台高度以下,以多种硬木纹、石材、复古线板及花砖地板等表现特色,使狭长的座位区增加了品尝咖啡时的安定感;而中上层高度则相对轻巧简约,并以当代常见的白色天花收顶,以此在狭长的店面空间中创造更多层次。
-
设计选材:由于台湾特有的市场环境,本项目设计与施工皆由我方执行,因此材料细节上的工艺水平极高。选材上,所有的材料都满足台湾严苛的室装审查标准及绿建材标章,全部材料都有必要的认证,包括: 低甲醛、防火防焰,所有的卫生设备都有省水标章,所有的灯具皆有节能标章,且为顾及老店的长期可持续性经营,光源大多为E27螺旋灯泡等易更换的老式规格品。
-
用户体验:长达20个月的设计时程,以及近4个月的施工期,本案的成果仰赖客户及我方彼此间的高度信赖,客户对于我方高度专业的精致服务亦给予非凡的赞赏,
从2024年10月份进入试营运以来,每周7天,每天12小时,皆一位难求,吸引许多附近士林区的老顾客及赶来尝鲜的名人、文人学者、美食作家等,新老顾客络绎不绝,社群媒体上的各种分享讨论不断出现,本案俨然成为台湾咖啡界的指标。
0
0

认证 · 让您身份增值