三亚鹿岛高定私宅



作品说明
- 项目类型:住宅公寓
- 项目地点:三亚市
- 建筑面积:340.0000㎡
- 项目造价:160.0000万元
- 参与设计师:刘卷卷
- 竣工时间:2024.01.01
- 设计机构:北京华熙万物设计有限公司
-
项目定位:项目名称:三亚鹿岛高定私宅
项目面积:340㎡
设计机构:WWD 华熙万物
工作范围:全案设计及全屋落地
创意总监:劉卷卷
设计团队:廖旭鹏、张学智、靳婷婷、崔文雅
设计时间:2023.06
竣工时间:2024.01
项目摄影:图派空间摄影
文案策划:NARJEELING那几岭
项目策划:楽品牌策略机构
主材品牌: 阿尔贝纳、兰舍、旭格、朗斯、高仪、Hansgrohe汉斯格雅、TOT0、九牧、TATA、罗格朗
设计说明: 在繁忙喧嚣的现代生活中,人们渴望寻找一处能让身心彻底放松的造风港。本项目以暗色系为基调,旨在营造出一种静性、深逢且极具沉浸感的空间环境,使每一位进入者仿像置身于一个与世隔绝的宁静之境,所有的疲盘与压力都能在这片独特的空间中得到充分的释放和解脱。
巧妙地运用贝壳、石子、水晶、玻璃材质,将大海的元素引入室内,实现空间与自然的深度交融与对话,让人们在室内也能感受到大海的磅骥与宁静,体验到与海共呼吸的奇妙感受。
在繁忙喧嚣的现代生活中,人们渴望寻找一处能让身心彻底放松的避风港。本项目以暗色系为基调,旨在营造出一种静谧、深邃且极具沉浸感的空间环境,使每一位进入者仿佛置身于一个与世隔绝的宁静之境,所有的疲惫与压力都能在这片独特的空间中得到充分的释放和解脱。同时,巧妙地运用玻璃材质,将大海的元素引入室内,实现空间与自然的深度交融与对话,让人们在室内也能感受到大海的磅礴与宁静,体验到与海共呼吸的奇妙感受。 -
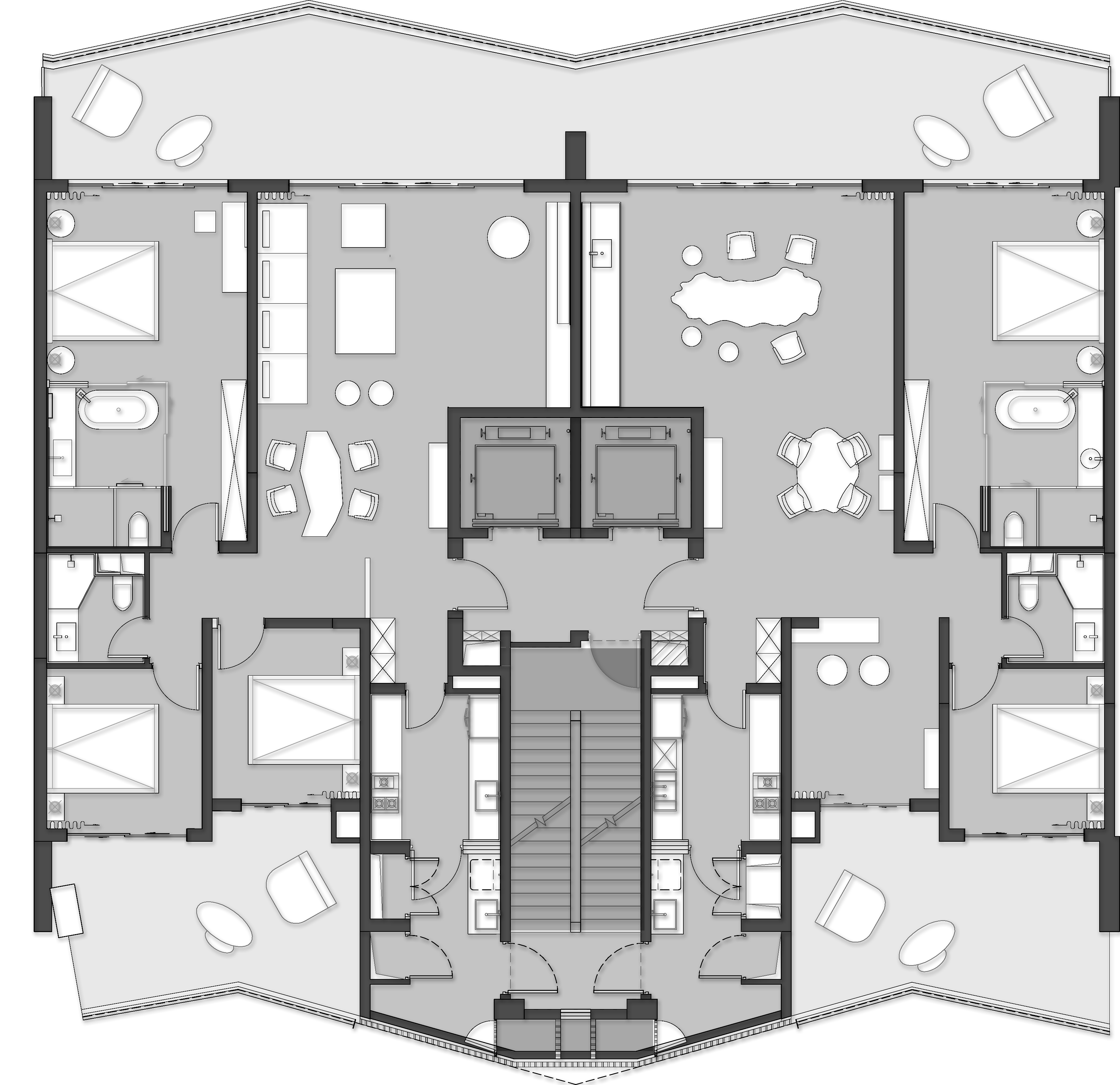
空间意境:巧妙布局使室内外海景融合成自然融合之域,亲水平台延伸室外,周边绿植花卉环绕,可近感自然且便捷回室内。融入海洋文化元素成文化海韵之角,展示航海地图、生物标本、手工艺品,绘海洋壁画,增文化底蕴与艺术气息,让人领略海洋文化并与历史对话。
-
空间布局:“暗海幽居” 在空间布局方面大胆创新,突破传统。以开放式通透布局为主,拆除客厅、餐厅与临海观景区域间的封闭隔断,使空间视野无阻,室内外无缝衔接,让人时刻畅享大海盛景。运用悬浮式设计划分功能区,悬浮木质吊顶塑造海浪礁石之态并区分空间高度,玻璃隔断维持通透,各区域既独立又交融,似海陆相依。借巧妙家具摆放与规划构建海景聚焦线,沙发、餐桌朝海排列,搭配玻璃栈道通道,引导人们深入海景核心,步步贴近大海,强化人海的视觉与情感纽带。
-
设计选材:“暗海幽居” 在选材上彰显低碳与经济的巧思。墙顶面摒弃传统材料,选用硅藻泥与艺术马来漆。硅藻泥环保,其多孔结构能净化空气、调节湿度,吸附甲醛等有害物质,为空间营造清新环境;艺术马来漆工艺多样,可展现如沙滩、海浪、岩石般的自然肌理,二者结合,视觉与环保双赢。
地面采用现浇水磨石混入三亚五彩贝壳。现浇水磨石坚固耐用、成本低,贝壳则带来浓郁海洋气息与地域文化特色,经处理镶嵌其中,阳光下如海滩珍珠闪耀,减少运输碳排放的同时,让空间更具艺术美感。
玻璃、镜面、铂晶亚克力等通透材质也被大量运用。玻璃透明度高、采光好,使大海景色映入室内,拓展空间层次;镜面利用反射强化视觉延伸;铂晶亚克力质轻高强、光泽度高,用于装饰细节与造型。它们相互搭配,构建空间与大海的深度交流,在实现设计效果同时优化选材经济性,达成视觉与成本的平衡,为空间注入独特魅力,让入住者感受自然与人文的交融。 -
用户体验:当客户踏入这片 “暗海幽居”,首先会被那浓郁而深邃的暗色系氛围紧紧包裹。从踏入的瞬间,一种远离尘世喧嚣的宁静感便油然而生,仿佛时间都在此刻慢了下来。夜晚来临,调暗灯光,空间被暖黄色与淡蓝色的光影交织笼罩。躺在舒适的床上,听着海浪拍打着岸边的声音,如同在大海的怀抱中安然入睡。清晨醒来,拉开窗帘,第一缕阳光和那清新的海风一同涌入,新的一天在这与海相伴的美好中缓缓开启。在这里,客户能真正地放松身心,让灵魂得到滋养,与大自然深度对话,每一次入住都像是一场心灵的归旅。

