一院藏尽江南



- 项目类型:别墅
- 项目地点:常州市
- 建筑面积:367.0000㎡
- 项目造价:200.0000万元
- 参与设计师:徐梦薇
- 竣工时间:2024-10
- 设计机构:川上设计(常州)有限公司
-
项目定位:带院子的房子
业主的养老房
空间的布局、家具的陈列、器物的选择、颜色的体系,家的每一处都外化着我们的内心语言。审美也好,生活习惯也好,对待物品的方式也好家都会随着我们的成长,在不同阶段变成不同的模样。安宁的,拙诚的笃定的,不随波逐流的。 -
空间意境:在原有园林建筑的技术上,我们做了室内室外的规划和落地,整体空间不像做的太传统,表达禅意雅致的质感格局,摒弃繁复的设计,进退有度,不追逐于过渡装饰,不随波逐流跟随流行,也说不上某种特定的风格,但每件都有生命力,有种可以与之安静对话的拙朴感。
-
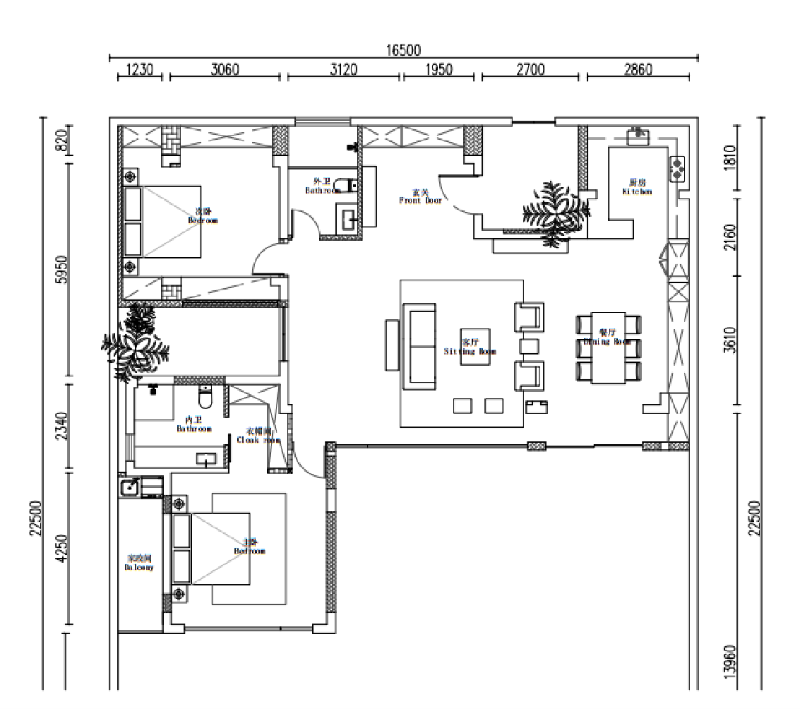
空间布局:巷门、院门、宅门,三进制的院落格局,再现东方传统的归家礼序。
每个空间都有不同的赏景角度和观景区域,互不打扰。
室内与室外合而为一,互为风景。 -
设计选材:用于可持续&天然建筑材料,大理石/木材/竹编/棉麻,住宅人类与环境共生。
没有最贵的,只有最优选择. 一切考量标准结合成本,效果,工艺,灯光等因素得出最后结果
-
用户体验:非常满意,业主已购入新宅,并预约新的设计。
叠石、理水、繁树、亭榭......构筑起花木葳蕤、锦鲤戏水的园林雅集。曲径通幽,移步异景,无论是在院内闲庭信步、还是在室内倚窗近观,这一派檐上春秋、庭院深深的东方意象都令人无限陶醉。
巷门、院门、宅门,三进制的院落格局,再现东方传统的归家礼序。霜叶如丹、松柏苍翠,在留白的幕墙之上生出肆意的色彩与姿态,而这幅画卷却又四时不同、朝夕各异,令每一次的驻足观赏都充满了新意和惊喜! 暖融的午后,一张拙朴的小竹椅便可享受一段“偷得浮生半日闲”的恬静光景。
入户门厅都实用了老石板铺设,岩口的雨帘在雨天别有一番意境。
进退有度,是国人的处世之道。餐厅与开放式的厨房居于空间一隅,整体连绵成一体,进退有度的立面与柜体无缝衔接,将功能性分区的各类收纳、设备妥善安置。
看,江南烟雨,听,虫鸣鸟啼,赏,四季流转。燃一线香、沏一壶茶,身心真正的平静,不是避开车马喧嚣,而是在心中 修篱种菊。
茶从口中入,道至心间生。打造一间至简至雅的中式茶室,是每个爱茶之人心中所求。茶室还原旧时的木构屋顶,映衬着这一方茶桌,更显古趣十足。墙上的博古架展陈了主人收藏的各种茶器,每一只都玲珑有致、颇有故事。随兴而至,玩古鉴真、煮茶品茗、挥毫泼墨......这方小小天地总能让人收获洗涤内心般的空明澄澈。
格局的调整,根源于生活方式的经营。设计师拆除建筑原有的9扇花格窗,取而代之的是略带中式线条的大面落地窗。通透的玻璃,将室内外的界限消融。草木砖瓦、天光云影,窗已不止是功能意义上的窗,而是成了室内最大画幅的 流动画框。
林语堂曾在《来台二十四快事》中写道:“宅中有园,园中有屋,屋中有院,院中有树,树上见天,天中有月,不亦快哉!”从古至今,庭院情结蕴藏了国人骨子里对精神圣地的追求和诗性生活的向往。而本案接近1:1的 院宅配置比,更是尽显江南大宅风范。独享173m²的私家院落,着实令人艳羡!
松竹生虚白,阶庭横古今。竹,品性高洁,虚怀若谷,是君子的化身,古往今来都深受文人墨客的喜爱。次卧床头的墨竹落地灯,便是精挑细选而来。藤制衣柜与开放式的挂衣杆,则将中式的内敛与现代的张扬结合的恰当好处。开合有度,隐逸有度。时序流转,一器一物皆成雅韵,于动静之间入君佳梦。
独特的中式坡顶,尽显东方韵律的气度与魅力。设计师将简约的现代线条与之结合,蜕变成诗意且极富层次的风雅典范。
简约的黑,点缀于不同饰面构建的胡桃木色之上,玻璃与板材的虚实结合,为餐厨空间平添了更多的层次。当然,更多细节的关怀和设计的巧思,值得入住之后慢慢体验。
唯有牡丹真国色,花开时节动京城。富丽堂皇的金色牡丹,跃然于木色之上,成为视觉的绝对焦点。一席中式气韵如画铺展,空气里都似是有满园花开、沁人心脾。
从古至今,国人就十分注重入户的隐私,玄关历来讲究“藏风聚气”“先抑后扬”。摒弃繁复的端景设计,设计师施之以创新。发光的中式格栅,线条简约、比例得当,充满着秩序的美感。观感方面,似透却不漏,改善了传统墙体或护墙带来的空间闭塞感,又保证了私密性。自然的胡桃木色调,与细腻的石材纹理,阐释生活的不俗之美。嵌入式隐形拉手精细有味,以“减法设计”将线性美学融入东方风韵,整个玄关空间素雅有序而又意境无穷。
无论是白天、黄昏还是夜晚,百变的光影,为室内度上一层自然的滤镜。简约舒适的中式家具、姿态舒展的盆栽,即使是肆意摆放,亦觉得十分雅致。
东方美学,作为一种独特的美学体系,它深深植根于历史的土壤中,体现了国人对美的理解和追求。无论是文化内涵、审美价值,还是人性尺度,都值得我们传承、珍惜,和旷日持久的发扬。不论时光如何跃迁,我们对东方美学的偏爱,不仅是骨血里东方文化的召唤,更是兼收并蓄、海纳百川的东方精神的回归。
功能划分清晰,化零为整,每个房间都有各自的窗景,互不打扰,开放空间可以尽可能的观赏到园中景色,与厢房遥相呼应。

