金堂奖
金堂奖简介
参赛指南
参赛入口
委托报名
参赛记录
设计师V网站
V网站介绍
V网热度榜
作品展示
秒景AI设计
进入AI设计
操作指南
开通会员
* 不支持7天无理由退货
了解更多
五大会员回报
一、五种秒生图 · 让您秒速谈单
文生图、全屋设计、线稿变精装、毛坯变精装、旧房翻新
——自研Ai、前期提案0成本,以图锁客、签单神器
二、秒生爆款文案 · 让您轻松日更
Ai秒生小红书爆款文案、专业级参赛文案
三、小程序分发 · 让您直达业主
V网站小程序支持多平台分享、高效引流
四、个人主页 · 让您专属展示
个人作品专属展示,设计师私属商务名片
五、红
认证 · 让您身份增值
“行业奥斯卡”金堂奖加
认证,让您增值
限时优惠,免费试用3天
金堂奖会员
¥
399
/
年
¥880
终身会员2980元(不限年份、永久使用)
在线支付
在线支付安全认证
安全可靠
您的信息将完全加密
即买即用
享受更多优质会员服务
应付金额:
¥
399
已扫码
请在手机上完成支付
点击刷新
请用微信扫码支付
支付即同意并接受
《金堂奖个人订阅服务协议》
恭喜,您已成功开通金堂奖VIP会员!
会员到期时间:2025-03-10
将于
10
秒后,跳转至
秒景AI设计,
立即跳转
关闭
简介
报名
记录
V网站简介
权益
我的V网站
主页
发布作品
金堂奖
秒景AI
V网站
我的
立即红
认证,享会员五大回报
您免费试用时间已到期,
立即红
认证,享会员五大回报
您的体验仅剩
2天
,立即认证享无限使用!
您的体验仅剩
1天
,立即认证享无限使用!
您的体验仅剩
1小时
,立即认证享无限使用!
立即认证
领取三天试用期
恭喜您成为
金堂奖会员
立享五大回报
会员有效期截止
返回
敞cosmos
171
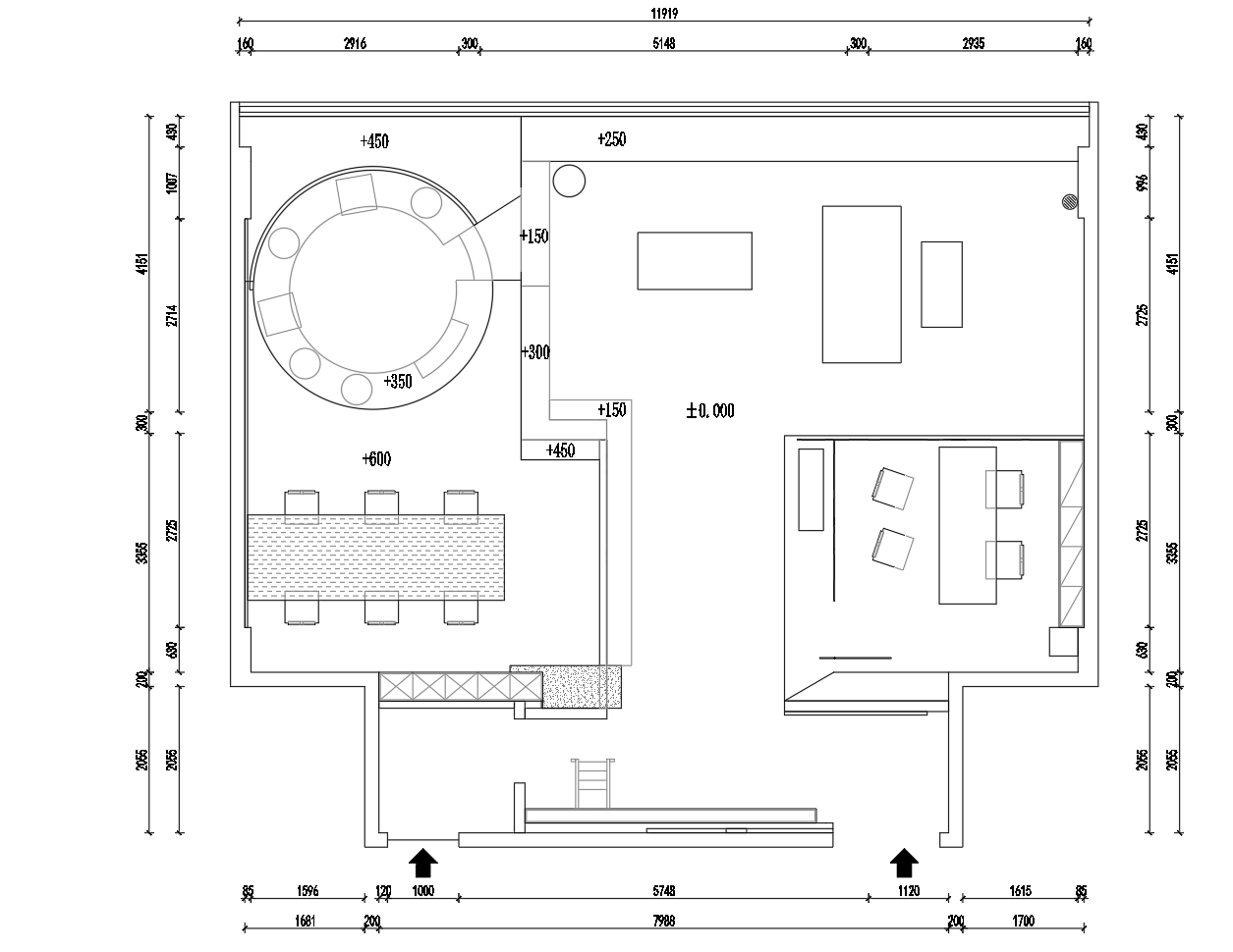
作品说明
项目类型:办公
项目地点:西安市
建筑面积:180.0000㎡
项目造价:30.0000万元
参与设计师:张睿
竣工时间:2024年1月
设计机构:敞也创意空间设计
金堂奖杰出作品证书
项目定位:
敞是工作室的名字 也是一种真诚的态度 欢迎大家常来常往
空间意境:
整体延续运用现代极简的设计风格
空间布局:
办公空间整体做了抬高 侧边下沉式沙龙区呼应
设计选材:
选材上 选用了清水混凝土板 地面水泥自流平 墙面艺术涂料
用户体验:
整体办公氛围很舒服 温馨 环境感觉很好
0
0
敞cosmos设计事务所
西安市
私信我
西安市
工作地点
联系方式
待完善
了解更多
敞cosmos
点击了解更多
IMFINE创意谷店
点击了解更多
如森
点击了解更多