線木之境
333
作品说明
- 项目类型:住宅公寓
- 项目地点:台湾
- 建筑面积:126.0000㎡
- 项目造价:300.0000万元
- 参与设计师:洪銘憶
- 竣工时间:2024/01/19
- 设计机构:彥霖室內裝修設計有限公司
-
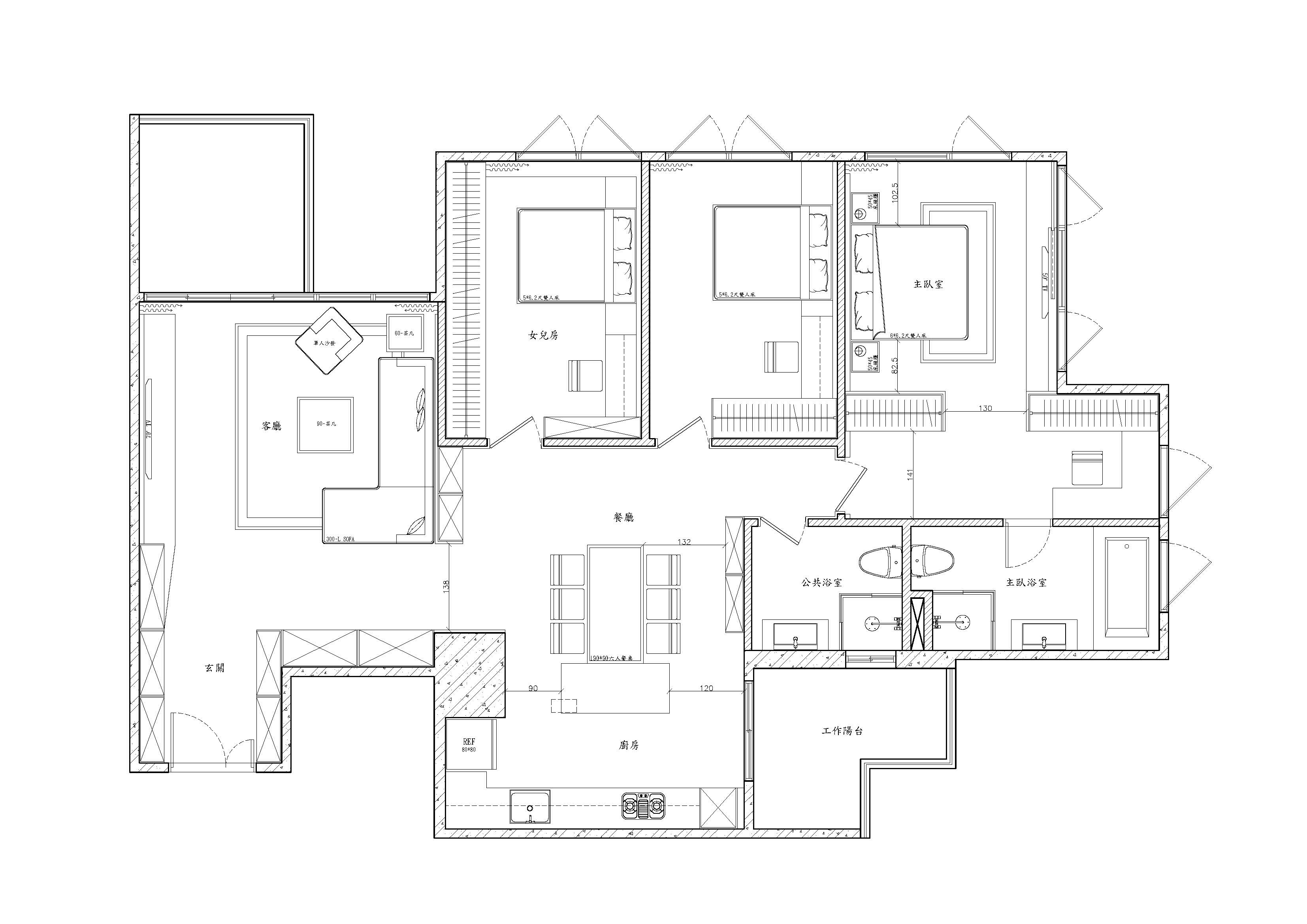
项目定位:全室以中性色調為主,如白色、灰色和黑色,營造出乾淨俐落的視覺效果。天花板、牆面及櫃體主要使用純白色,與灰色的電視牆面形成對比,展現簡約且高級的感覺,電視牆使用了大面積的灰色紋理石材,帶有自然肌理,增加空間的層次感和視覺焦點,地板採用淺木紋地板,增添溫暖且自然的元素,平衡現代設計的冷硬感。
-
空间意境:強調「少即是多」的設計原則,捨棄繁複的裝飾,注重空間的功能性與整體視覺的平衡,透過乾淨俐落的線條、簡約色調、黑色嵌入式燈帶及鏡面與白色天花板形成對比,兼具功能性與視覺藝術效果,增強空間的現代感設計,營造出優雅、舒適且現代感十足的居家空間。
-
空间布局:入口區域設計了隱藏式鞋櫃與收納櫃,與牆面完美結合,提供充足的儲物空間,同時保持視覺上的整潔,白色櫃體搭配黑色石材底座,簡約中帶有設計感,增強空間的現代風格引導動線,從玄關→客廳→餐廳,動線開放且流暢,滿足日常生活的便利性,不同功能區域之間雖有視覺分隔,但動線沒有多餘阻礙,提升了生活效率。
-
设计选材:採用經過認證的回收木材或FSC認證木材(森林管理委員會),降低木材開對環境的影響,並使用低甲醛、低碳排的中密度纖維板 (MDF) 或OSB板,這些材料常由廢棄木屑回收壓製而成,環保且耐用,漆面使用低揮發性有機化合物 (Low-VOC) 的塗料,減少室內空氣污染,對人體健康更友善。
-
用户体验:設計風格能讓我們客戶在視覺與觸覺上感受到平靜與舒適,並在情感上與空間產生共鳴,充滿溫暖感的木質牆面提供「自然親近」的體驗,讓人放鬆心情,明亮而開闊的設計讓家人聚在一起時倍感舒適溫馨。滿足現代家庭對情感交流的需求。
0
0

认证 · 让您身份增值