工宅 私域
254
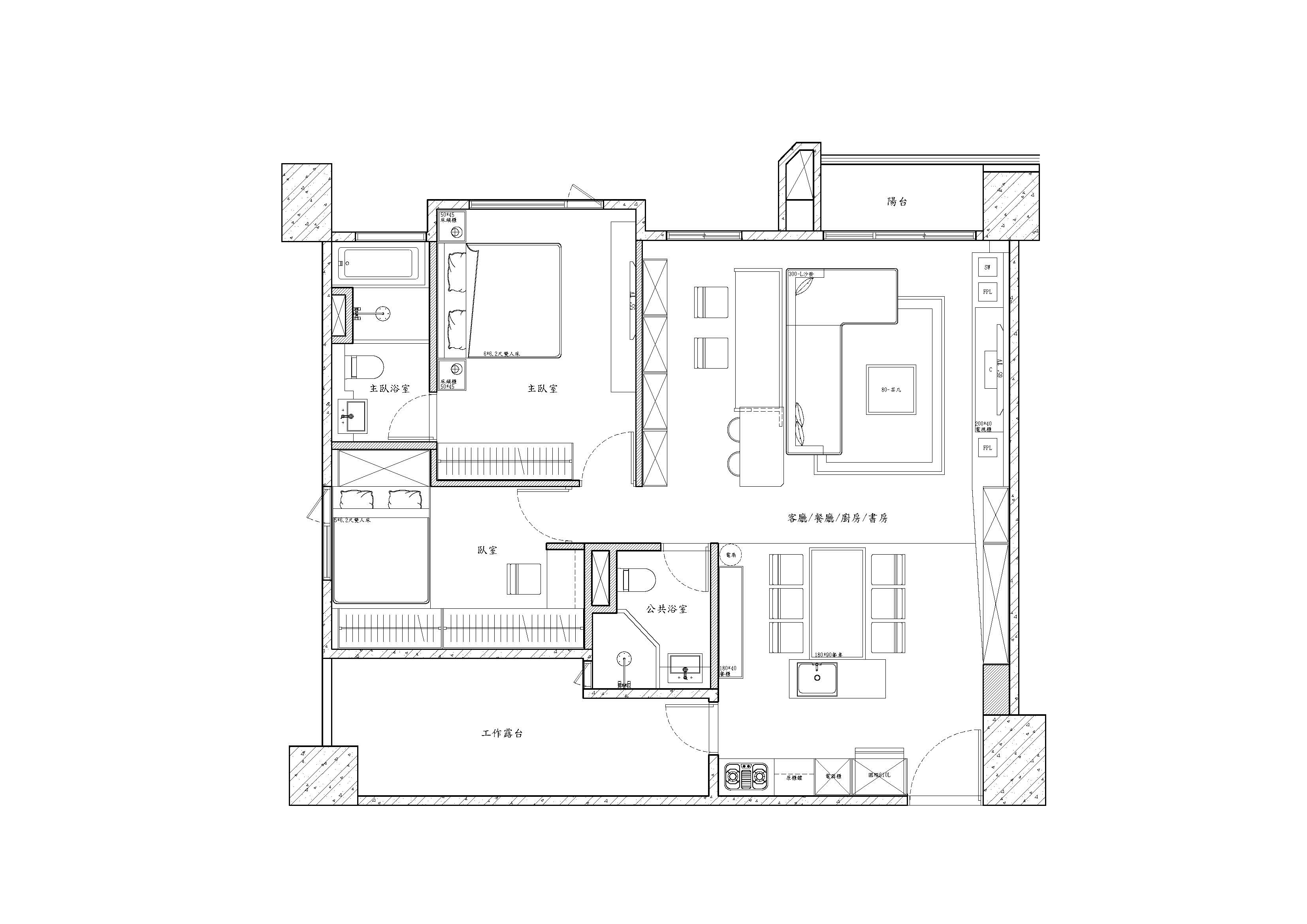
作品说明
- 项目类型:住宅公寓
- 项目地点:台湾
- 建筑面积:83.0000㎡
- 项目造价:150.0000万元
- 参与设计师:洪銘憶
- 竣工时间:2023/10/22
- 设计机构:彥霖室內裝修設計有限公司
-
项目定位:以鐵件搭配木紋的鞋櫃擺設,斜切立面的造型呈現,呼應創新靈感,懸浮的櫃體安排更帶來輕盈、不受拘束的空間氛圍;客廳裡一整面清水磚,刷亮空間視感,一切充滿溫暖質感,調和冷調的鐵件設計;沙發後方為開放書房區及品酒區,營造出穿透、流動的領域氛圍,品酒獨立桌面使用管材製作而成,簡約線條引出工業風的粗獷、不加修飾的味道,而空間裡更保有工作室、閱讀區或娛樂休閒等多元用途。
-
空间意境:植入年輕現代化的新穎元素,除了鐵件、木紋的安排,電視牆更揮灑大膽清水磚,跳脫工業風的既定印象,創造開放寬敞的動線,形塑舒適、風格別具的優質居家。
-
空间布局:藉由地坪及網狀的鐵件界定出玄關、餐廳與客廳,透視效果讓空間更有互動性。
-
设计选材:使用建材以鐵件、實木、系統板材,皆可再利用之材料。
-
用户体验:玄關旁為餐廳區,鐵網設計轉化為天花板造型,強而有力的彰顯領域獨立性,並與木紋餐桌、鐵件相互呼應,交融工業風的獨特精彩。
0
0

认证 · 让您身份增值