无界纵横



- 项目类型:别墅
- 项目地点:绍兴市
- 建筑面积:1300.0000㎡
- 项目造价:1000.0000万元
- 主案设计师: 倪冰飞
- 参与设计师:倪冰飞
- 竣工时间:2023年10月
- 设计机构:尚层装饰
-
项目定位:别墅室内设计不仅是空间的美化,更是生活方式的塑造。当我们的设计作品从图纸跃然于现实,每一寸空间都承载着对美好生活的向往与实现。设计的本质并非仅仅塑造美观的空间,而是要引领生活美学与艺术生活相融合。第一步,我们要如同太极拳师般,细腻地梳理空间的流动性和连贯性。我们追求的是那无形的‘任督二脉’,它将空间的界限消弭,让艺术渗透生活的每一个角落。
-
空间意境:光与影的立体思考,让奢华变得如同自然的艺术品,它在光影的交织下展现出丰富的层次感和动态美。
这是一种视觉享受,更是一种心灵上的触动,让人对奢华有了更深的理解和感悟。地下室的入户处,仿佛隐藏着一个神秘的艺术世界想要让人一探究竟。两层挑高、线条优雅的旋转楼梯,如同金属质地的龙脊,闪耀着金色的光芒。
这种设计不仅打破了传统的空间划分,也挑战了人们对功能与美学之间平衡的认知。不拘一格,大胆地将艺术元素融入日常生活场景中。 -
空间布局:
通过封掉原有的南向采光井,并新开东向下沉庭院,大大改善了负一负二层地下空间的自然光照。下沉庭院作为公共区域的核心连接点,与一楼花园和横向空间形成了一条清晰的横向动线。过调整采光井和下沉庭院的设计,既提升了空间的功能性(如增加光线、改善流动性),又不失美观性。 -
设计选材:材质的选择富于变化与层次感——火山岩的原始力量、石材的坚固质感以及微水泥涂料和木饰面带来的温馨自然,共同构建出空间的独特个性。
-
用户体验:用户反馈显示,这样的室内设计无疑为我们带来了一次前所未有的视觉与心灵上的盛宴。它不仅满足了我们对奢华与美学的追求,更让我们在享受艺术的同时,对奢华有了更深的理解和感悟。在这里,每一处细节都充满了设计师的智慧与匠心,让人在赞叹之余,也感受到了家的温暖与舒适。
这栋别墅的地下室入户处以其独特的光影艺术设计和艺术元素的融入,为我们呈现了一个既奢华又富有艺术气息的生活空间。它不仅仅是一个简单的入户处,更是一个能够触动我们心灵、让我们对奢华与艺术有更深刻理解的地方。我们期待着在这里度过更多美好的时光,感受艺术与生活交织的无限魅力
两层挑高的设计不仅增加了空间感,也为地下室引入了更多的自然光线,使得原本可能昏暗的地下室变得明亮而通透。旋转楼梯作为视觉焦点,巧妙地划分了空间,引导视线流动,营造出一种既私密又开放的氛围。
入户挑空金色设计以金色为主色调,结合挑空的空间布局,旨在营造出一种高贵、典雅的家居氛围。金色作为一种高贵且富有质感的颜色,能够彰显主人的品味和身份。同时,挑空设计使得空间更加通透,增强了室内的采光和通风效果,营造出一种宽敞、明亮的视觉感受。
挑空加楼梯设计使得楼梯与周围空间之间的联系更加紧密,增强了空间的流动性。人们可以更容易地在各个空间之间穿梭,提升了居住的便利性。
我们打破了传统观念中楼梯仅仅是连接不同楼层的工具性角色,转而将其视为一件精美的雕塑作品。线条优雅的旋转形态,不仅确保了使用的流畅性,更通过金属质地的选择和金色光泽的处理,赋予了楼梯以奢华与动感的双重魅力,实现了功能性与审美性的和谐统一。
光与影的立体思考,让奢华变得如同自然的艺术品,它在光影的交织下展现出丰富的层次感和动态美。 这是一种视觉享受,更是一种心灵上的触动,让人对奢华有了更深的理解和感悟。
结构的趣味性在于圆弧造型加地台的设计,它不仅巧妙划分了空间区域,而且赋予了空间更为流动的视觉效果。
两部楼梯,一横一纵,犹如空间的指挥棒,引导人们在其中探索与互动。
地下室的设计尤为独特,通过打破空间隔阂,实现了空间的无缝连接。采光井的引入不仅解决了光线问题,还强化了各区域之间的互动和联系。
水吧区是一个集多功能于一身的设计空间,为日常办公和休息提供便利。在这里,可以开展轻松的烘焙活动,宽敞的空间也适合接待朋友或者举办小型聚会。
茶室的核心宛如月光下的静谧湖泊,让人在繁忙之余感受到一份来自自然的心灵慰藉。
湿分离的卫生间整体设计在现代家居装修中至关重要,它不仅能提高卫生间的使用效率,还能有效保持空间的整洁与美观。
超大衣帽间巧妙地连接了相邻的卫生间,无疑为日常生活提供了极大的便利性。
卫生间的整体设计是一个综合考量空间利用、美观性与实用性的过程,其中浴缸、壁龛、墙面护墙板以及线条的运用,都是提升卫生间品质与功能性的关键因素。
地下室负二层被巧妙地设计为一个集休闲、娱乐、餐饮与健身于一体的多功能空间,通过旋转楼梯相连的采光井成为整个区域的视觉与动线焦点。 采光井的设计使得自然光线能够穿透地下室,为整个空间带来明亮与生机。旋转楼梯则以其优雅的姿态连接着负二层与上一层,成为室内的一处独特景观。挑空设计在某些关键区域得到应用,如大会客厅或影视厅上方,增强了空间的高度感,营造出更加开阔的氛围。 入户鞋帽间位于入口处,方便家庭成员存放和更换鞋帽,保持室内整洁有序。大会客厅宽敞明亮,是家庭聚会、朋友聊天的理想场所,家具布局合理,营造出温馨舒适的氛围。 卫生间采用干湿分离设计,提高了使用效率和舒适度,为整个负二层空间的使用提供了便利。整个负二层的布局既考虑了家庭成员的多样化需求,又通过巧妙的设计手法营造出了一个明亮、开阔、舒适且功能齐全的空间。
整个负一层以采光井为核心,光线透过井口洒落,为整个空间带来自然光与生机。采光井周围被精心设计的功能区环绕,形成了错落有致的空间布局。 茶室位于采光井附近,利用自然光营造出温馨舒适的品茶环境。这里不仅配备了高品质的茶具与茶叶,还设有舒适的沙发与茶几,为家庭成员或客人提供一个放松身心的场所。 保姆房与老人房则被安排在相对安静的区域,以确保他们的休息质量。保姆房设计简洁实用,方便保姆进行日常工作;老人房则注重舒适性与安全性,配备了防滑地板、扶手等辅助设施。 包厢则位于茶室与保姆房、老人房之间的过渡区域,可用于家庭聚会、小型商务会议或私人派对。包厢内设有舒适的座椅、音响设备与投影设备,可根据不同需求进行灵活布置。
一层空间的整体平面布局巧妙地将客厅、中厨、餐厅、厨房等功能区融合在一起,形成了一个既实用又美观的生活空间。
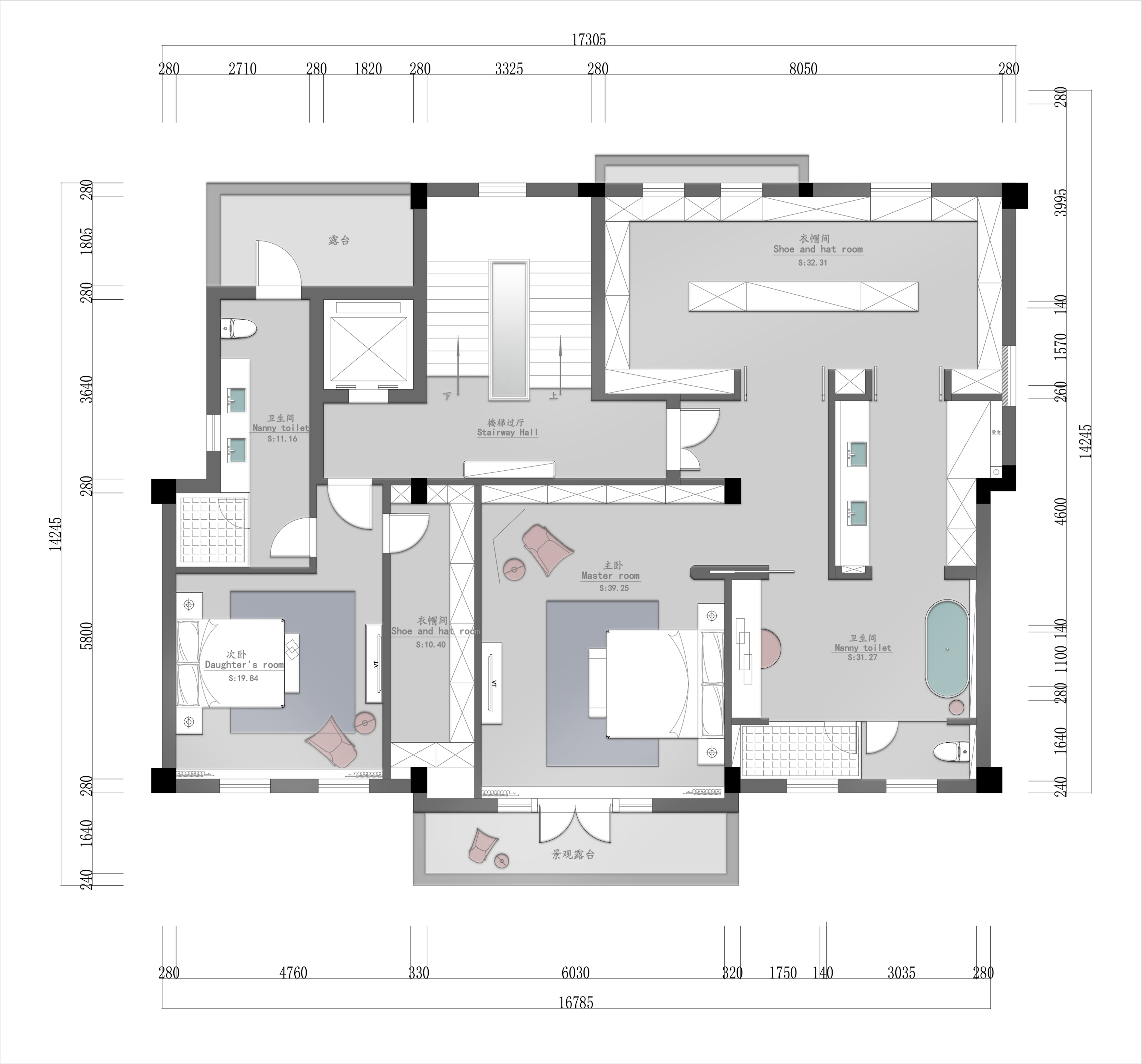
整个二层空间以一条主走廊为轴,将主卧室与客房分别布局在走廊的两侧,既保证了空间的私密性,又便于家庭成员的日常通行与互动。 主卧室位于二层东侧,享有极佳的视野与光照条件。卧室内部分区明确,卫生间设置了宽敞的浴缸区,让主人能够在享受沐浴的同时,也能感受到窗外的美景。浴缸区旁则是精心设计的衣帽间,其面积被最大化利用,以满足主人对衣物存储与搭配的多样化需求。衣帽间内设有明亮的灯光与充足的储物空间,让主人能够轻松打理自己的衣物与配饰。
在整体布局上,三层空间既注重了功能性与私密性,又通过巧妙的设计手法,将主人房与小女儿房完美融合在一起,形成了一个和谐、温馨且充满生活气息的家庭居住环境。各个功能区之间既有明确的分隔,确保各自空间的独立性和私密性,又通过走廊、过厅等过渡空间相互连接与呼应,使得整个三层空间既富有层次感又和谐统一,为家庭成员提供了一个既舒适又便捷的完美居住体验。

