-
项目定位:项目定位是一家具有国际视野的私人医疗机构,设计师打破常规医疗机构单一、无趣的刻板印象,通过柔和的线条、饱满的家具形态、舒适的彩色,为来宾打造一个轻松、愉悦、享受的医疗空间;帮助甲方实现私人客户的接待,让客户感受到不同于常规医疗机构的严肃,正真的放下心理的紧张感。
-
空间意境:在这样功能性需求很明确的服务空间中,设计师深入探索了如何将医疗机构的功能性需求与审美性追求巧妙融合,力图打破传统医疗空间的固有印象,以相辅相成、相得益彰的手法,融合了功能与审美于一体。
-
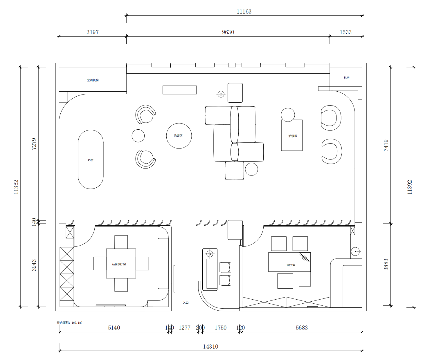
空间布局:在空间布局上,特别注重功能区的划分与衔接。以开放的会所概念植入其中,巧妙的设计了咨询区、治疗区、休息区以及等候区,各自独立又相互呼应,形成了一个既私密又开放的整体。咨询区以舒适的沙发和柔和的色调为主,营造出轻松愉悦的交流环境;治疗区则注重私密性和功能性,采用隔音材料和可调节的灯光设计,确保每位客户都能得到最专业的治疗体验。
在公共区域的设计上,摒弃了单纯为功能服务的生硬设计,转而寻求一种既能满足实际需求,又能给人以视觉享受的解决方案。以设计,巧妙地隐藏了功能元素,如医疗设备、管道和线路等,使它们不再成为空间中的突兀之物,而是与整体环境和谐共生。这样的设计不仅提升了医疗空间的美观度,也增强了患者的就医体验,让他们在温馨、舒适的环境中接受治疗。
两个诊疗室均被精心打造成独立的私密单间,这样的设计确保了每位患者在接受治疗时都能享有充分的隐私与宁静。此外,弧形的格栅设计不仅巧妙地划分了功能区域,还像一道屏障般守护了这份私密性,同时,它也如同一扇窗户,让柔和的自然光线得以穿透,为诊疗室增添了一抹温馨与明亮。光影的运用更是别出心裁,它们如同舞台上的魔术师,将诊疗室的空间层次与立体感展现得淋漓尽致。随着光线的变化,空间仿佛被赋予了生命,每一次的转折与起伏都显得那么自然、那么和谐,为整个诊疗环境营造出了一种宁静而又不失生机的氛围。 -
设计选材:在设计选材方面,力求将品质与美感完美融合:质感艺术漆以其独特的纹理和色彩,为墙面增添了艺术气息;高品质布艺则以其柔软的触感和丰富的图案,为家具披上了华丽的外衣;自然原木饰面则保留了木材的天然纹理和色泽,让人感受到大自然的清新与纯净;大理石则以其坚硬的质地和华丽的纹理,为空间增添了几分高贵与典雅;而地毯的选择,则更注重脚感的舒适与整体风格的协调,让人在行走间也能感受到一份温馨与惬意。
-
用户体验:设计是为商业服务的,好的设计是让商业本身更加具有吸引力,因为有有趣的设计,也让一些日常的商业业态和消费者有更多的互动和相互启发。

