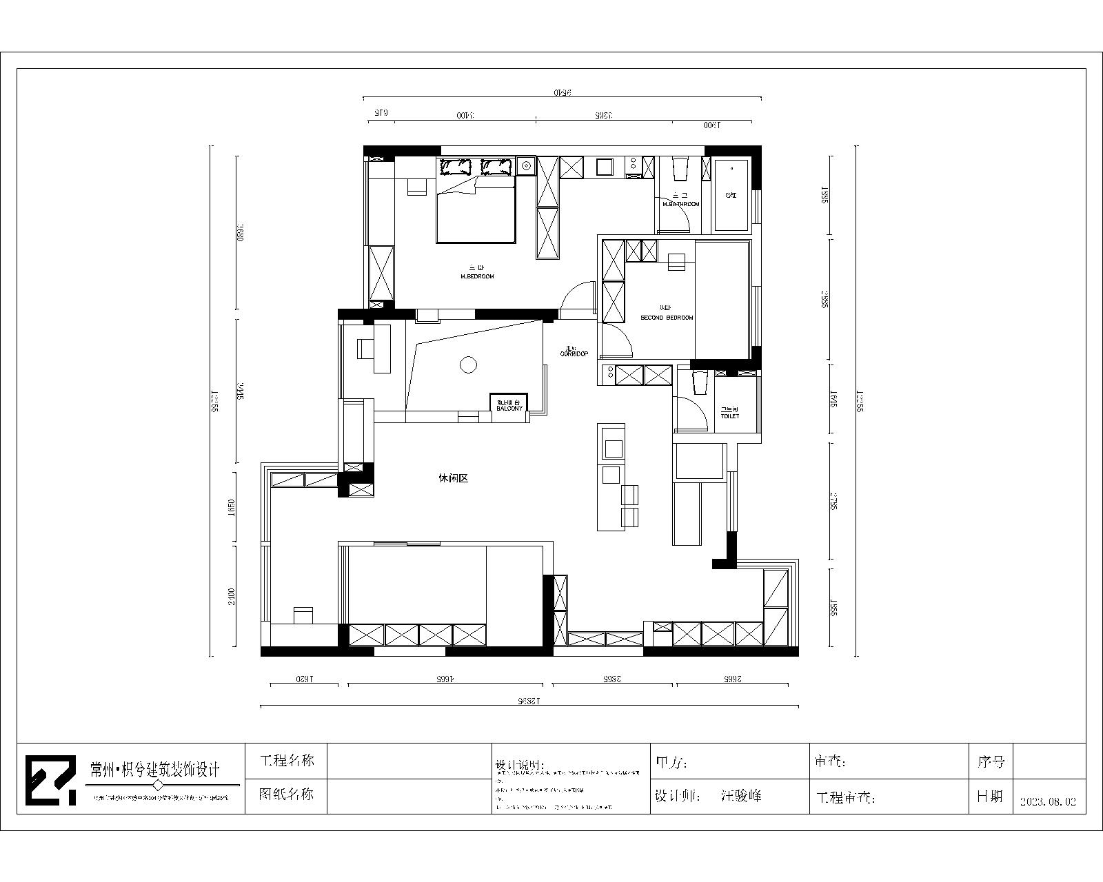
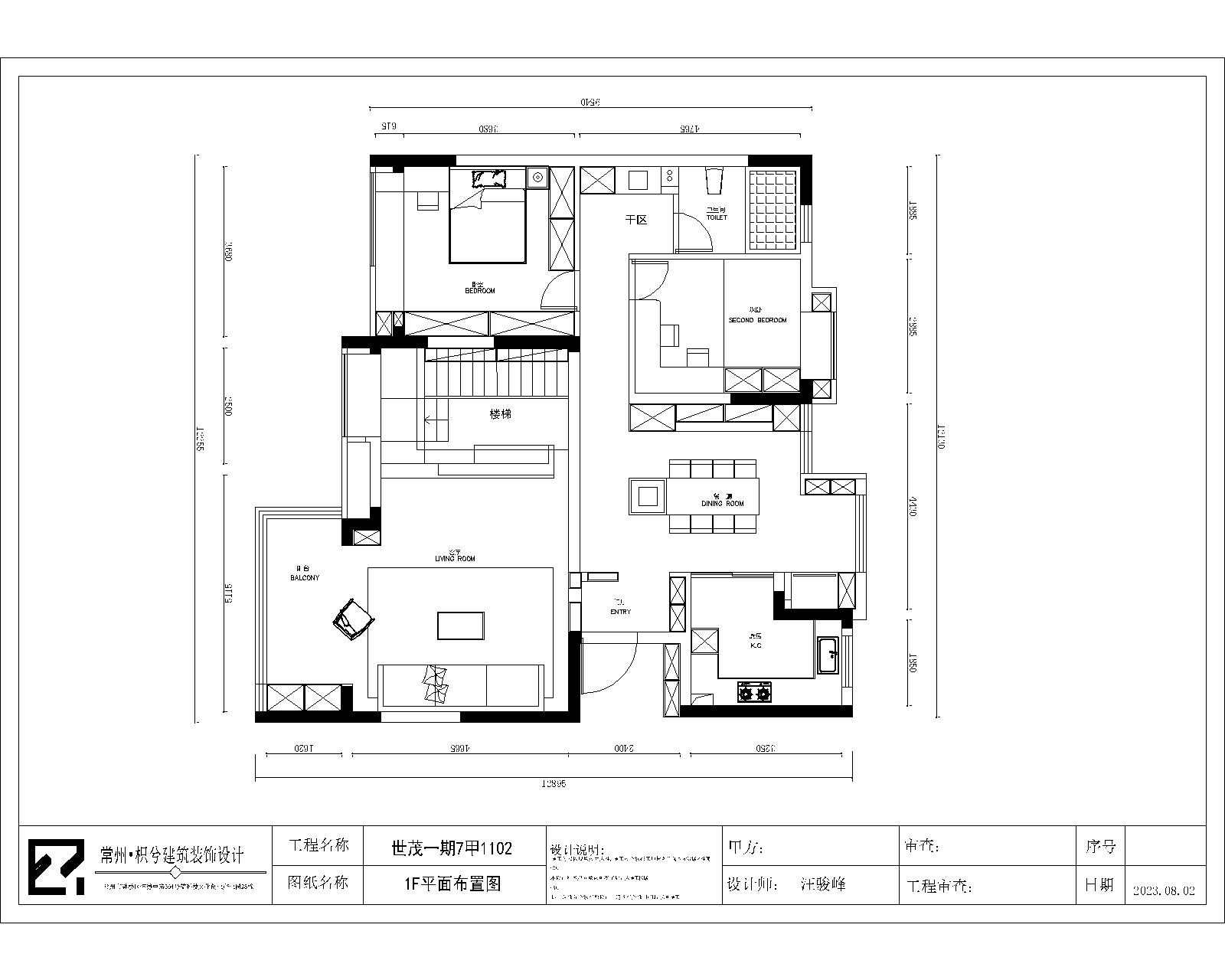
世茂香槟湖



作品说明
- 项目类型:住宅公寓
- 项目地点:常州市
- 建筑面积:220.0000㎡
- 项目造价:136.0000万元
- 主案设计师: 汪骏峰
- 竣工时间:2024.11
- 设计机构:常州市枳兮建筑装饰设计有限责任公司
-
项目定位:旨在打造一个能够让三代同堂的家庭,注重家庭人员的沟通空间,温馨且又有艺术感的空间。
-
空间意境:现代风格,用简约以及自然元素去做一个混搭空间
-
空间布局:整个楼梯空间是核心重点,通过楼梯来围合客厅以及二楼的空间,因为对于房间数量要求比较多,所以在仅有的挑空空间上,多做视觉延申空间,以及与各个空间的互通性
-
设计选材:墙顶主要选用艺术漆(具有肌理感),地面主要用柔光砖(耐磨,防滑),洞石石材(肌理感与自然感)。
营造出温馨且自然的感觉。注重材料的环保性,符合可持续发展的要求。 -
用户体验:甲方非常满意,觉得这个就是她一直要的“家“

