再定义的灰空间



作品说明
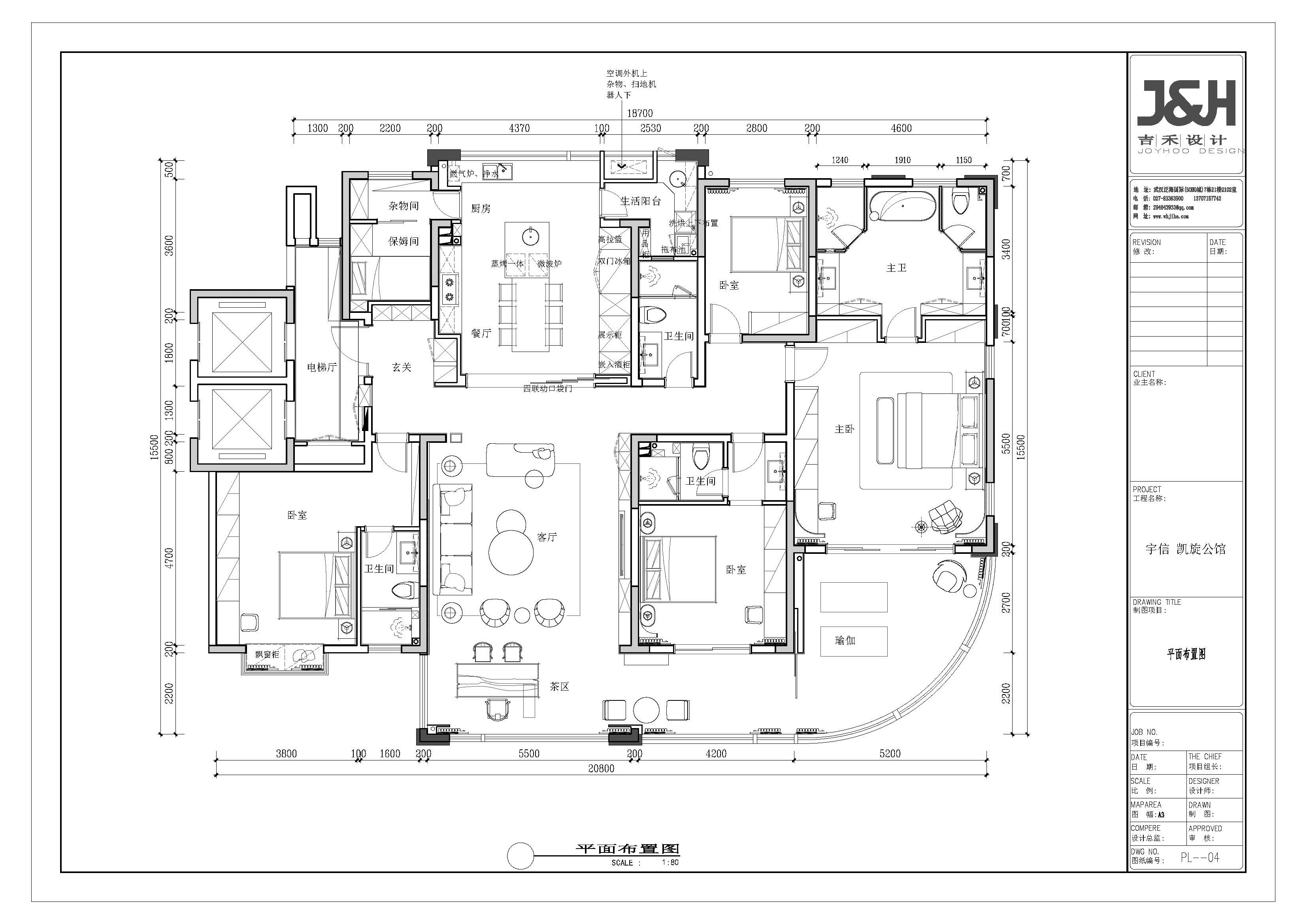
- 项目类型:住宅公寓
- 建筑面积:281.0000㎡
- 项目造价:80.0000万元
- 参与设计师:朱勇
- 竣工时间:2024.04.11
- 设计机构:吉禾设计
-
项目定位:所谓“灰空间”,最早是由日本建筑师黑川纪章提出:“一方面指色彩,另一方面指介于室内外的过渡空间。“灰空间”就是封闭空间与开放空间的中介,这种特质空间一定程度上抹去了建筑内外部的界限,使两者成为一个有机的整体,空间的连贯消除了内外空间的隔阂,由于它的存在,冲破了封闭空间的制约而争取与户外空间取得更加广泛的联系,从而使主体与客体情景交融。”
-
空间意境:设计师通过空间的框线
跳脱豪奢的框架
以随性而无拘束
融入业主内心深处向往的自在自由
不被结构框限想法
设计师重新编排立体界面的吻合关系
打破原有规则 建立空间层次 -
空间布局:用当代主义的风格
统合每一个工艺细节
每一个生活场景
每一件有温度的物件
创造出一个全新的生活场景
家 是一个载体
承载着业主对生活的理解与阅历
记录了内在的情怀和故事
设计师试图将设计呈现初心
和对未来生活的向往结合用心抓取的输出 -
设计选材:墙板与木饰面在现代室内设计中越来越受欢迎,它们不仅具有美观的外观,而且还能提升空间的舒适度和品质感。
随着人们环保意识的增强,使用可再生或回收材料制成的墙板和木饰面越来越受到青睐。这些材料不仅对环境友好,同时也为室内设计增添了自然元素,不仅在设计上提供了创新的可能性,在经济性方面也具有一定的优势。选择合适的材料和技术,可以根据个人需求和预算创造出既美观又实用的空间。 -
用户体验:业主入住后是非常满意共同打造出的这一间温馨场所,整体是非常极简且耐看的,根据业主前期的意向最终落地也都完整呈现,对我们是非常信任的。

