邵汇大虾


作品说明
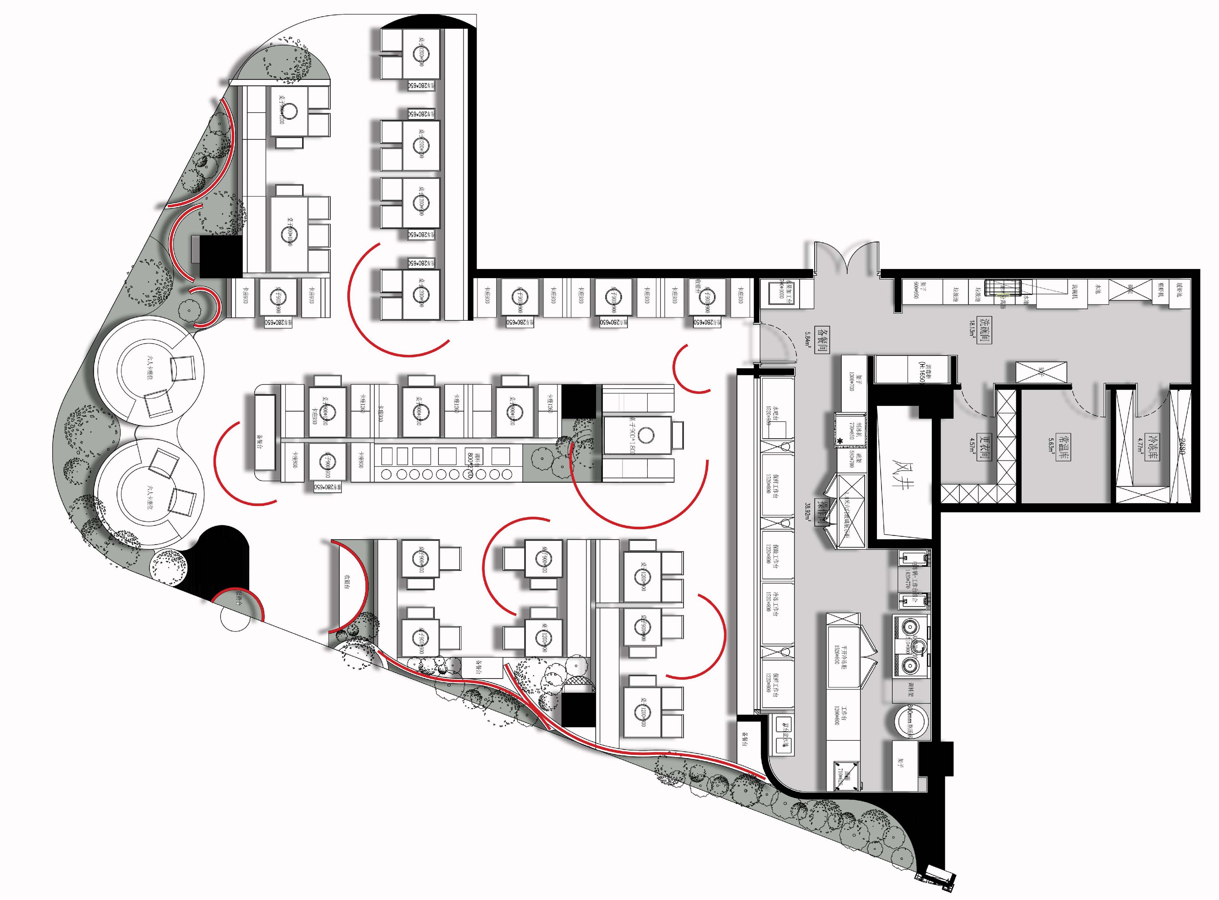
- 项目类型:餐饮
- 项目地点:沈阳市
- 建筑面积:290㎡
- 参与设计师:李箫宇、李晓雷、李杰武
- 设计机构:派克齐(PKQ)空间设计机构
红海寻鲜,虾的浓情告白
建筑师的思维方式,画家的表达手法,商业空间设计师的逻辑,在邵汇大虾,这些碰撞似乎达到了更和谐的效果。
于是我们看到了独立的室内空间架构;各区域间交互生成的系列关系;还有不同要素碰撞组合所产生的张力……
虾红色,是时尚色,是活力与热情,是蛋白质加热后的状态。但是邵汇大虾的红终究不同,来自虾壳透明,由深到浅,渐变的层次感,是虾烹制成熟泛出的诱人色泽,在这里,他注入了满满的食色诱惑,令空间更红。
大虾既是餐厅核心出品,设计的灵感之源也围绕着虾进行多元转换。
齐白石笔下的虾,“妙在似与不似之间,太似为媚俗,不似为欺”。欲求沟通世俗和文人的审美意趣,既不流于媚俗,也不狂怪欺世。
设计亦如作画,以形追求“似”,以意表达“趣”。
单体提取虾的形状与线条,切割腰身,重复、对称,或扭曲,解构后的单体作为空间的块面结构语言,形成由虾而来的沉浸式空间。
"似与不似之间"的造型妙趣,来自虾的腰部,一笔一节,连续数笔,形成了虾腰节奏的由粗渐细。
单体提取虾的形状与线条,切割腰身,重复、对称,或扭曲,解构后的单体作为空间的块面结构语言,形成由虾而来的沉浸式空间。
"似与不似之间"的造型妙趣,来自虾的腰部,一笔一节,连续数笔,形成了虾腰节奏的由粗渐细。
形态各异的虾群,随水流漂浮聚集的海草,斑斓的珊瑚群,构成多样丰富的海底世界。带领好奇的目光,加入奇幻之旅,探索广袤而未知的水下世界。
至此,线条流动美,结构穿插美,色彩炫动美,光晕折射美,一 一呈现。
-
沈阳市
工作地点
-
联系方式
13840058677


