-
项目定位:接受度非常高的年轻业主,在设计上,使用挑空的客厅空间,开放式厨房,酒店式卫生间,黑白分明的配色……等等,无一不是在和他们的年轻和潮流做适配!
-
空间意境:挑空的空间,新增的采光井,前后花园的落地式玻璃……让光和自然都充斥在每一个空间里,让自然和空间和谐共生,灵动悠然!
-
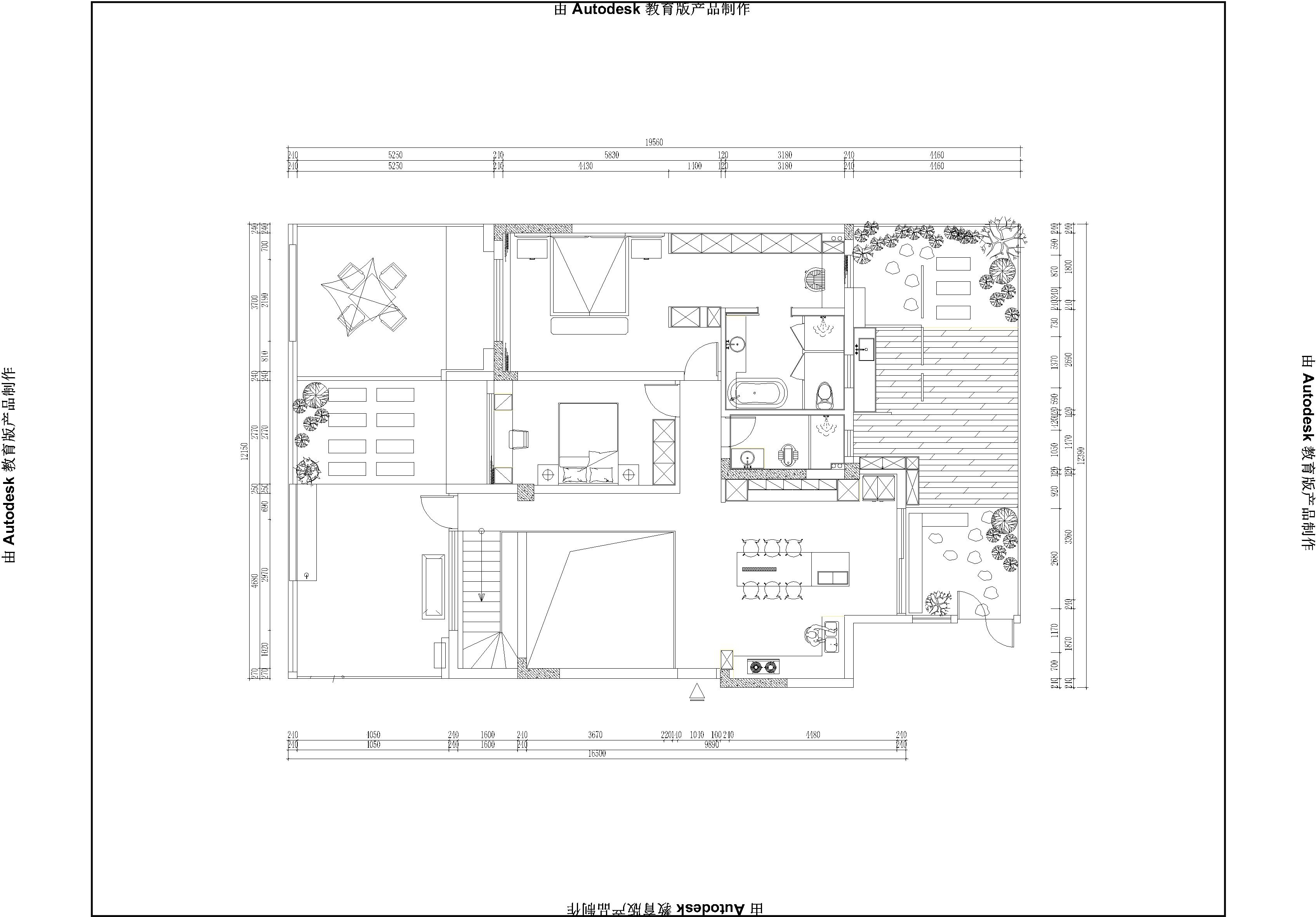
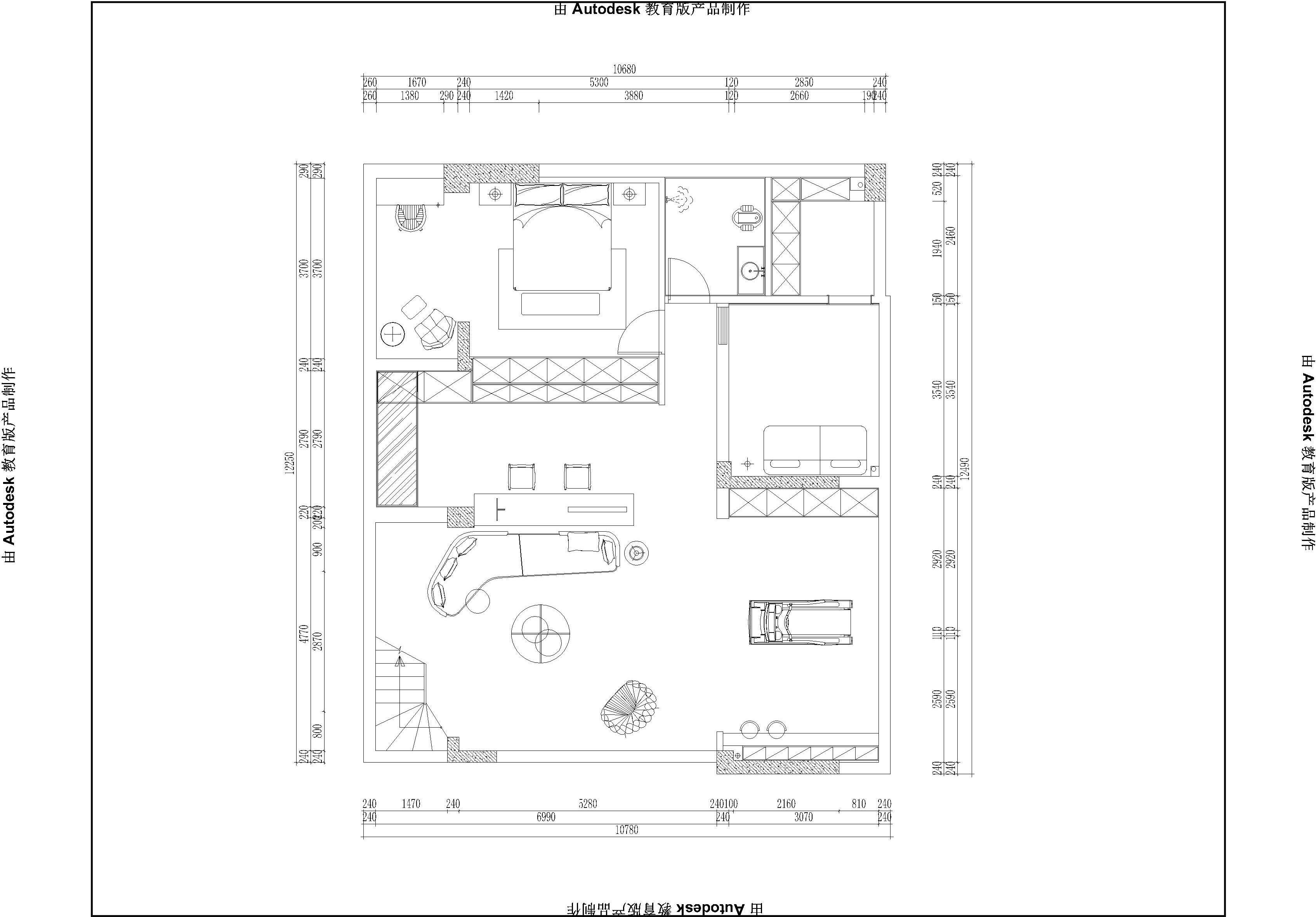
空间布局:保留原有梁的设计,让建筑依然在空间里,一楼的挑空空间,虽然客厅是在负一楼了,但阳光和惬意也到了负一楼了,原有的卫生间和房间互换,得到了一个走廊式卫生间和大的卫生间,容纳了生活中所有的情趣和快乐!
-
设计选材:仿石材的PU材料,仿水泥质感的艺术漆,恰到好处的灯光设计,除了让空间增加自然感外,也让整体空间更加的环保和安全!
-
用户体验:从客户关系到很好的朋友关系的转变,是客户给予我的最高评价!
个性的黑色空间,挑空的设计,把阳关和温暖都带进了这个宁静而个性的空间
依然还是采光井的设计引入阳光,让整体负一楼所有位置随时都有光的参与,让整个开放式书房,在自然光的衬托下,更加随性,充满韵味
多功能区的位置,发光背板的酒柜设计,开放式的空间,随时可以收纳的储物柜……都让这个空间充满可变性!
自然流露的横梁……斑驳的石锈红肌理漆……让整个空间更贴近自然的感觉!
定制纯黑的沙发和电视墙颜色相呼应,让整体空间更高级!
有光的地方,才有艺术感!
负一楼整体开放式的格局,让整个负一楼的空间设计,通透中尽显大气!
挑空空间的客厅视角,依然大气简洁!
依然是挑空空间的客厅视角,简洁的空间,平静悠远!
一如既往的整体黑白色的延续。加入的那一点砖红色的点缀,让空间生动起来!
在深色空间的延续里,使用的透明元素的餐椅,和透明的部分玻璃酒柜,让黑白两色的空间,也可以轻盈和灵动
整体的设计风格,又怎么会躲开主卧呢,在这儿,黑色色彩依然还是主角!
吊线灯的使用让空间更丰富,角落的镜子,实际也告诉我们,男孩子也是爱美的!
酒店式卫浴结构的空间,深色的墙面,搭配白色的卫浴用品,在色彩上行程强烈的反差
最后还是给年轻的业主留了一个更合适未来小朋友的温馨的独立空间,希望孩子眼里的色彩,不止黑白两色!
负一楼的设计从来都是和光有关系,在设计上从一楼引入的所有阳光,都将 让负一楼远离阴暗潮湿!从而成为另一种负一楼的格调!
原本三个房间的空间,只留了两个,套房尽量的让卫浴空间更舒适,所以,一楼的平面布局有很大的变动!

