180㎡现代极简都市港湾
26
作品说明
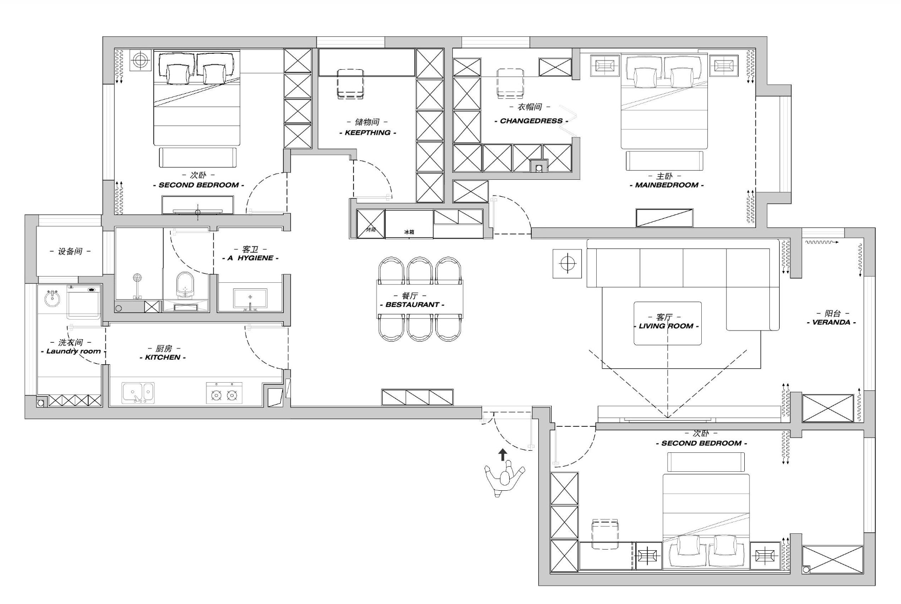
- 项目类型:住宅公寓
- 项目地点:西安市
- 建筑面积:180.0000㎡
- 项目造价:100.0000万元
- 主案设计师: 李雪冰
- 竣工时间:2023年5月
-
项目定位:空间的流畅感,犹如一首悠扬的旋律,在每一个角落奏响。客餐厅一体,毫无阻碍的视线延伸,不仅让空间更为敞阔,也增加了家人之间的互动和交流。
在简洁中创造新意,无疑是这个项目面临的巨大挑战!现代极简风格强调简洁、纯粹,但过于简洁,容易导致单调和缺乏个性。设计师突破难题,在每一个细节上都注入创新的元素;在意想不到之处的设想,激发了业主对生活的向往,更为便捷和舒适化的享受和体验。 -
空间意境:生活在点滴,细节在精心雕琢。电视墙与柜体完美融合,兼顾收纳功能与视觉美学;壁炉的丝丝焰苗,诉说日常的柔情蜜意;隐形卧室门与墙面一色,柔和了空间的线条;细节的处理不仅美观了空间,也为居住者带来舒适的体验。
极简的线条是设计的灵魂,如同简洁的画笔勾勒出空间的轮廓;点睛的材质碰撞,营造出丰富的层次,突出了空间的开放感,又增添了舒适性。以业主的需求为出发点,深入了解其生活习惯和喜好,为居者量身打造了,在繁忙生活中能找到放松的居所。 -
空间布局:中性与自然的色调,带来宁静和舒适;简单大方的造型,强调了几何形状和线条的纯粹;应用高质感的材料,提升了空间质感与品质;灯光凸显了温馨的氛围感;便捷化的全屋智能体系,更具人性化的体验。
-
设计选材:设计师在空间布局上,充分考虑了实际使用需求。简洁并流畅的动线设计,让生活更加便捷。高效充分利用空间,将每一个角落都发挥到极致。最终的落地效果,以合理的布局和统一的选材,贴合实际使用需求,兼顾视觉效果与实用性,从而达到了设计初衷和客户的预期。
-
用户体验:在这纷繁世界,寻一隅静谧,让心灵得以安然停泊。愿以用心和贴合的设计,为业主打造一个美观舒适的家、创造一个充满爱与正能量的心灵港湾,让每一次归家都成为一场心灵的旅行。
0
0

认证 · 让您身份增值