怒江秘境湾酒店
354
作品说明
- 项目类型:酒店
- 项目地点:怒江傈僳族自治州
- 建筑面积:3400.0000㎡
- 项目造价:1350.0000万元
- 主案设计师: 郝建伟
- 参与设计师:郝建超、杨祥、田亮
- 竣工时间:2024年10月
- 设计机构:回隐山秋
-
项目定位:旅行,不止于逗留和经过,更是内心与世界的连接,而酒店,正成为人们在旅行过程中的“家”,超越了住宿本身的功能意义,塑造一个提供情绪寄托的场所。秘境湾酒店位于怒江福贡县施底村,占地22亩的山头上,以怒江在地文化为背景,打造具有当代东方的避世之境。有22间各具特色的客房,一户一景,合院和一层客房都带有庭院和私汤,每个房型都有不同的体验与景色。配备有多功能傈僳族餐厅、悬崖泳池、秘境酒肆、山顶禅修室、傈僳族合院、健身房,周边环境有沙滩、吊桥、溜索、亲水栈道、教堂、非遗体验馆等。
-
空间意境:设计通过“自然而然,顺势而为”的建筑哲学,依山势而做建筑,在山间构筑一个避世又能触碰烟火的疗愈之所,理想和日常、山水和城市、当代性和在地性对抗后的虛实和调和,建造极简的现代建筑、赋予山水场域精神,让云雾、峡谷、飞瀑、山林、川流能与人内心产生共鸣,达到内观自己,让人的身体和心灵得到放空。
-
空间布局:设计比较克制,以自然为底色,弱化建筑物于自然场景的存在感。深灰色为主调建筑立面,将建筑消隐在山林里,与傈僳族、怒族传统建筑的结合,吊脚楼、低矮的瓦檐、石板瓦,赋予建筑沉稳、低调的气质。客人到来车停在对岸,步行经过50长的软桥跨过怒江,在桥头接待厅体验傈僳族的迎客之道,然后乘坐18米高的观光电梯到半山腰,步行走过空中木栈道,此时可以看到飞瀑、听着鸟鸣,感受着自然的气息,沿道而上,要经过悬崖泳池底部,到达餐厅、悬崖泳池,视线豁然开朗。
-
设计选材:设计将可持续发展理念贯穿始终,材料主要选用当地的石片、石板瓦、原木、竹编、夯士质感涂料,餐厅选用当地原生食材,始终以亲近自然的方式回馈自然。
-
用户体验:整个酒店给人们的感觉是呆得住,很放松,在酒店的每个角落,都好像和自然在对话,一种久违的松弛慰流淌过心里,让人的整个灵魂慢下来,酒店变成生活乌托邦。
夜幕下的酒店
酒店眺望瀑布、沙滩
悬崖泳池水吧亭建筑是三个倒过来的米斗,顶部做成玻璃采光顶,竹编和是木条做表皮,即有当代性也有在地性。
悬崖泳池
餐厅
秘境酒肆高挑的屋顶,超大的折叠玻璃门,塑造建筑室内与室外的模糊边界,形成一种场域的力量,以及传递的人、空间、自然的情感交流
接待厅折叠门打开后的窗景,沙滩、瀑布、村落、高山、河流、云雾构成一幅山水画卷
悬崖泳池的倒影,躺在躺椅上感受那份宁静、松弛
与自然共生的理念,把溪水引流到泳池边,6米高空瀑布垂直而下,天上之水有来财的寓意,也是迎接客人最好的方式。
接待厅火塘
多功能餐厅,因火塘四海的朋友能聚在一起聊天,巨大的排烟管四周挂满了腌肉,还原了傈僳族、怒族会客的场景,也是对当地人生活的回应。
客房楼顶楼梯间
室外斑驳的老石墙承载着岁月的沧桑
合院带有庭院和私汤,可以一边正对山野绿意,尽享静谧泡汤乐趣,或是围炉烧烤。
合院客房入口
合院客房阳台
酒店内的巨石,山泉水自然的流淌
客房质朴的材料与机理,呈现出安静、内敛的氛围
光影交织的阳台汤池
项目总规划平面
餐厅平面
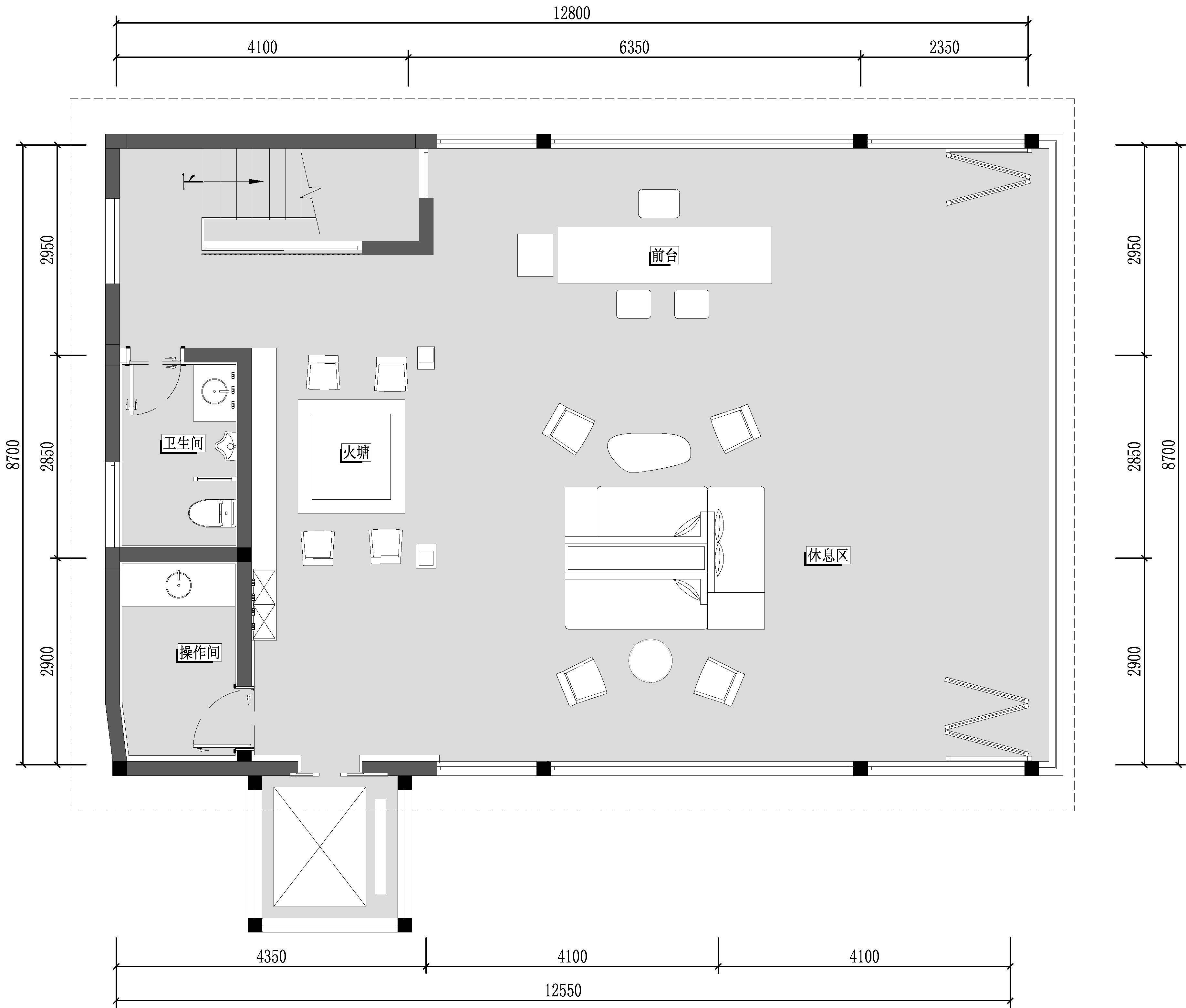
接待厅平面
秘境酒肆平面
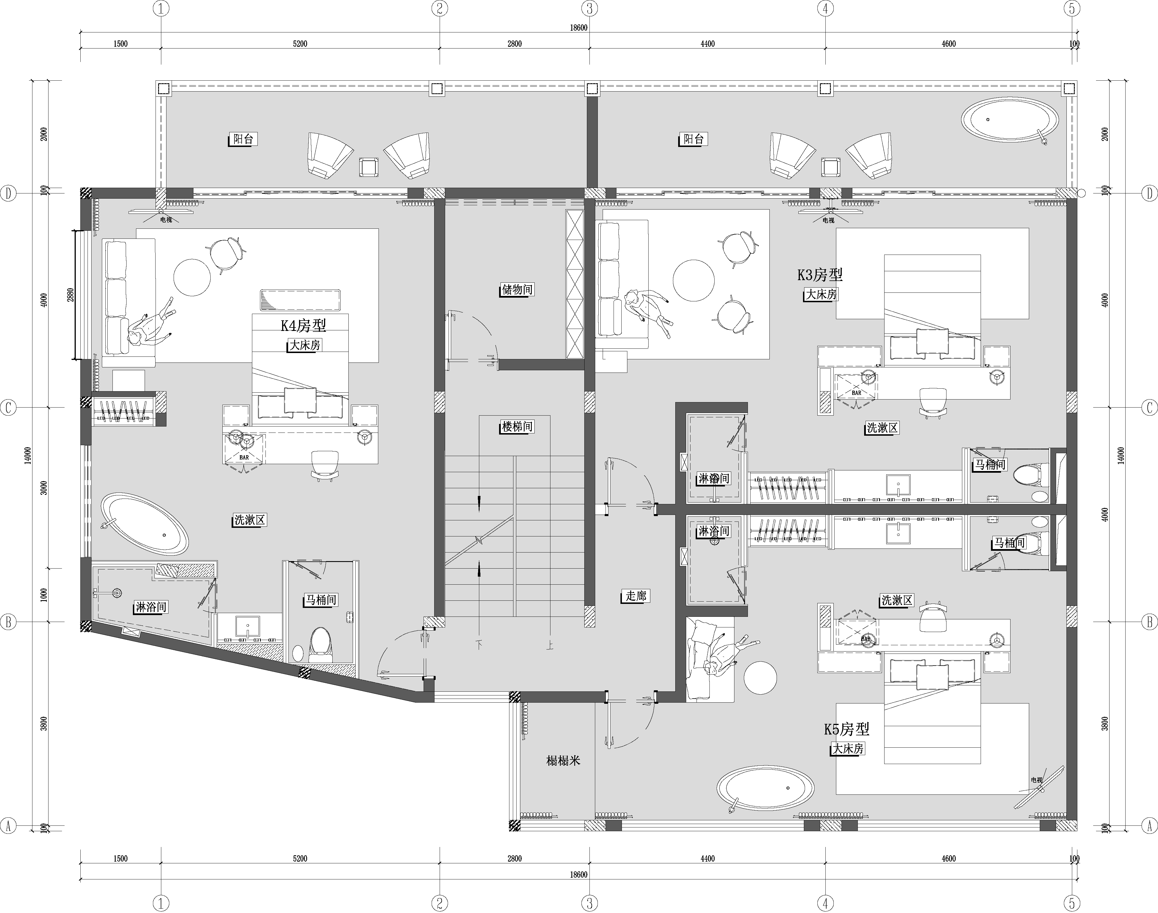
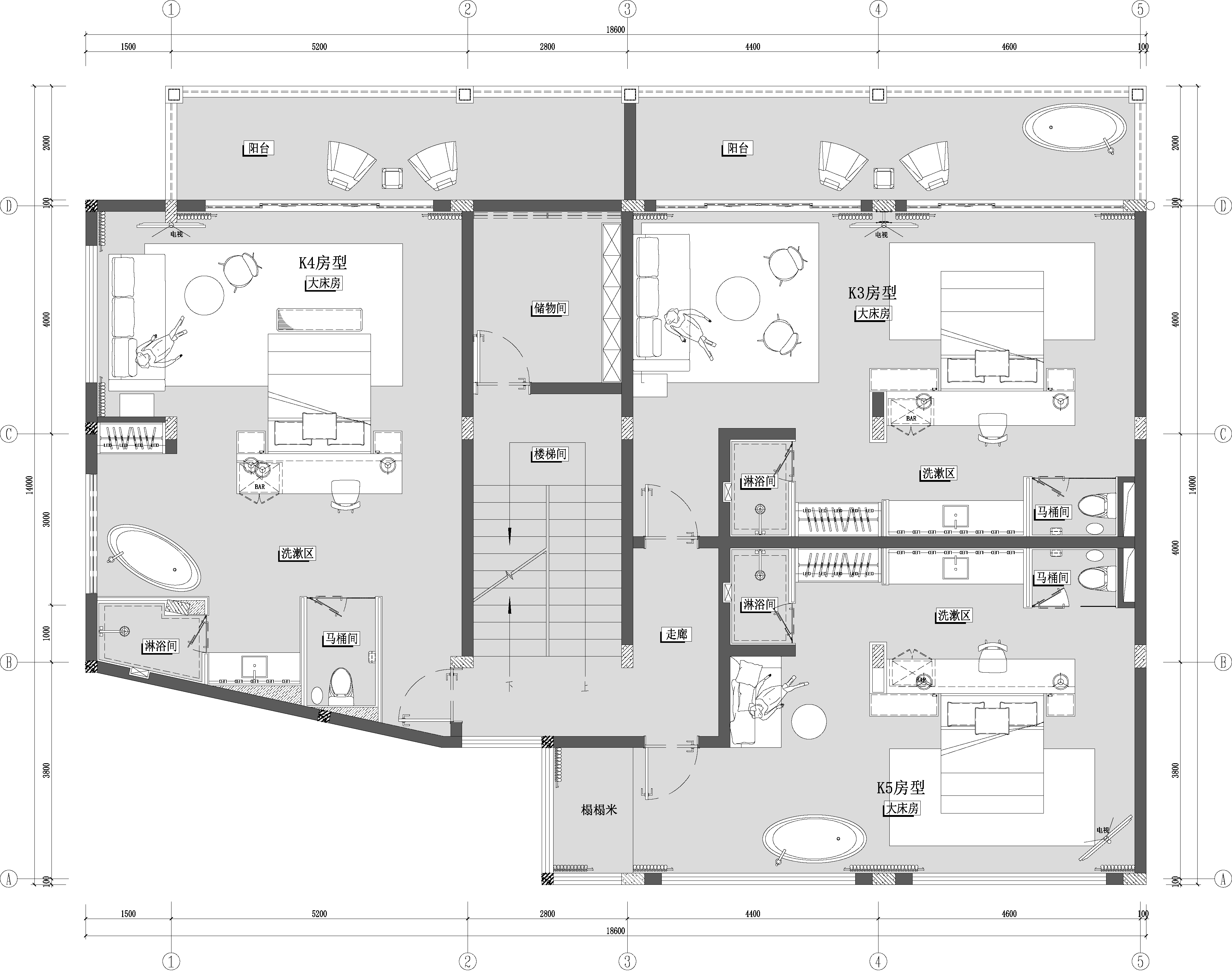
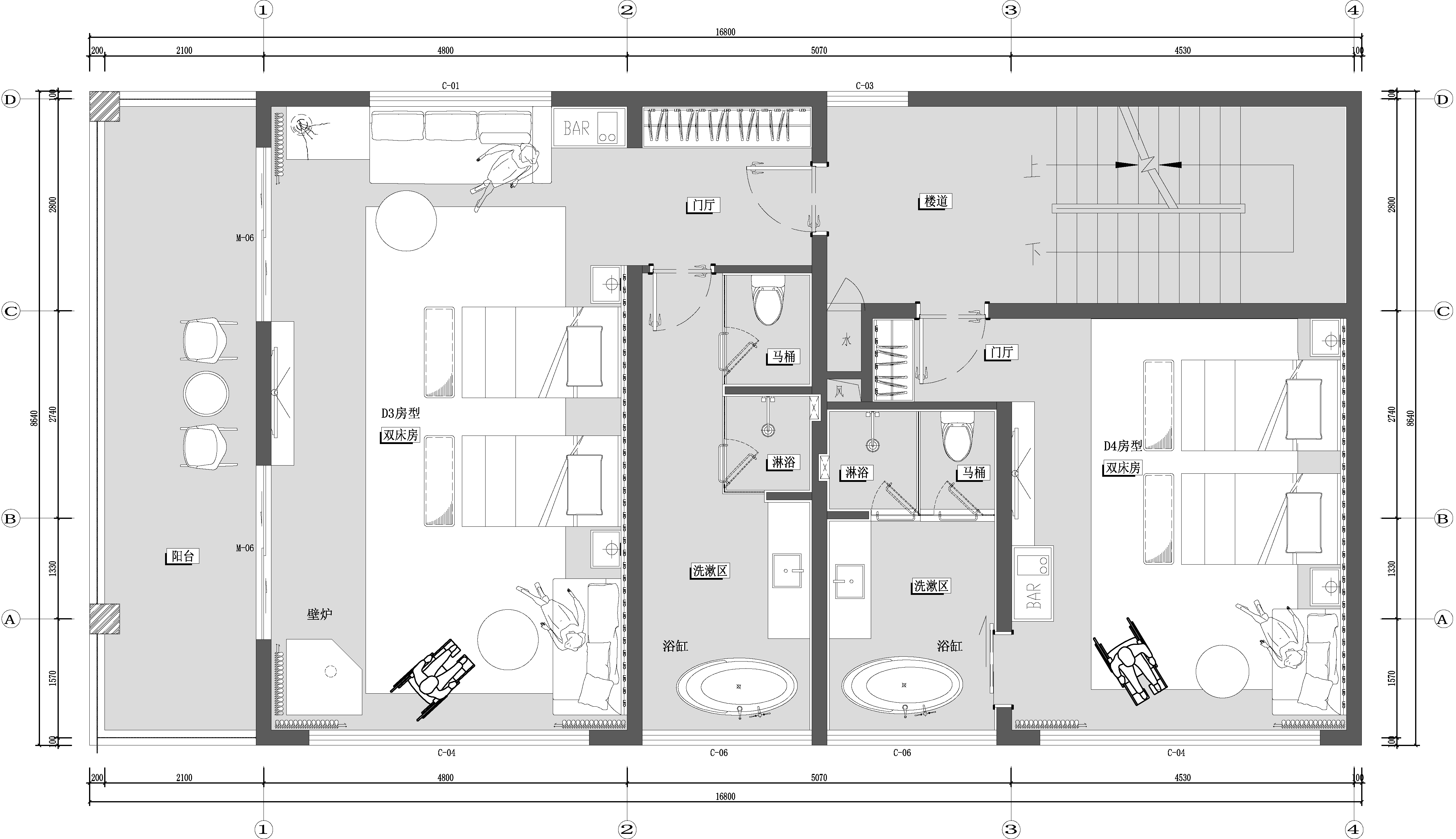
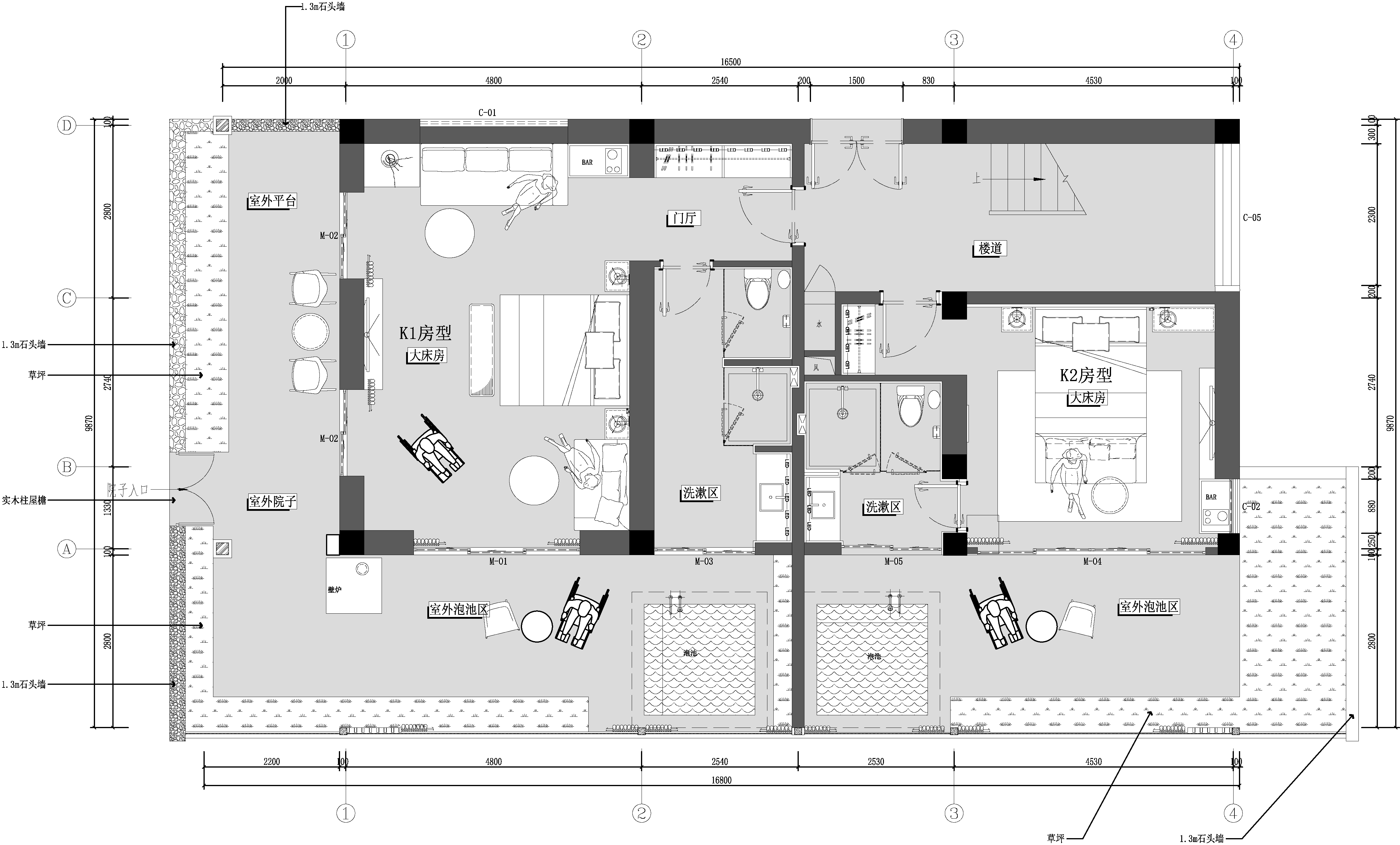
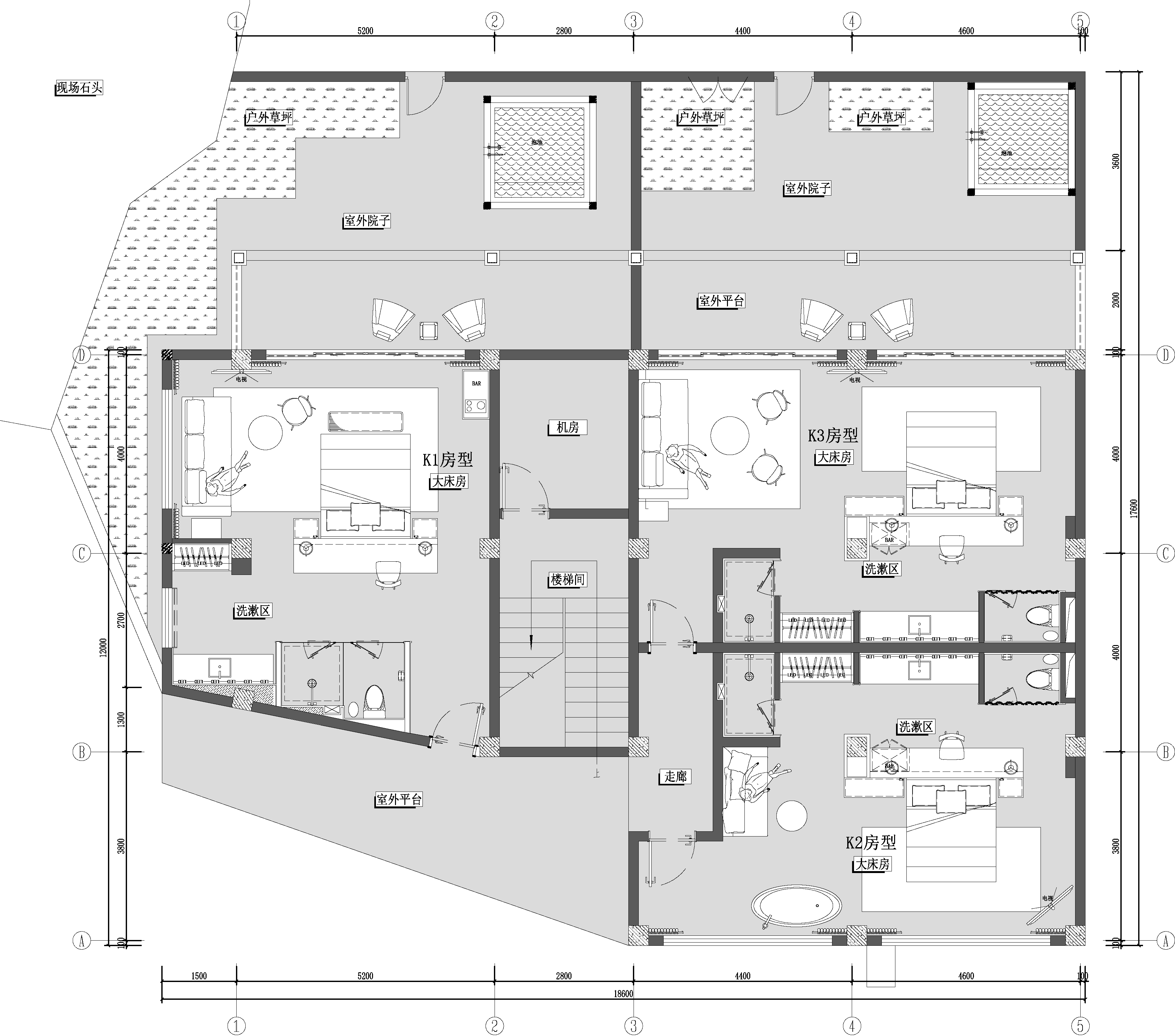
客房平面
客房平面
客房平面
客房平面
客房平面
客房平面
合院平面
合院平面
0
0

认证 · 让您身份增值