少 |FEW
361
作品说明
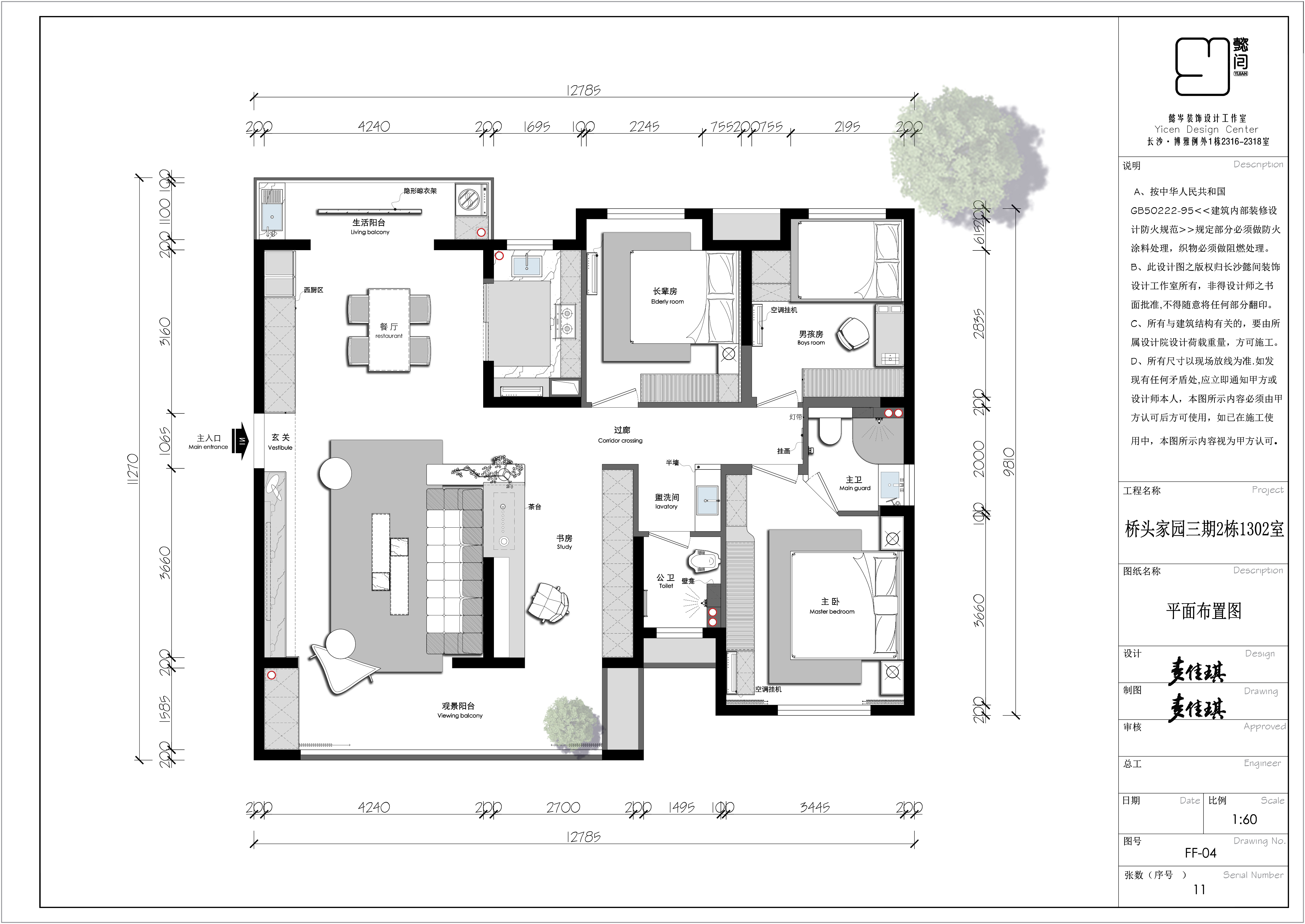
- 项目类型:住宅公寓
- 项目地点:长沙市
- 建筑面积:120.0000㎡
- 项目造价:40.0000万元
- 主案设计师: 麦佳琪
- 参与设计师:麦佳琪
- 竣工时间:2024.12
- 设计机构:湖南懿岑空间设计
-
项目定位:屋主人是一对经商的夫妇,有一个可爱的儿子。男主人喜欢钓鱼,而且偶尔会出差,喜欢喝茶,但是希望家里简洁大气,希望可以把家里展现大方得体,宜居且适合招待亲朋好友。设计师在了解此愿景后,结合对房屋以及环境条件的详细研究,决定将空间打造成为一个「简约大气」中尽显温柔的华丽之家。
-
空间意境:“少即是多”,追求空间的纯粹与宁静,通过简化设计元素、色彩与形式,达到视觉上的统一与和谐。在黑白灰的基调下,本设计旨在创造一个既现代又不失温馨的生活空间,让居住者在繁忙都市生活中找到一片心灵的净土。黑白灰不仅是色彩上的极简,更是对生活态度的精炼表达,体现了主人追求品质而不浮华的生活哲学。
-
空间布局:将动区和静区合理分开,将休憩区置于较为安静的廊内,让空间宜动宜,互不干扰
-
设计选材:以白色大理石为基底,搭配白、黑,简洁又不失优雅
大理石的清冷高贵,需要温润质感的木饰面来中和,让空间尽显奢华的同时,有丝「拙」的意味 -
用户体验:用户的哥哥跟用户是同户型的,装修施工是闺蜜的老公施工的, 在装修阶段,哥哥就确定要直接用用户的方案装修, 充分认可方案,且按此施工,设计不仅要展示空间美学,更要落地到实处。
0
0

认证 · 让您身份增值