闲墅之间



作品说明
- 项目类型:住宅公寓
- 项目地点:桂林市
- 建筑面积:320.0000㎡
- 项目造价:45.0000万元
- 主案设计师: 王秋兰
- 参与设计师:王秋兰
- 竣工时间:2024年2月
- 设计机构:广东星艺装饰集团广西有限公司桂林分公司
-
项目定位:设计上把地下层分为两层+挑空,把地下空间做出了更温暖有品位的空间;意式轻奢,叠墅雅韵:生活的诗意栖居;
-
空间意境:负二层的空间场景,高挑的客厅空间开阔,天窗将自然光线毫无保留地引入室内,光影在精致的PU石墙面上跳跃
-
空间布局:合理运用好空间,原始结构一层客厅也是挑空的;我们加了楼板,将2层主卧放在客厅上方,让主卧也变的更大气;空间更好用‘
-
设计选材:负二健身区墙面选用了轻质的PU石材,给健身的人带来更自然的感觉;另主卧墙面的造型墙用艺术漆及波纹板的搭配显得更完美;
-
用户体验:客户非常满意,配合度也很高;很喜欢呆在家里;并且很热情的邀请大家区家里玩;
负一负二的空间体感;
阳光洒进来,让地下层更明亮;
负二沙发一角,干净的视觉;
柔软的床铺、高品质的床品
卧室温馨舒适
衣帽区一角;
卧室温馨舒适
负二层高挑的客厅空间开阔,天窗将自然光线毫无保留地引入室内,光影在精致的PU石墙面上跳跃。
意式轻奢叠墅,不
夹层的趣味玩耍区,定制柜采用灵动的方式互动
隔出来的茶室空间,顶面用波纹板及镜面处理,让空间视觉感更强;
负二的楼梯间,点上光源也是一道风景;
意式轻奢,叠墅雅韵:生活的诗意栖居
客厅采用大气磅礴的色彩搭配,奢石与深色木材相互映衬,营造出奢华而又温馨的氛围,低调而奢华。
意式轻奢风格,是时尚与品质的完美融合
餐厅墙面运用墙板与岩板的结合;
餐厅一角
入户一眼可见的透光奢石,让人觉得高端大气;
主卧与衣帽间的装饰隔断墙,即美观又在后面做了收纳功能;
在繁华都市的喧嚣中,意式轻奢叠墅宛如一颗璀璨的明珠,散发着独特的魅力,为人们勾勒出一幅优雅而舒适的生活画卷。
负二背景运用超大岩板与深色木材相互映衬,营造出奢华而又温馨的氛围,低调而奢华。
夜晚可以仰望星空,感受宇宙的浩瀚。
傍晚可以与爱人共赏落日余晖
2楼下一楼看望客厅一角;
2层平面布置
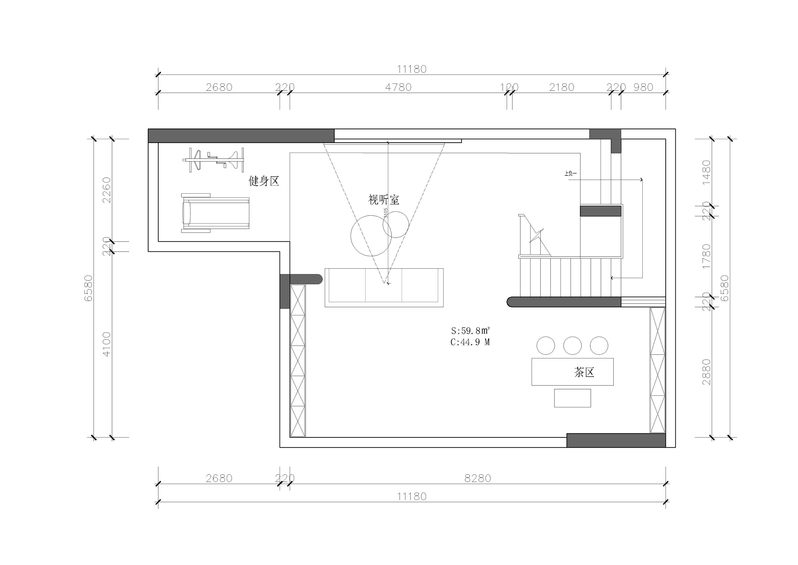
负2平面布置
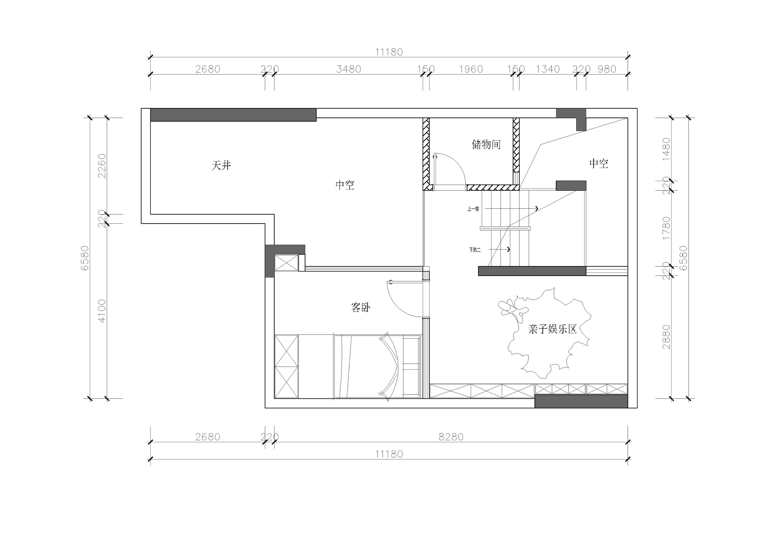
负一平面布置
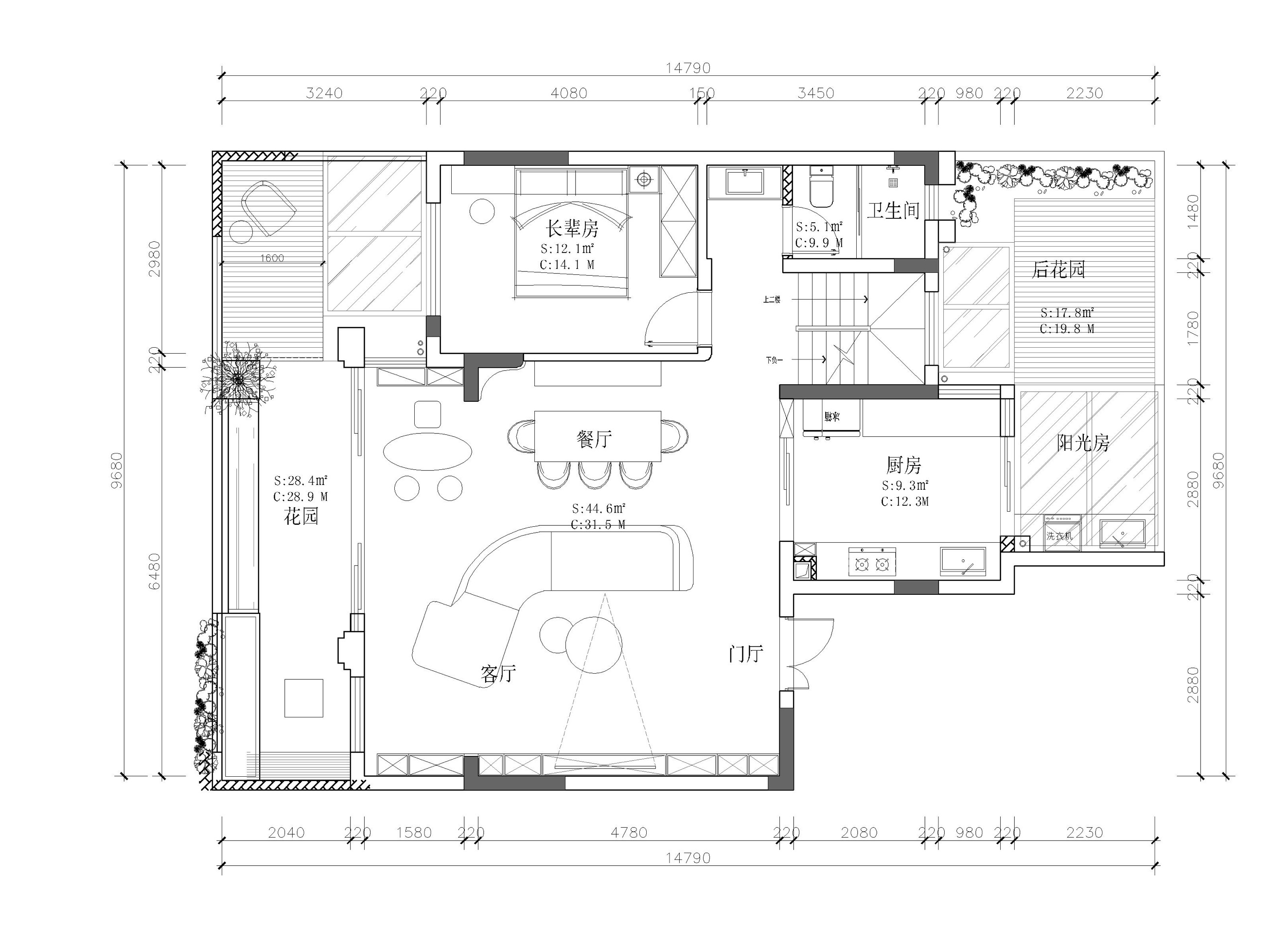
一层平面布置

