由美美学



- 项目类型:商业
- 项目地点:西安市
- 建筑面积:400.0000㎡
- 项目造价:300.0000万元
- 参与设计师:黄凯迪
- 竣工时间:2023
- 设计机构:西安无形空间设计有限公司
-
项目定位:我不混圈层,
我自己就是圈层!
以医美为“启”点,聚合有腔调的生活方式,既满足功能,又发挥社交属性,设计与艺术氛围,空间与平台功能,自由切换,多重组合。 -
空间意境:含蓄内敛的美更契合由美美学空间,虽然位于气质冷峻的CBD中,但设计的笔触轻轻一划,就将温雅“打”进空间整体中,艺术漆结合弧形切面的入户造型,流线优雅,色系文雅,步入其中,回型动线开合切换;
-
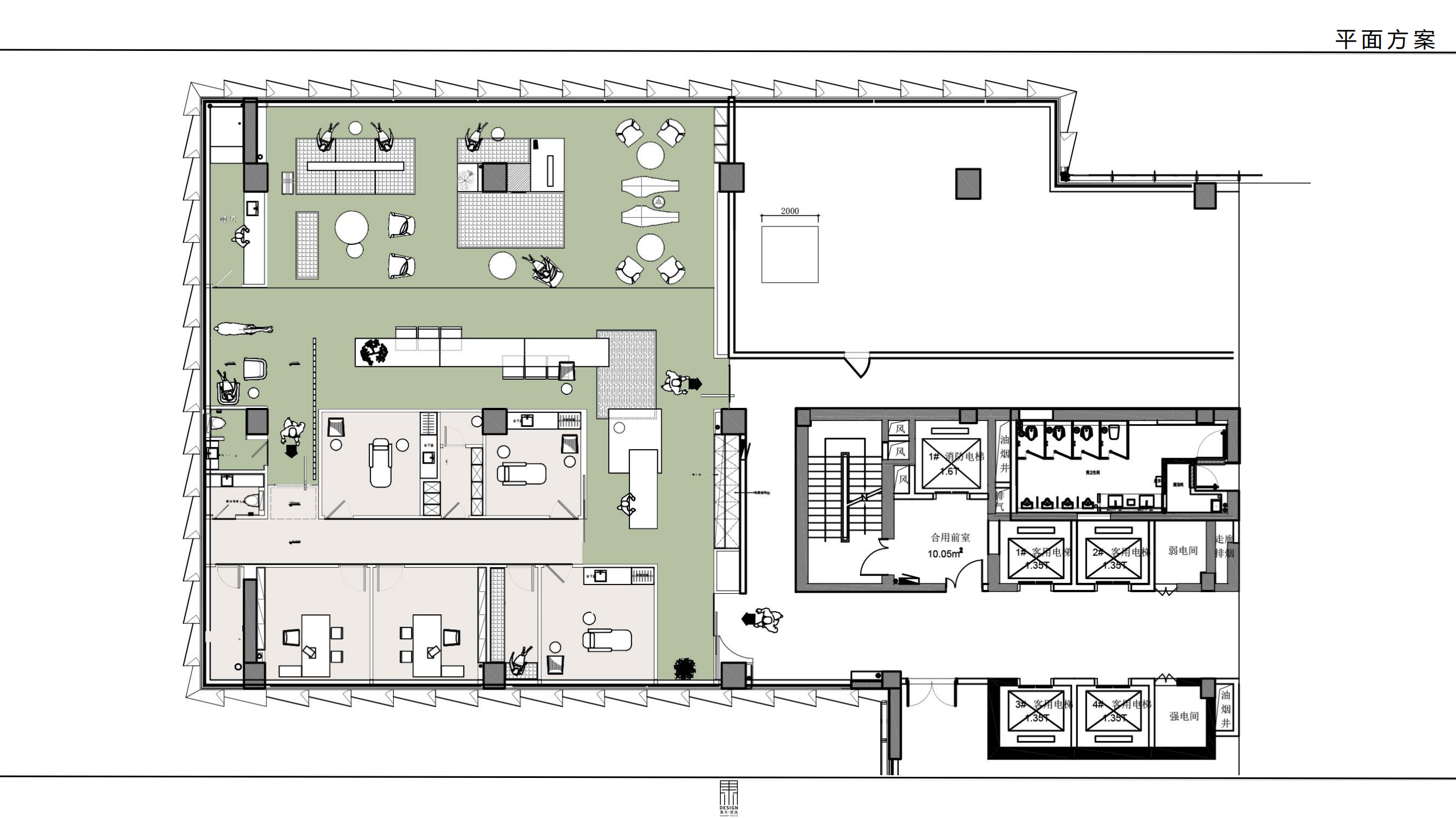
空间布局:以入户为基点,形成两条动线分支,将整个开放空间类比酒店大堂吧的形式融会贯通本案设计中。
-
设计选材:自然纹理的墨绿色岩板包裹整个接待前台,古典的锈红错落黑色水景,接待的视觉层次和舒适感受都细细渗入“腔调”,
-
用户体验:灿如春华,
姣如秋月,远赴人间惊鸿宴,
由美趁年华。
山有扶苏 隰有荷华 含蓄内敛的美更契合由美美学空间,虽然位于气质冷峻的CBD中,但设计的笔触轻轻一划,就将温雅“打”进空间整体中,艺术漆结合弧形切面的入户造型,流线优雅,色系文雅,步入其中,回型动线开合切换;
设计的笔触带动视觉和空间的双引导,以入户为基点,形成两条动线分支,接待前台安置于此,将整个开放空间类比酒店大堂吧的形式融会贯通本案设计中,自然纹理的墨绿色岩板包裹整个接待前台,古典的锈红错落黑色水景,接待的视觉层次和舒适感受都细细渗入“腔调”。
装置空间“游弋”,亦蕴含“鲤鱼越龙门”之意,在此,我们共同提升,赋予更好的自己。
“以建筑的思维切合室内设计,大盒子套小盒子,有拆礼盒般的仪式感”,结合空间的立面环境,设计了接待、交流、派对、分享、下午茶、私宴等6种功能空间交融;
小法式的浪漫在空间中穿梭,拼花地板的地面成为空间的“结界”区分,在这里,姐妹们的聚会私宴再合适不过。
区域的互动是设计的重点,原始空间的大柱体,设计师并不是简单的通过造型消隐,而是放大利用,以此为点,将半私密的属性满足,定制木作结合柱体起台子,融合软装沙发,围合装置造景,与不同方位的周边形成不同的区域,四个柱面,成为四个不同区域的“墙面”,既能满足经营接待功能,又能形成空间人气。
设计的全案还原,将空间的软硬装有效结合,黑色在大片的白中比例点缀,行至靠内的空间,写字楼的幕墙采光充盈,因此设计师在软硬装的配色中大胆撞色,所有的家具在方案之初原创,再定制落地,因此从家具软装的质感和尺度上都“为所欲为”,大尺寸的沙发满足空间主营的多种活动方式,柔和的布料是细腻的关怀。
因为6个多功能接待区并未做完全的分割,主理人希望能够有一个较为私属的小区域,动线回转,玻璃砖结合地台,将开阔的空间拉出节奏感,夜幕最好的视角给足仪式感,地台上递进一阶,两个新古典风的鸟笼椅能包裹整个人,完全满足私聊的需求,又能与周边信息及时互动。
艺术氛围的融合、空间细节的关照,都是设计有形无形的契合由美美学的平台气质节,由内向外散发,由外向内引申,成就由你而美。
“以建筑的思维切合室内设计,大盒子套小盒子,有拆礼盒般的仪式感”,结合空间的立面环境,设计了接待、交流、派对、分享、下午茶、私宴等6种功能空间交融;正对入户的自动玻璃门,打开时直接步入治疗区,区别于传统,本案空间中,结合由美的平台属性,治疗操作区规划的比较小,专注于专业和高品质呈现。

