场域


作品说明
- 项目类型:休闲娱乐
- 项目地点:长春市
- 建筑面积:500㎡
- 竣工时间:2024-03-05
- 设计机构:璞石设计
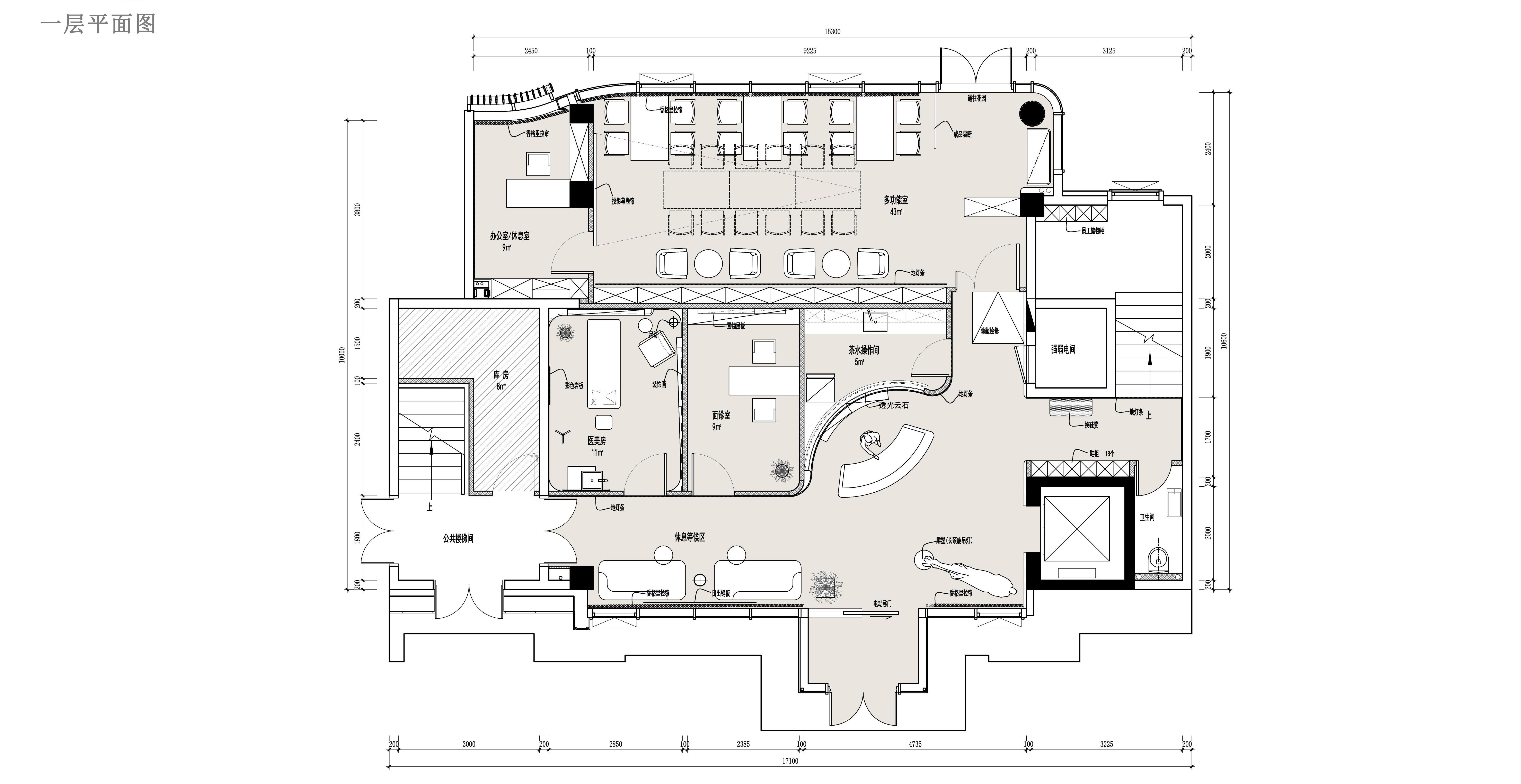
在极简美学的设计框架中,虽然形态和元素简约,但对材料和工艺的选择与处理却更加考究。设计师需要在极简的设计语汇中,通过细微的差异和精湛的工艺,创造出有层次感的空间。比如,使用抛光石材与哑光木质的对比,既突出了材料的不同质感,又维持了简洁、流畅的视觉体验。前端的开阔空间迎接着顾客,让他们感受到服务的专业与尊贵,而随着空间功能的转变,后端则通过柔和的光线和曲线墙面的设计,创造出一种渐进的沉静感。这样,不同场域在连续的设计语言中仍保持各自的功能和氛围差异,确保护肤体验的完整与升级。
这种材质的选择不仅是为了装饰,更是为了让顾客在使用护肤产品时,体验到一种“被呵护”的感受。
护肤空间的设计必须兼具视觉的连续性与功能的差异化。前端的设计语言通常强调开放性与迎接感,打造一种明亮、优雅的氛围。
质感细腻的触摸面,无论是手接触的桌面,还是座椅的柔软包裹,都能让人倍感舒适,从而进入一种轻松愉悦的状态。
柔和的米色、象牙白或浅灰等温暖色彩,能够为整个空间营造出放松、安宁的氛围。
与之搭配的,是拥有亲肤质感的材料,如细腻的木材、哑光陶瓷或柔软的纺织品,这些元素让顾客在进入空间的瞬间便感受到一种来自触觉与视觉的双重放松。
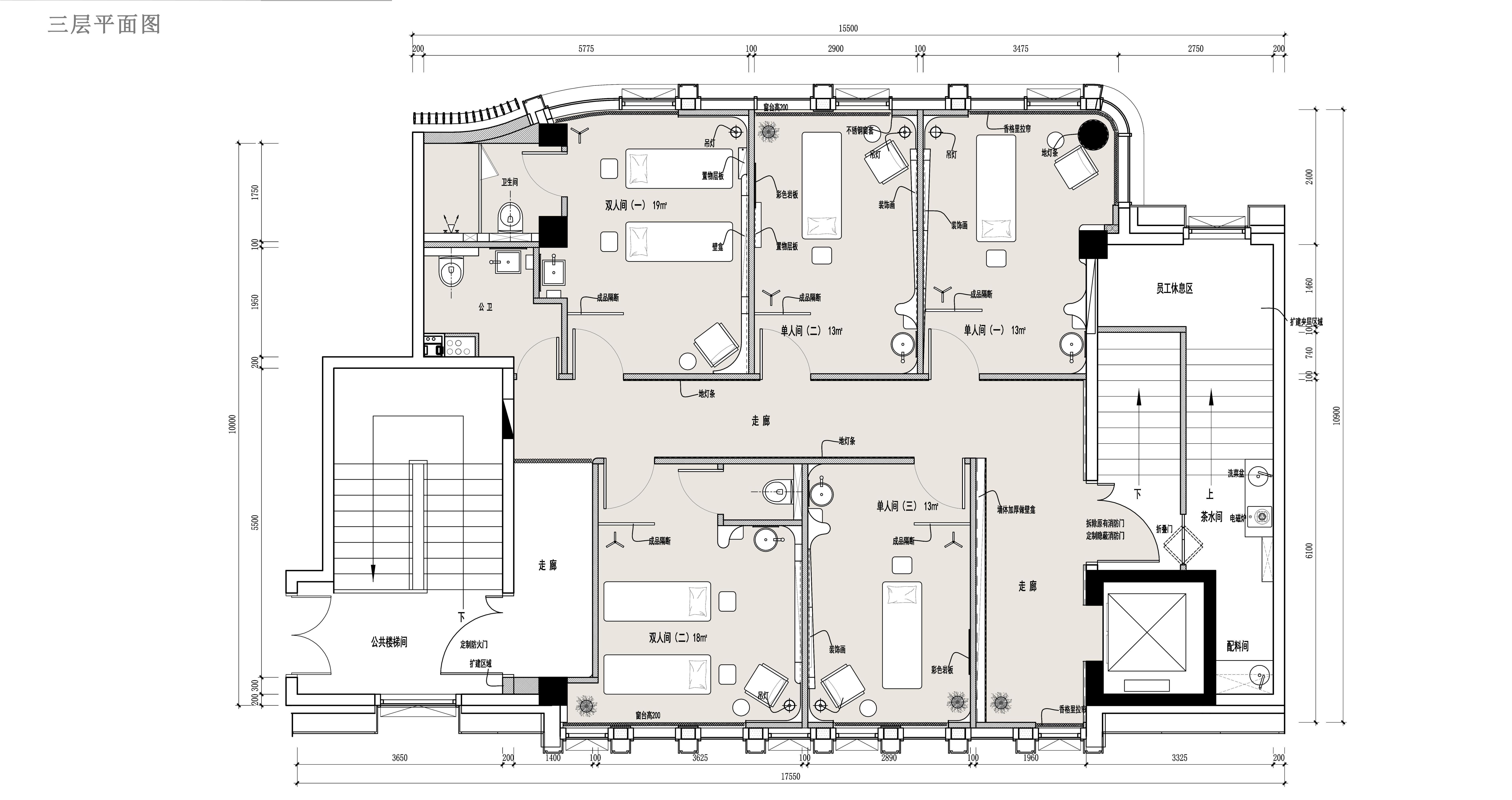
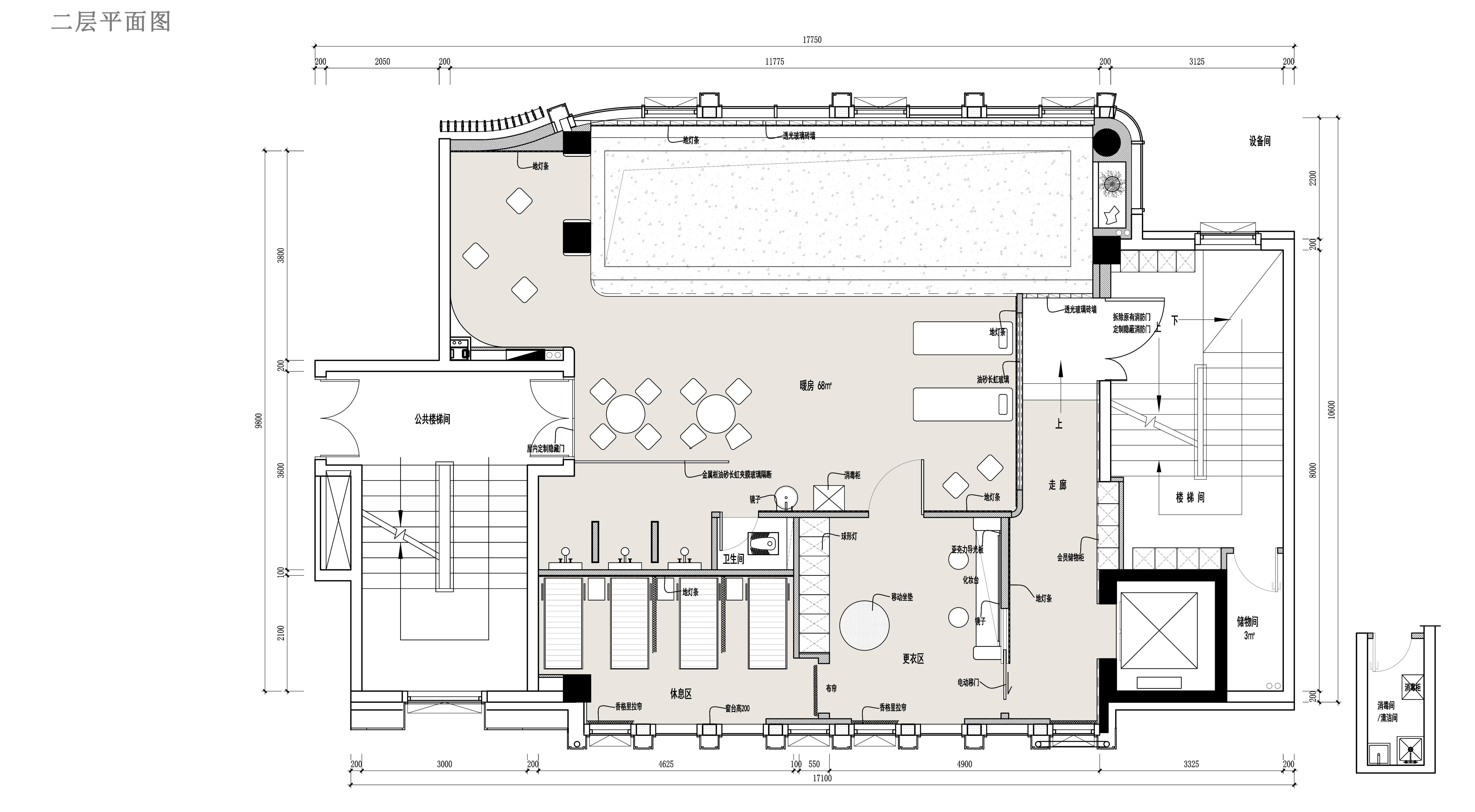
曲线墙面的引用,让通往护肤体验的路线变得曲径通幽,塑造后场的沉静感和私密性。