金昆阁 · 铜炉涮肉



- 项目类型:餐饮
- 项目地点:西安市
- 建筑面积:1500.0000㎡
- 项目造价:650.0000万元
- 参与设计师:郝嘉
- 竣工时间:2024年1月
- 设计机构:西安正负零装饰设计有限公司
-
项目定位:这是设计师为同一甲方设计的第三个店,1500㎡,位于西安曲江商业综合体内,由于之前的经营主场都在延安,作为进军西安的第一个店,设计上要求既要有传承又要有创新。设计师通过前期品牌文化内核沉积在现有建筑基础和环境要素之下衍生新的“金昆阁”。本次设计理念是要将中国传统美学与现代光影艺术结合,侧重品牌文化传承与时尚艺术,通过色彩与线条分化动线,突破空间壁垒,开启至味体验。
-
空间意境:中国传统的赤缇色大面积晕染,象征着光明和传承,同时也寓意着火热的炭火和情怀,配合点缀延展原有品牌色-绿色,瑰丽曼妙的同时饱含生命力。场内精心点缀的艺术小品与光影共舞,复古的家具配饰、充满艺术气息的灯饰,体现了传统与现代融合后的庄重典雅。
利用原始幕墙,在散座区设计艺术装置橱窗,装置艺术与色彩大胆交互,作为通往各个包间的静区长廊,设计师细腻的将四个创始人的创业故事和情怀分散渗入,金子般的情意依然炙热。一炉烟火会知己,多载沉积向未来。 -
空间布局:利用曲线与流线去掉室内锐角,让空间圆润流畅。利用层高承载品牌原有的陕北窑洞文化“形体”,随着拱形门洞缓缓递进,顶面上绿色的电镀砖使整体空间时尚与艺术兼具。再将绵延香味通过流线具象表达,以服务台为基准点,向东西、南北扩散,东西动线服务主要是静态包厢区,南北主要服务是动态散客区,两个区域互不打扰,却又通过袅绕的烟火气将情绪相互交融,深入人心。
-
设计选材:作为餐饮主营,食材是品质核心,食材展示让顾客实在看到,防火防水低碳又环保的杜邦纸灯箱作为店名的背景,既符合业主对空间明亮度的要求也给整个空间增添了一定的氛围感,绿色的电镀砖点缀其中,使整体空间时尚与艺术,经济与实用兼具。明厨设置在两个区域之间,这样整个区域的划分简洁明了,明厨也覆盖住了中间的安全通道等功能空间,同时拆除原始空间的墙体,设计一个多功能吧台,考虑到地下车库直达的入口,因此水吧兼容等候区,弧形的造型类酒吧的轻松时尚,缓解客人进入新环境的紧张感,也能感受四周热闹的用餐氛围,同时吧台兼顾卡座和包间的服务,成为空间的第二个核心区,绿色的电镀砖电梯第一入口的元素,特色礼盒、酒水服务、接待结账功能都兼具。这样的回路与动线让整个空间井然有序的同时,亦大大提高服务人员的工作效率。
-
用户体验:设计效果非常完美的阐述了我们的品牌概念,凡是到店的顾客都对环境赞不绝口,氛围感满满。
主入口一楼作为形象展示输出的主要功能,色彩是设计的设计喜好和标签,因此在本案的设计中,依旧玩转色彩,主入口大面积的撞色,匀称吸睛,延展延安二店的绿色关联于此,寓含环保和生命力,窑洞形态的现代化演绎作为主入口的廊顶造型,光影分层,色彩鲜活;
电梯直达二楼,进入金昆阁的“主场”,错位设计的形象墙也暗藏很多小心思,造型和通透的多方“视口”融合,满满的用餐仪式感; 作为餐饮主营,食材是品质核心,食材展示让顾客实在看到,防火防水的杜邦纸灯箱作为店名的背景,既符合业主对空间明亮度的要求也给整个空间增添了一定的氛围感,绿色的电镀砖点缀其中,使整体空间时尚与艺术兼具。
香味流转,烟火升腾,抚慰人心的美食在设计中有了具象的表达,设计师将萦绕的香气以流线的方式散入设计中,以服务台为基准点,设计东西、南北两条动线,东西动线服务的主要是静态的包厢区,南北主要服务的是动态的散客区,两个区域互不打扰。
作为延安品牌到西安的拓展,即使设计做了很大的转变,但是情绪的“设计”始终蕴含其中,这一区域的散座设计了“房中房”,足够的层高承载陕北窑洞的“形体”,包裹的安全感,拱形的门洞层次递进,让散座也有了不同的视觉跳跃感。
大面积的散座区与橱窗相结合,虽然主入口的门头并不是很大,但是设计师将视觉传达尽量的展现,利用原始的幕墙,设计成为橱窗,与艺术长廊完成同一主题表达,四个创始人从毕业初期共同创业至今,金子般的友谊坚韧热情,设计抓住当下“直给”的表达,共同淘金,直给金矿矿洞的形态,从主街朝内,橱窗成为鲜明的“招牌”,对内成为散座区域的映衬,双重的功能既完成商业输出,又对内给予情绪。
拆除原始空间的墙体,设计一个多功能吧台,考虑到地下车库直达的入口,因此水吧兼容等候区,弧形的造型类酒吧的轻松时尚,缓解客人进入新环境的紧张感,也能感受四周热闹的用餐氛围,同时吧台兼顾卡座和包间的服务,成为空间的第二个核心区,绿色的电镀砖电梯第一入口的元素,特色礼盒、酒水服务、接待结账功能都兼具。
设计师在空间中设计艺术长廊,装置艺术与色彩大胆交互,作为通往各个包间的静区长廊,设计细腻的将四个创始人的创业故事和情怀分散渗入;
一处静雅、一处闲情,包厢亦有景,色彩以不同的程度衔接碰撞,功能以多样的使用分割立面空间,作为东面的包间,此处原始作为室外露台,40公分的上翻梁,成为设计发挥的契机,抬高露台地面40公分,将每个包间的卫生间下水问题解决,同时封入的露台成为一个观景包间,“变出”的包间,大大增加了空间的使用效能,室内的设计通过撞色和顶面造型完成丰富的设计层次。
每个包间都设计独立的卫生间,延展整个空间中的色彩和材质元素,随时点题,让空间的整体和统一性不断传达
在不同的包间中,根据空间的大小不同,设计师总是希望能够丰富包间的使用松弛感,设计茶台,茶余饭后,让相聚的时间更久一些,让相逢的热度再绵长一些。
注重餐厅的每一个细节,卫生间尤为重要,设计师保持满满仪式感的情绪到每个空间,转角直面微景观,光影结合,让卫生间的质感凸显,绿色的电镀砖大面积的“席卷”洗手台,时尚的质感是设计师内心对空间的热情不变。
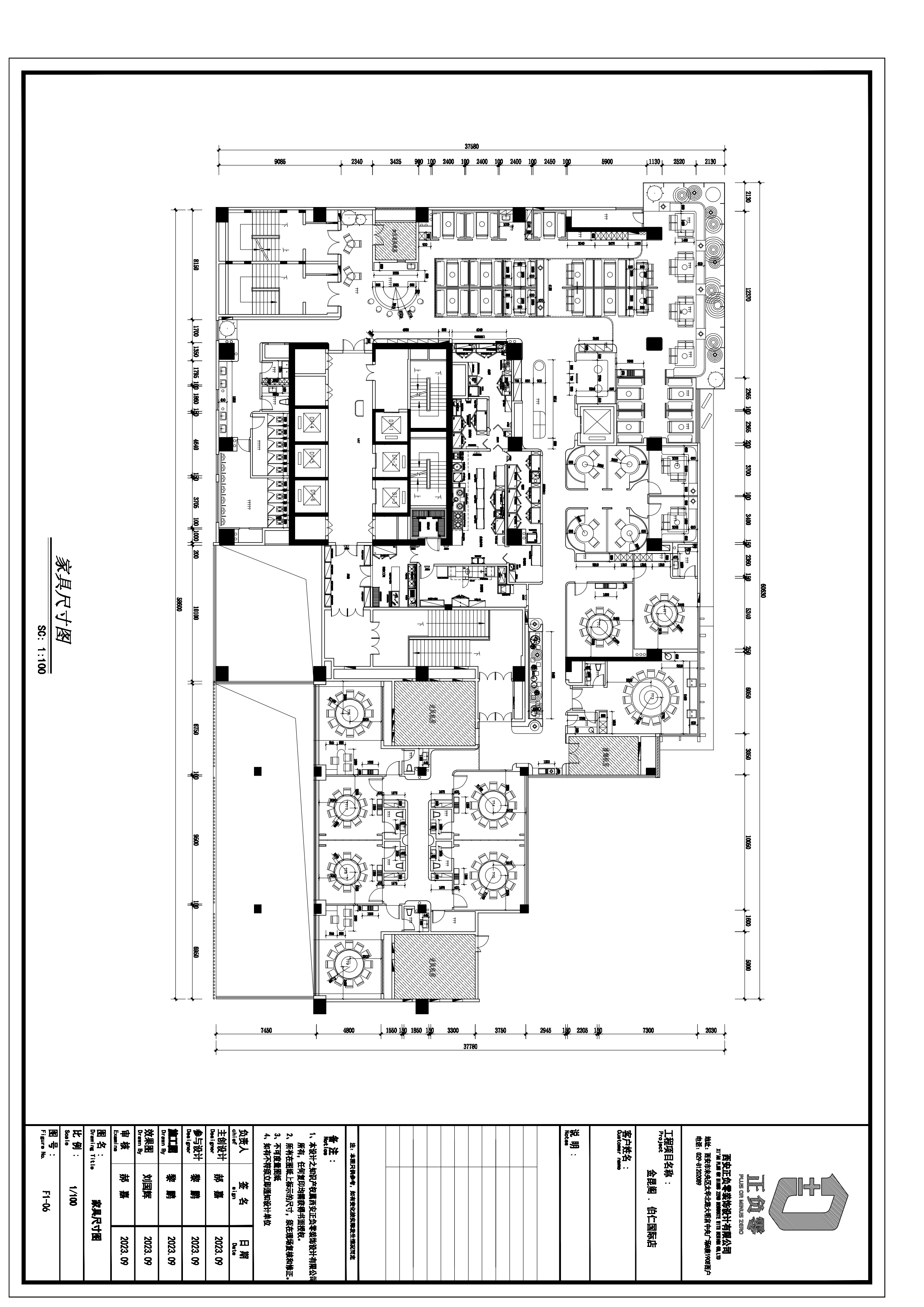
平面布局图
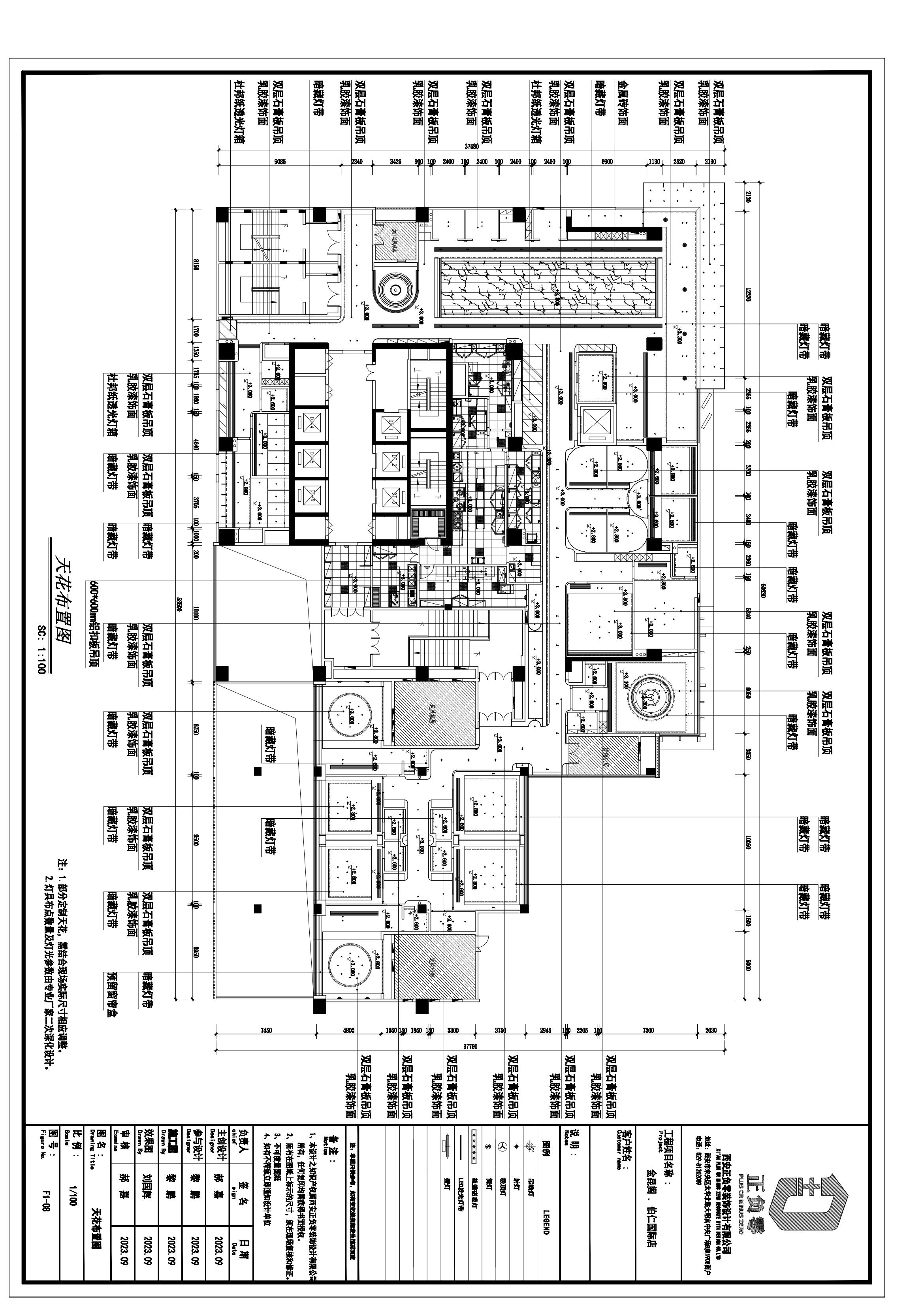
天花吊顶图

