-
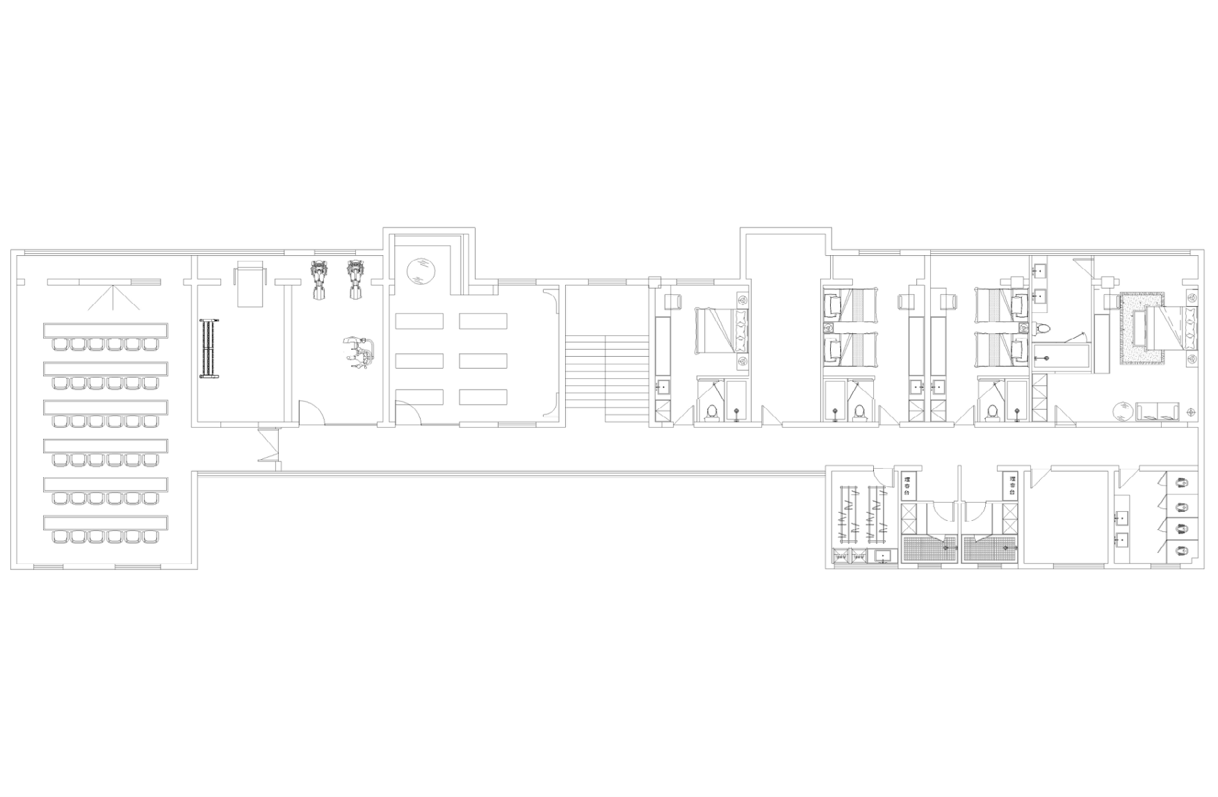
项目定位:项目坐落于洛阳市伊滨区庞村产业园,作为一家相对传统的钢制家具生产企业,设计面临的首要问题是,如何通过部分厂区及办公区整体环境的改造,改变人们对钢制家具企业的传统看法。我们试图在当下普遍以务实为主的生产型企业办公空间中,寻找另一种轻盈和沉静的空间状态,并通过细腻的材料变化和精确的细节把握来实现空间品质。
-
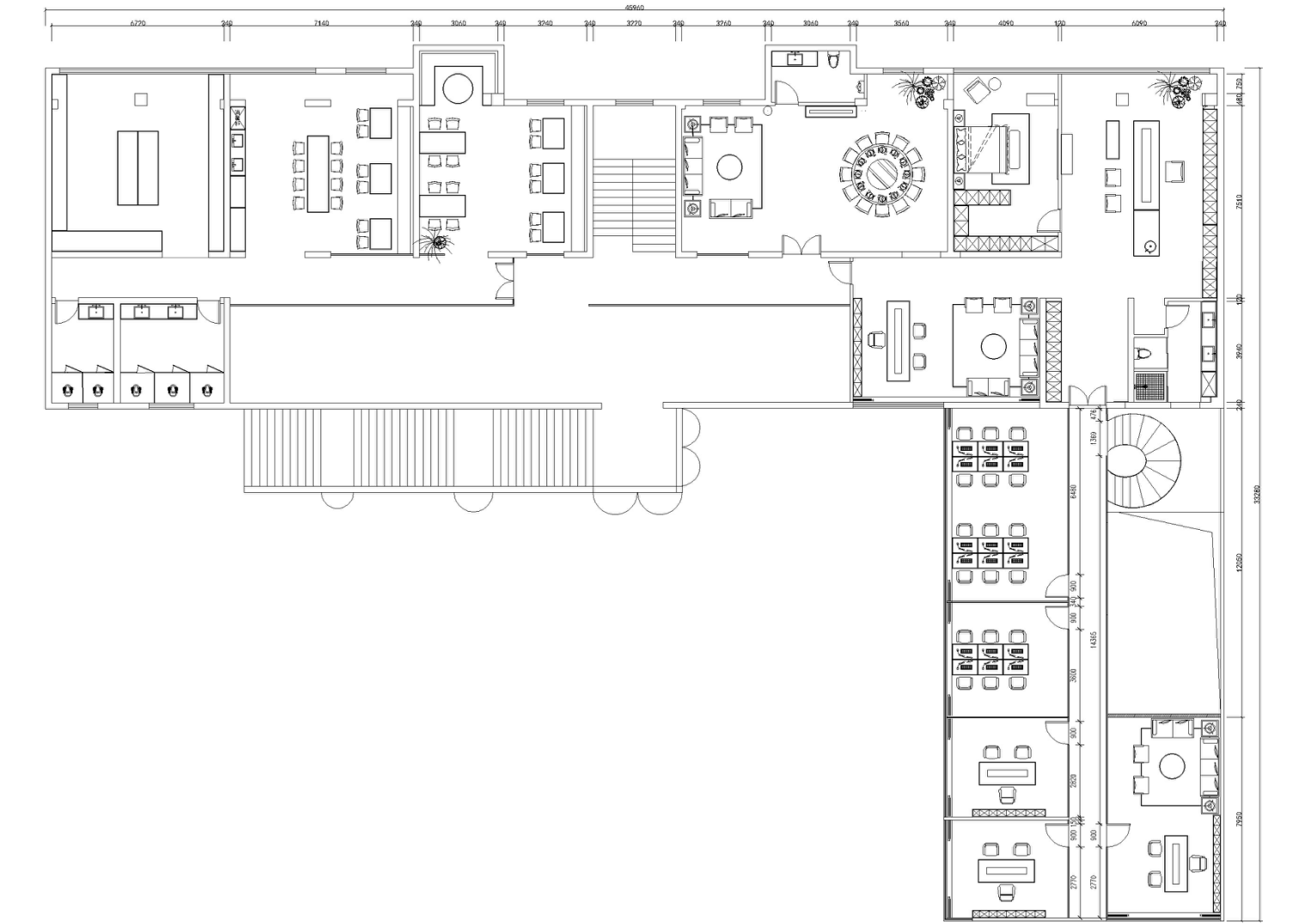
空间意境:这个场地分为三个不同的区域:一个面向街道的企业展厅、一个集中办公区和一个会客茶室,一起形成了一个理想的、具备展示、接待和办公一体化的空间。同时,设计师将流水小景、清幽竹林融入其中,在这里,自然和建筑环境之间的界限被模糊,允许有一个空间,邀请他人共同创造和探索。
-
空间布局:办公区1F入口取消了传统的接待台,设计成开放式的茶水区+交流区,让整个氛围更加轻松与自在。从上而下的开放式陈列柜与通透纯净的落地玻璃窗结合,营造出一种轻盈冷静的美感,满足各种社交活动和工作场景需求。与我们习惯的典型企业办公室美学不同,促进幸福感的活动是员工体验不可或缺的一部分。园林汀步,坐石临窗,这里复合“商务接待、咖啡休闲、焚香煮茶”多元场景,释放单个空间的利用可能。这里是盛放艺术的容器,公共交流的场域,也是独处时的小天地,忙碌的城市灵魂在此停歇,得一隅生活喘息,由此得名“一方庭”。消解空旷的感受,方寸之间引渡庭院艺术,信步之下抬头仰望,如置身庭院天井,朦胧之中犹见“欲说还休”的东方美。
-
设计选材:展厅区域用简括的笔法提炼其功能要点,前台置于展厅正面,此外舍去多余的商务布置。整个空间犹如一张画纸,一灰一粉,冷暖搭配,以此中和钢制家具的锋芒与锐利。我们期望塑造一个“打破传统型办公模式、注重员工体验”的办公环境,双方共同创造一个面向未来,促进团队协作,以幸福体验为驱动力的工作场所。
-
用户体验:本案以启发式的空间设计,呈现独特美学,象征艺术及自然融合带来的巨大动力。在纷繁冗乱的都市中,构建一处自在平和的空间,悠然无拘、心静祥和、温情而自得。

