奇墨空间办公室
24
作品说明
- 项目类型:办公
- 项目地点:重庆市
- 建筑面积:268㎡
- 项目造价:300万元
- 主案设计师: 刘敏
- 竣工时间:2023.09
-
项目定位:设计旨在创造一个带有开敞通透,具有现代感又面向未来的艺术性办公场所。
-
空间意境:以“弧形”作为贯穿整个设计的主线,通过使用挑空的设计手法,将原本长条形的空间进行分解与重构。
-
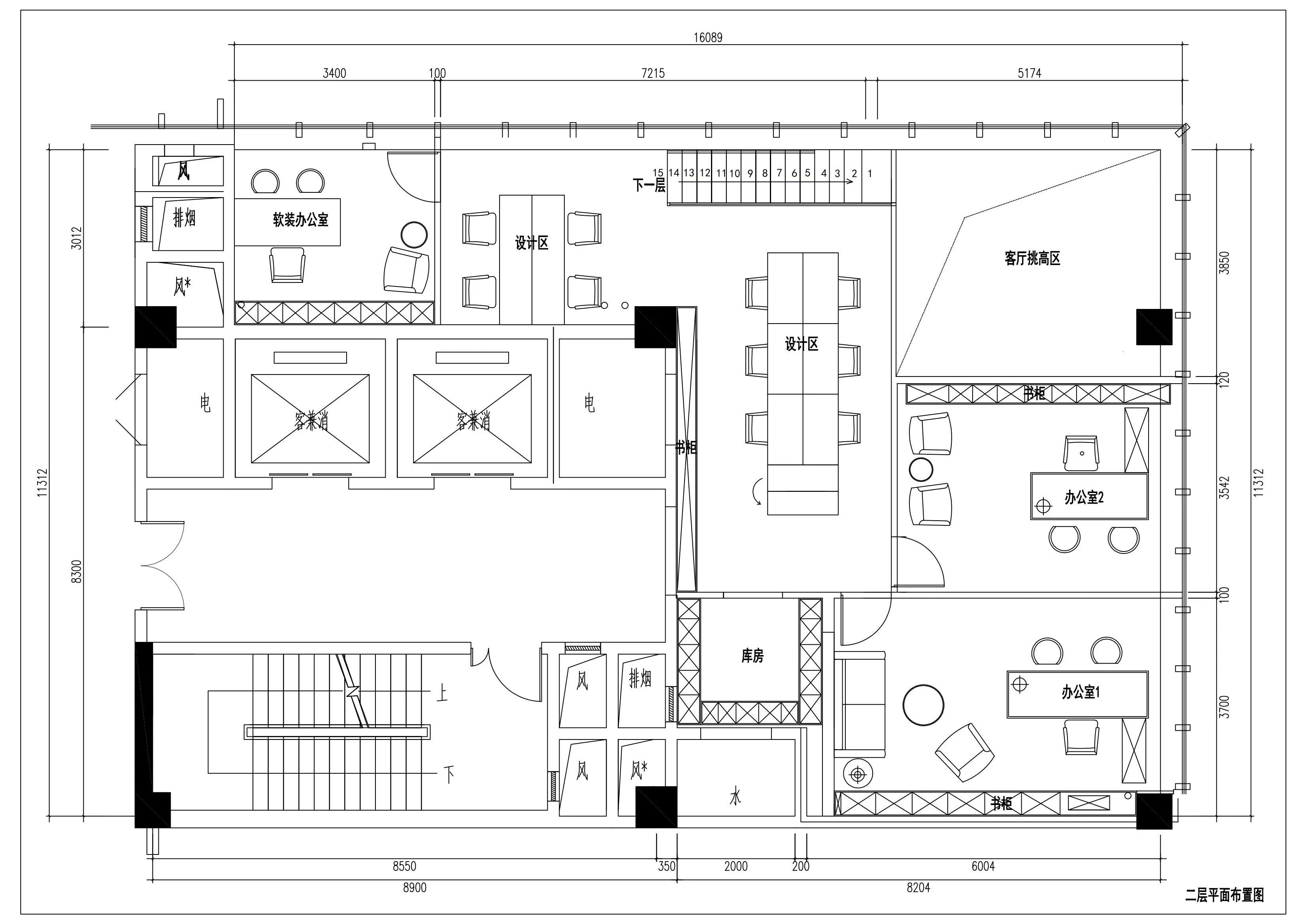
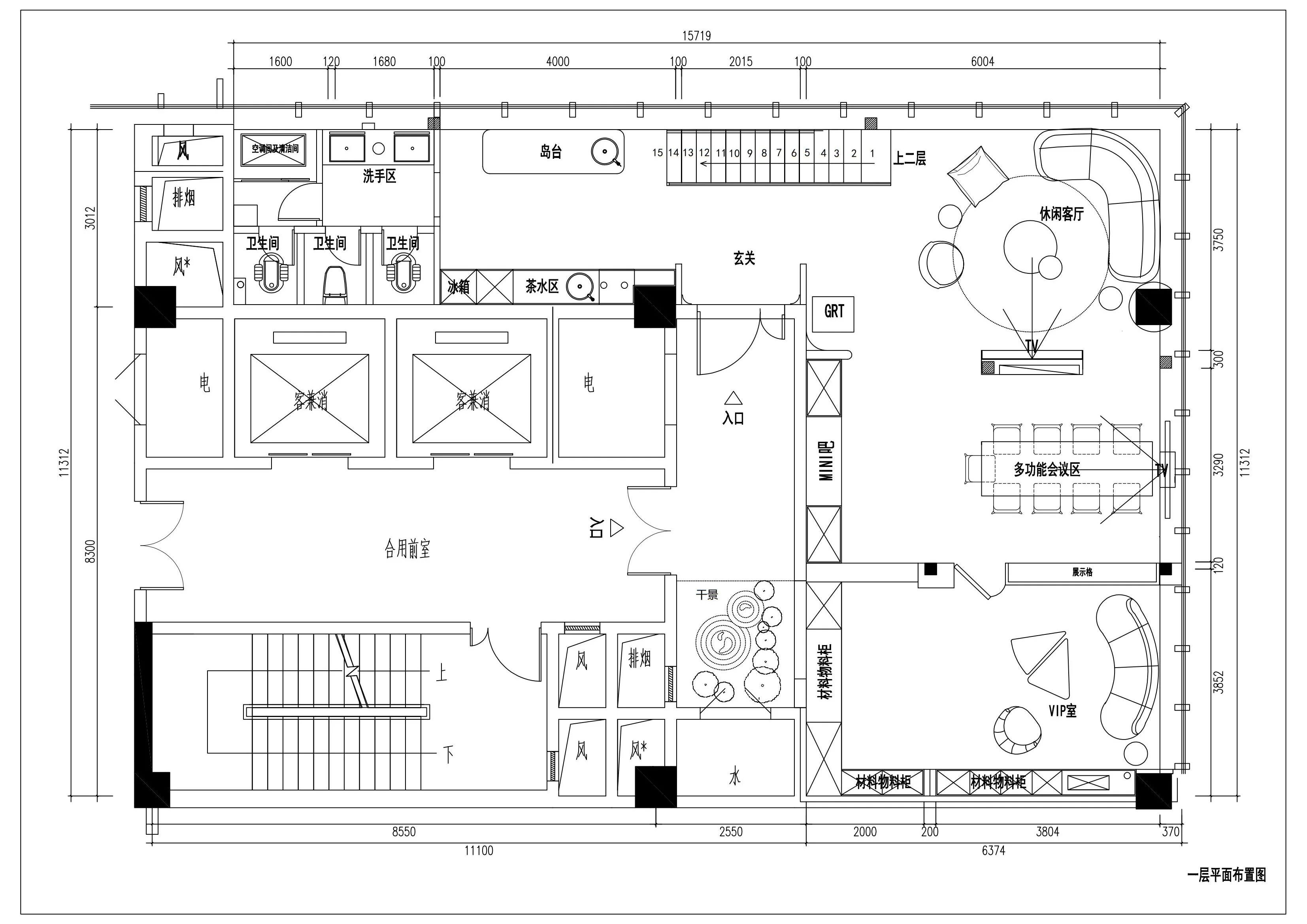
空间布局:一层空间作为整个办公空间的活动场所。集形象展示,会议接待,休闲区为一体。休闲区的壁炉设计隐藏着对空间的巧思,利用原结构柱的位置设计壁炉与影视墙的结合,既解决了结构柱占用空间的问题同时也作为休闲区与会议区的分隔,空间隔而不分。整个造型以一块进口绿色岩板做为饰面象征着生命力与朝气。会议与休闲区也可作为整个办公室多功能聚会与交流空间。流动的形体组合,使得办公,展示,休闲,培训等不同的功能体块之间达到彼此协调,结合的状态。
玻璃幕墙为室内空间引入自然光。设计希望通过空间设计去影响人的行为,拉动更多人与人之间的沟通、交流和互动。
在以往概念中的会议室是封闭,黑暗的空间,在此项目中会议室更希望定义成一个舞台,是思想上的碰撞,灵感上的激发,可以让更多的人看到并参与其中,将会议室做成一个半开敞的空间,放在整个布局的中心位置,柔和了空间功能的分区界限,使得这一“转折”成为空间中自然连贯的“媒介”。 -
设计选材:岩板做为饰面象征着生命力与朝气。玻璃幕墙为室内空间引入自然光。装饰雕塑与艺术品的应用增加空间氛围感。一层与二层办公区的楼梯处设计的拱形门与玻璃栏杆的结合既增加空间的装饰性与通透感。又作为二层办公区与一层休闲接待区的空间分隔。
-
用户体验:把设计归于至简,材料设计与功能设计,感性与理性的结合,空间温暖纯粹、宁静的氛围基调得以彰显。
0
0

认证 · 让您身份增值