龙湖双珑原著
577
作品说明
- 项目类型:别墅
- 项目地点:常州市
- 建筑面积:500.0000㎡
- 项目造价:100.0000万元
- 竣工时间:2024.11
-
项目定位:一家三口加客房以及保姆房,家里人兴趣爱好比较多,需要充分考虑。这套房子是业主找我们装修的第五套房子了,与业主之间的默契度比较高,各方面的情况都比较了解,设计方案到施工整体比较顺利。”
-
空间意境:深思熟虑的空间规划和用心的材料选择是确保设计结果精致典雅、真实可信的关键。
家是灵感与生活交织的场所,在这里,每一次对话都编织着情感的纽带,每一次沉默都诉说着不言而喻的默契。
-
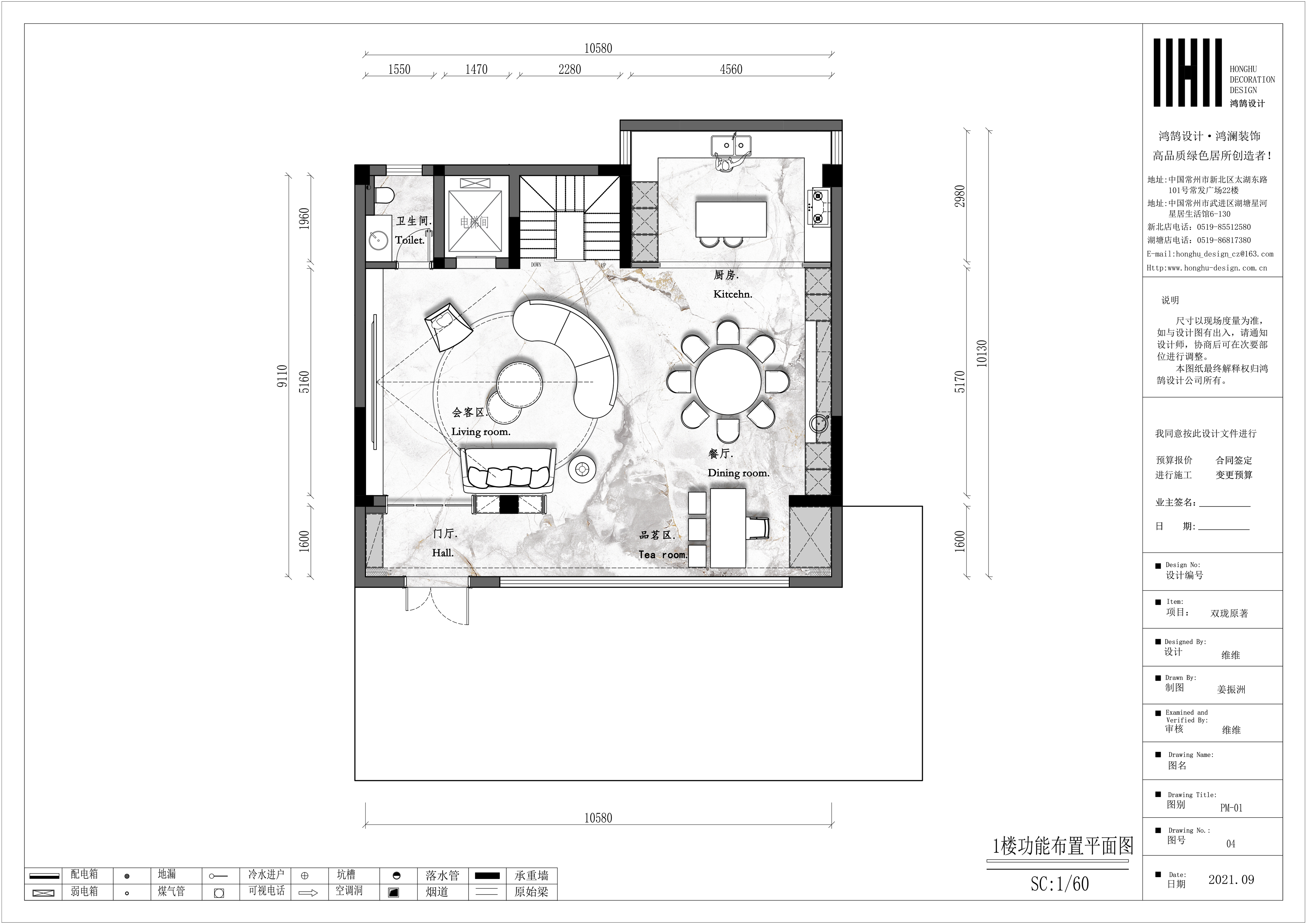
空间布局:本户型是一个带地下2层,地上3层的户型格局,整体规划是,地下2层作为健身娱乐公共区域,地下1层增加保姆房的套间,供独立使用;1F也是公共的客餐厅,2F-3F都是卧室套间。
-
设计选材:深思熟虑的空间规划和用心的材料选择是确保设计结果精致典雅、真实可信的关键。
-
用户体验:这个案例是设计师和业主合作的第5套房子,他们互相见证了需求变化和设计成长,彼此之间非常了解了空间需求,以及居住的需求偏好,所以在设计过程和落地实现都非常顺利。
设计真的不只是设计,更是一种磨合与成长。
1F整体以客餐厅为主,而餐厅厨房占一半,我们选择了回字形的厨房格局,增加动线,同时当玻璃隔断敞开时,空间与空间也有一个比较好的互动效果。本身厨房/餐厅一条水平线,是比较长的,所以设计师利用这一块,做了三个分区,分别实现了,茶室/餐厅以及厨房的功能模块。
每个区域我们都能“逐光设计”,空间在非常富裕的情况下,充分享受空间才是设计的主旨。
优化空间流动线条,确保自然光与清风自由穿梭,构筑一个惬意休闲的居所。自然松弛设计理念下,繁复装饰被摒弃,转而采用黑、白、灰为基调,为空间添上一抹清冽之感。
本户型是一个带地下2层,地上3层的户型格局,整体规划是,地下2层作为健身娱乐公共区域,地下1层增加保姆房的套间,供独立使用;1F也是公共的客餐厅,2F-3F都是卧室套间。
0
0

认证 · 让您身份增值