-
项目定位:中国铁建·江语天著,作为海口首批城市更新项目,承载未来城市更新的典范和标杆。在都市喧嚣中,中铁建设奠定海口城市更新之基,基于“听自然耳语,享受纯净生活”的理念。
-
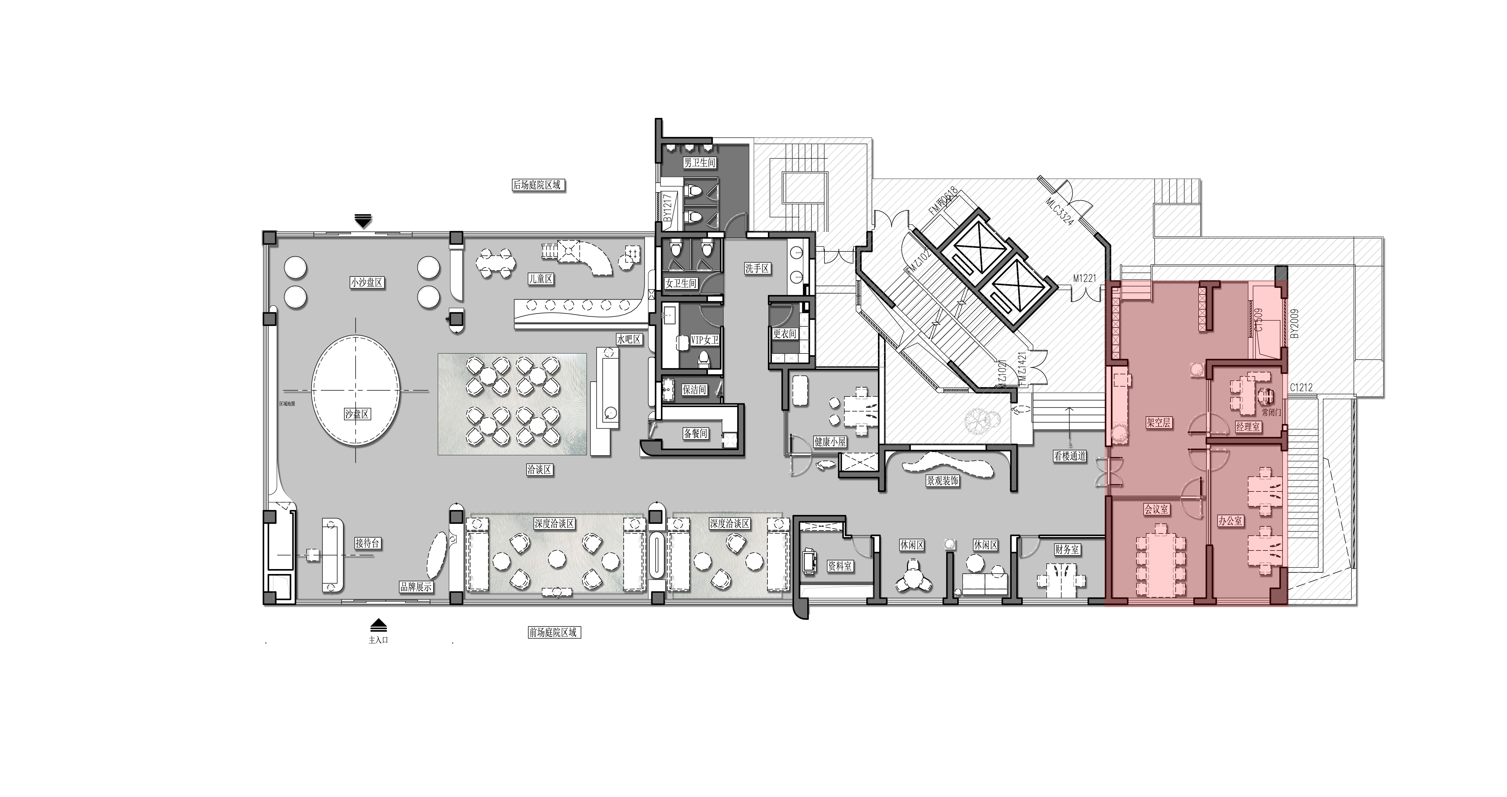
空间意境:作为永临结合范本,具备整体的综合建筑形态,不仅前期兼顾售楼处的宣传作用,后期还能节约成本改造回物业管理中心,采光天井也作为将来交付使用的空间构建之一。
-
空间布局:由于是临时售楼部,所以,结合商铺与架空层高低差关系,做了很多后场区域高低错落关系,卫生间,看楼通道都根据高差和空间局限性进行落位,因地制宜合理布置好每个功能布局。
-
设计选材:结合当地实际情况,减少碳排量,做了肌理漆+前场区域局部木纹石,体现自然,生态环保的理念。
-
用户体验:虽然空间有局限性,面积不大,但活动空间充足,也体现精美的海之森概念主题,自然,舒适,生态的空间理念体现无疑,用户体验是非常满意的。
步入海之森营销中心接待处,自然材料的融入,犹如徜徉于自然恬静之境。
设计灵感源自亲自然的设计源泉,量身定制的沙盘圆形天井,空间编织着大自然韵律与生态和谐的动人篇章。
翠影婆娑,水榭倚蓝天,使您在这自然之境中深陷身心宁静之境。
空间有着自然律动的独特之美
海口的自然光影在空间穿插交错,24h的光影变化,共同构筑出一幅富有层次感的视觉画卷。
海之森,主题的融入空间,如同一曲交响乐,用设计之语,奏响着自然之美的旋律
融合亲自然元素设计,在水吧咖啡区,您也可以发现生活的美好,感受设计的价值。
局部用了普拉达绿,简洁中体现精奢贵气之美,在有限的造价限制之下,创造出用材用心之道。
局部用了普拉达绿,简洁中体现精奢贵气之美,在有限的造价限制之下,创造出用材用心之道。
儿童区与洽谈区内外进行延展,隔而不断。也考虑大人的陪伴成长,提供亲子活动的家具设计,通过局部的家具作为空间中功能结构,体现设计融合综合考虑的特点。
用自然界中蝴蝶的标本作为隔断,也体现了“自然物语”,海之森自然亲生态的主题与语汇
微景观体验区,利用一些不利的空间节点,进行空间过渡与拓展。
亲生命的融入,给空间带来生机灵动,生态自然的空间感受。基于“听自然耳语,享受纯净生活”的理念,以“自然生态、景观园林+建筑整体观、舒适生活产品”为核心进行融合与设计。
中国铁建江语天著营销中心,作为海口首批城市更新项目,承载未来城市更新的典范和标杆。在都市喧嚣中,中铁建奠定海口城市更新之基,打造首座海之森营销中心。基于“听自然耳语,享受纯净生活”的理念,以“自然生态、景观园林+建筑整体观、舒适生活产品”为核心进行项目设计。

