亭 · 台 · 楼 · 阁
229
作品说明
- 项目类型:住宅公寓
- 项目地点:泸州市
- 建筑面积:200.0000㎡
- 项目造价:55.0000万元
- 主案设计师: 李雪
- 竣工时间:2023.11.05
- 设计机构:泸州素怀朴装饰设计有限公司
-
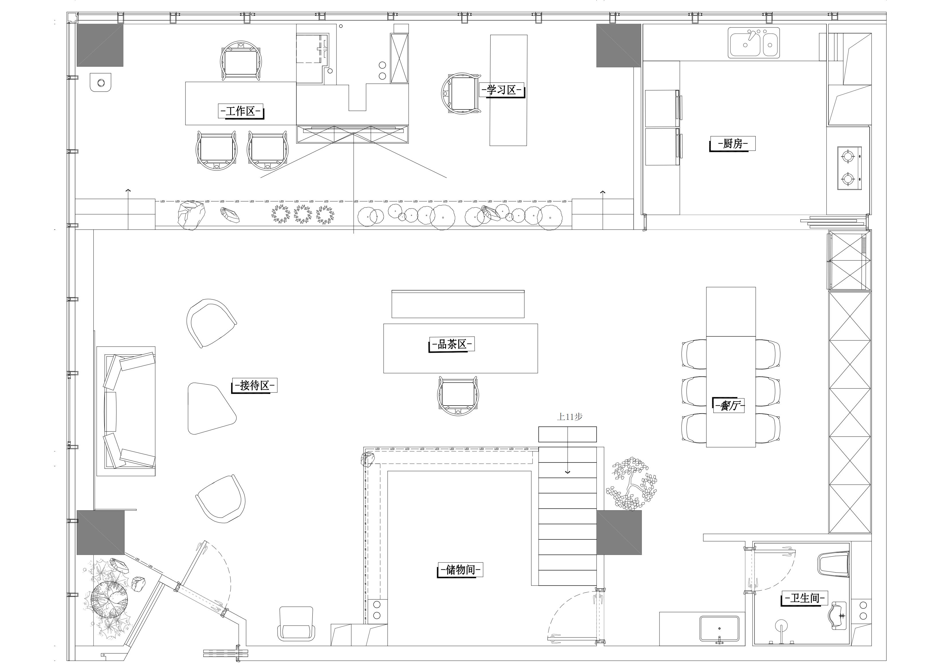
项目定位:本项目地址于泸州商业圈一栋商住楼,层高5.8米,由三套小面积户型打通为所用。
此间楼层俯看可直观沱江,业主为泸州酒业世家,空间定位是作为调酒工作室,同时可居家。 -
空间意境:以酒为业的世家传承着文化和传统,所以在空间容入不同体量的微景观,结合一些中式的元素的软装,把现代和中古以及中式做融合。即有简约的新颖,又有禅意的意境,同时体现中古的沉稳和韵味。
-
空间布局:亭 · 台 · 楼 · 阁,观景处,一揽(沱)江景作休憩!
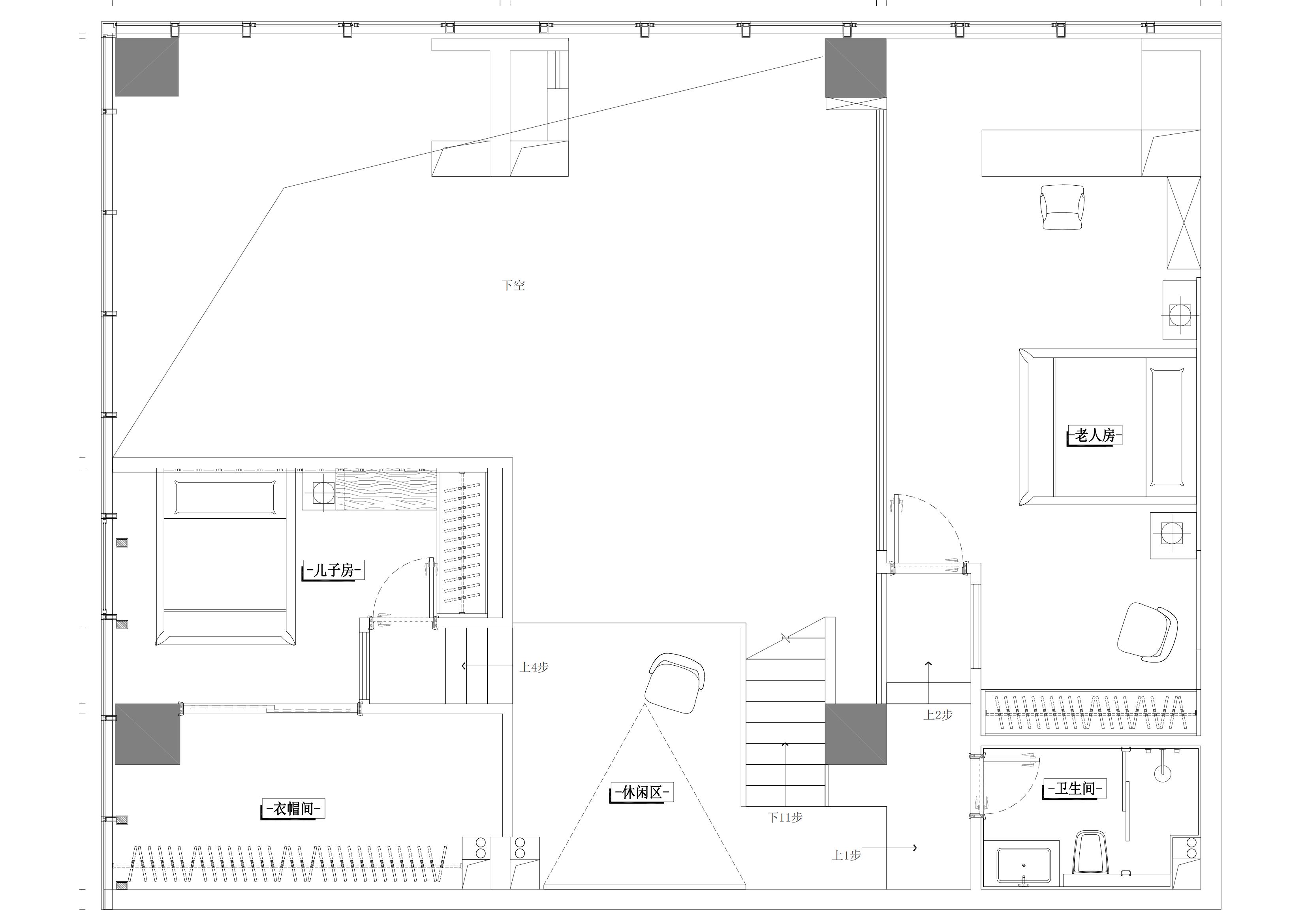
把空间分为亭 · 台 · 楼 · 阁,以中国传统建筑特色为主题用现代结构的手法体现。每个空间都以楼梯为介转换到各个空间,空间结构的体块层次一一体现。
利用商业主体紧临沱江的地埋优势。这便是“临水亭台间,挑牌楼阁起,自有一方天!” -
设计选材:空间选材均原木和水泥地砖为主,自然的且低碳的材质的应用体现对传统文化的热爱和推广。
-
用户体验:客户最好的认可便是,一个作品成为朋友同时还不断把身边有需求的朋友作转介。
亭 · 台 · 楼 · 阁,观景处,一揽(沱)江景作休憩!
· 『 亭 』 都市楼屿中——觅得一安隅,可办公,可观景,可居家 有江水,有树,有人 这就是所向往的生活环境。
如归,光影悄至。
入眼便是恬静的绿植,
绿意盎然仿佛不是置身于繁华都市,而是临水长亭。
光影交错中,透光的格栅和地龛的绿景,点亮了原本平静的背景
晴耕雨读,四时朝暮
一茶一书,恬然自得
· 『 台 』 地台,木帘垂吊,坐在那里当一闲人甚好!
踏上阁楼的台阶做延伸与背景一体
大面留白给人无限遐想,温柔木纹作为底衬,更显几分的温馨与宁静。
以楼梯为介转换到各个空间,空间结构的体块层次一一体现。
· 『 楼 』 一方安隅阁楼
陪伴、成长、温暖、欢笑。 此刻凝聚成家的意义。
· 『 阁』 在灯光的下,与自然光的对比。
此时楼阁更是体块的理性与静谧,如悬浮于云中。
对于在喧市中生活的打拼者,总想在繁杂的工作中同时可以感受家的歇息。
把生活和工作交付于自然,置身其中,既让人得于宁静,同时感受更好灵感与启发。
“临水亭台间,挑牌楼阁起,自有一方天!” 人和物都活在空间的维度之中, 房间里被每一处暖光依托着, 此间,窗外的风景与繁华 皆已成为配角。
项目1F
项目2F
0
0

认证 · 让您身份增值