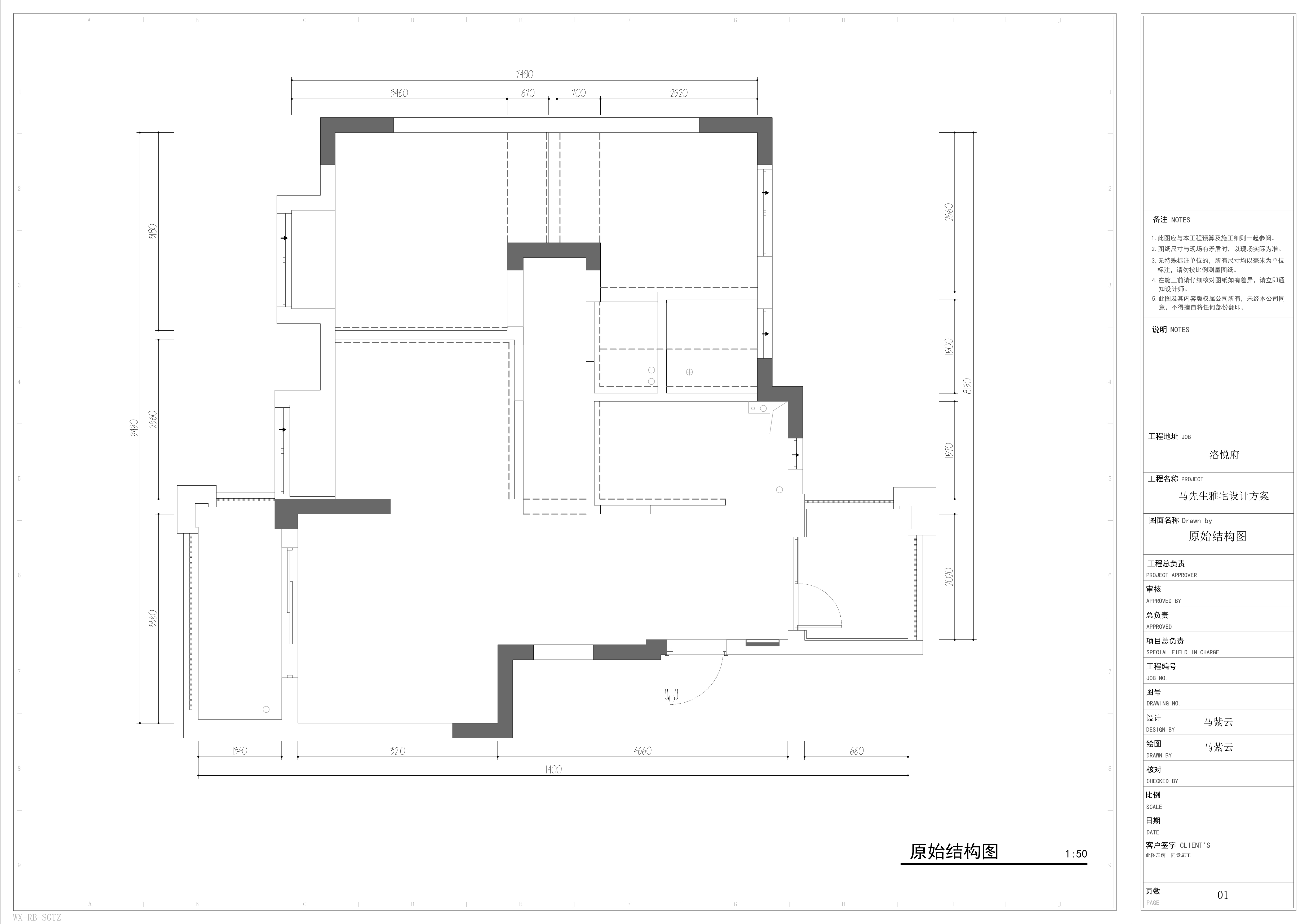
-
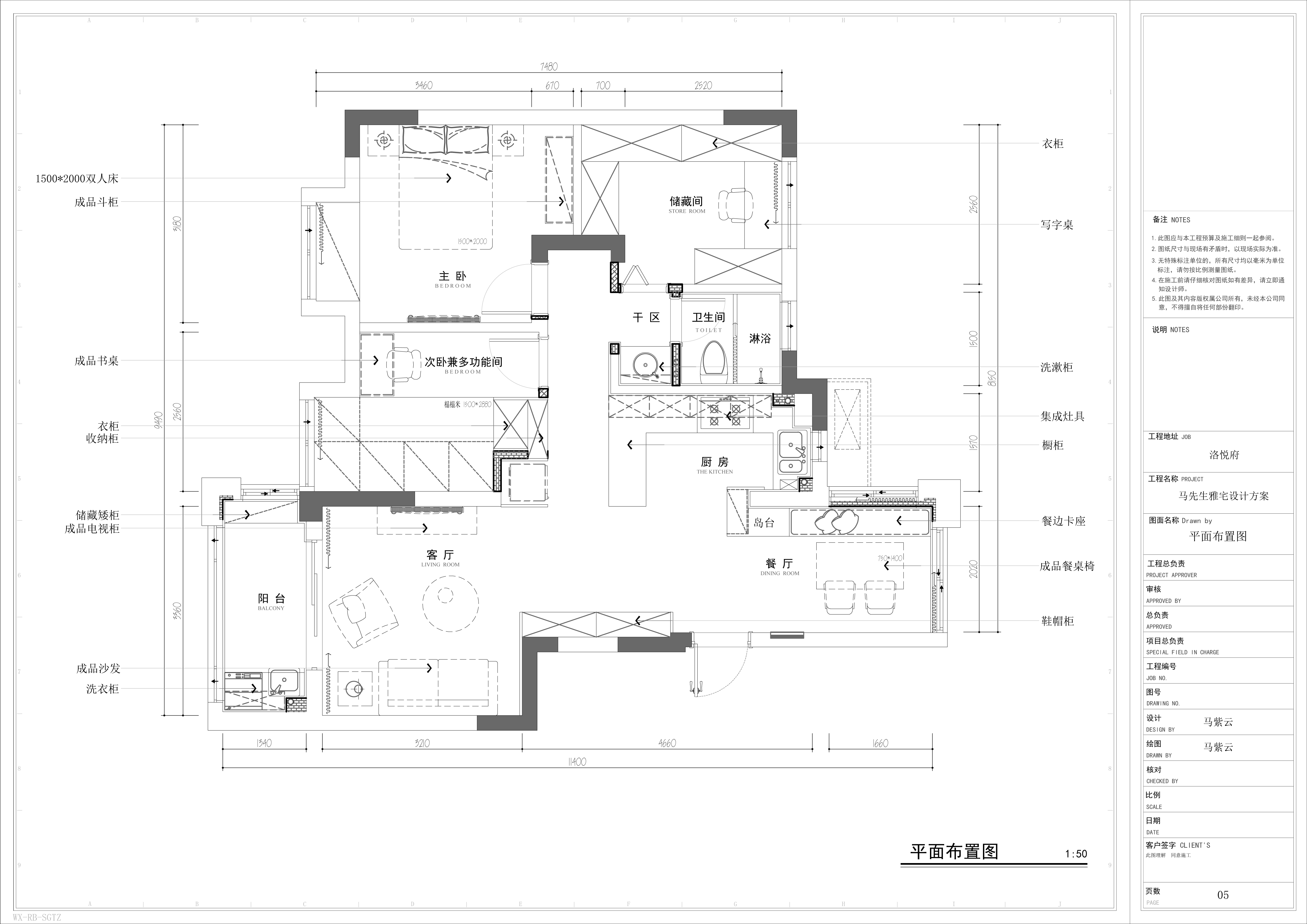
项目定位:有各自的空间,也知道对方就在身边。
-
空间意境:大面积的飘窗是与自然对话的绝佳场所,只需挂上最简易的白色棉麻窗帘,大片的阳光就会倾泻进来,为卧室笼上一层朦胧的光晕。清晨醒来,入眼是光影绘制的曼妙图案,身旁是最爱的人,时光就此静止。
-
空间布局:将厨房做开放处理,结合原北阳台空间,扩大餐厅使用面积;
将南阳台与客厅融合,把南边最好的采光和户外景色引入客厅。 -
设计选材:浅灰色的地砖、爵士白的大理石墙砖、黑白相间的柜体,以及定制的玄关台面,整体和谐而自然。
-
用户体验:与之前所想要的东西完美契合甚至超出预期效果。
E6AAC8FD-E53A-4BAA-AD1B-60D3A84308DE
6D704D52-B4FF-4020-B426-D6AC960AD0E1
4FF36F21-3B60-4FB2-8F5A-3CF935BF4389
61639BDC-9695-45E3-8EB6-5D8B8D075B8B
179B8BDA-28C0-4228-98AE-935AC1C78BAA
0783FCB8-86A6-434E-9FDC-28F99C0A8B76
AA3AB122-590C-48F0-B258-1D468AB0A7F5
A718F812-EA11-410A-AA87-6F1C377C5B0B
3C191FB9-2E4B-4684-BE41-B5BF8C492A5F
9E8BFAE1-33A4-42D7-8270-9009EB04381A
A370DC6C-BCDC-427A-9164-9238E29D690C
A4E3CE62-62BC-470E-8B04-FF7A94F6E259
ECDE8108-5F4B-4398-A03E-194E03B57D52
D5AA2F89-ECBF-49F5-8D03-0939BEB0237D
0F0F66F6-EFA8-47B7-871C-ECC850C43C99
ABE68B0D-59C8-48F9-8DCE-19AC7D1F3D11
6813DE9E-2AE8-4719-AB55-4C077706A405
6F920726-A179-4252-8458-F615E0F04A81
1
0

认证 · 让您身份增值
807