常州湖畔春秋K8汇园别墅
609
作品说明
- 项目类型:别墅
- 项目地点:常州市
- 建筑面积:950.0000㎡
- 项目造价:1500.0000万元
- 主案设计师: 徐吉
- 竣工时间:2022年8月
票数 : 0
-
项目定位:K8汇园,三面环水,水元素如同一枚流动的介质,透过它,人们思考空间与自然的关系。以水为媒,迎接水色天光,以光为质,构建雅奢之居......
-
空间意境:在室内空间场景设计上,设计师运用现代简约的线条和色彩,打造出宽敞、明亮的空间感。同时,为了营造出温馨的氛围,室内装饰中融入了天然材质,如木质、石材等,这些材质不仅环保,还能让人感受到大自然的温暖与舒适。
-
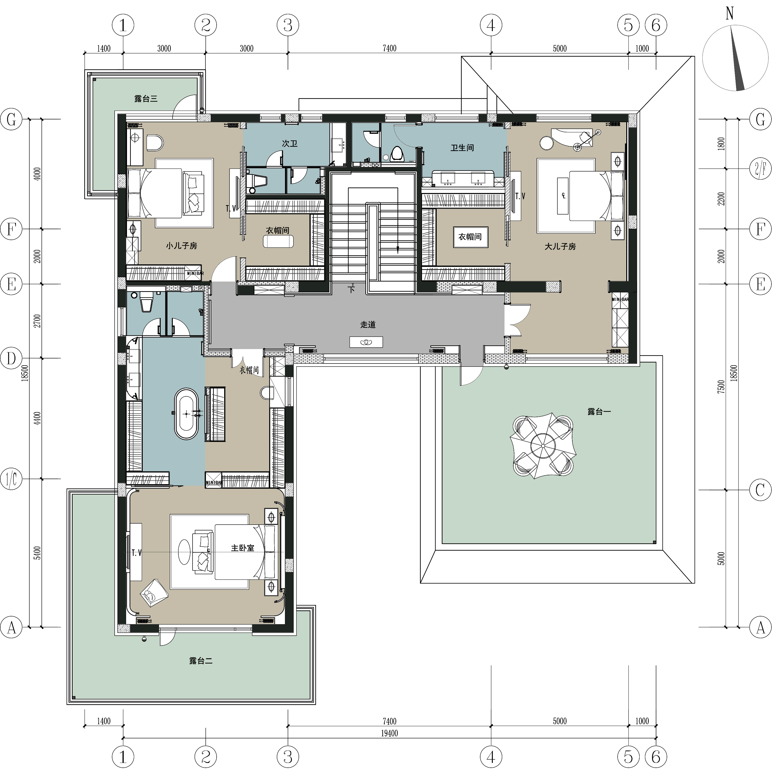
空间布局:一层作为家庭多功能的开放空间,开放、自由、社交,给生活更多可能,融合了车库、玄关收纳、会客、餐厨互动、书房、园林等区域,满足了家庭人车入户、聚餐、会客、露天休闲和动态收纳等多种需求。
二层私密居室,奢享生活格调,以邂逅米兰为设计灵感-作为意大利的时尚、设计之都,它所散发出的无与伦比的独特 魅力。从这座城市汇聚的西方艺术作品里,找到与城市中相对应的元素,并以此“亲触”属 于意大利的文艺脉搏,体会人们对优雅、时尚的追求与精神。
负一层设计以古罗马建筑为蓝本,在空间中运用对称、轴线、比例等方式排列组合,古典风格的秩序感营造出独特的空间符号,实现建筑语言室内化! -
设计选材:整体选材上我们更多的是考虑可持续性、再生性,运用高效隔热与保温材料,使用智能化监控与管理。
-
用户体验:客户很满意空间的布局和设计。整个空间宽敞、明亮,给人一种舒适和放松的感觉。同时,居中空间的装饰和细节处理也十分到位,从家具的选材到灯光的设置,都体现了设计师的用心和品味。
0
0

认证 · 让您身份增值