夏屿


- 项目类型:住宅公寓
- 项目地点:成都市
- 建筑面积:130.0000㎡
- 项目造价:52.0000万元
- 参与设计师:刘继伟
- 竣工时间:2023年1月
- 设计机构:吾隅设计
-
项目定位:在快节奏的现代生活中,家成了人们的避风港湾,让人放松身心,舒缓压力。而对于本案两位从事一线医务工作的屋主和他们的孩子来说,家人共处的生活点滴都弥足珍贵。
-
空间意境:这次我们的设计重点集中在如何融合实用和趣味性,创造一个相互陪伴成长的家,带娃时其乐融融,独处时放松自由。厨房墙顶采用不同颜色的涂料,通过色彩来界定空间的功能关系,增加玄关区域的视觉层次。我们将客厅与阳台连接的转角,考虑了弧形墙面柔和过渡,运动玩耍更加安全。阳台顶部的挂钩不仅可以用于安装秋千,还可以在小朋友长大后作为健身器材的固定点,不用时也可以轻松取下,发挥多重功能。
-
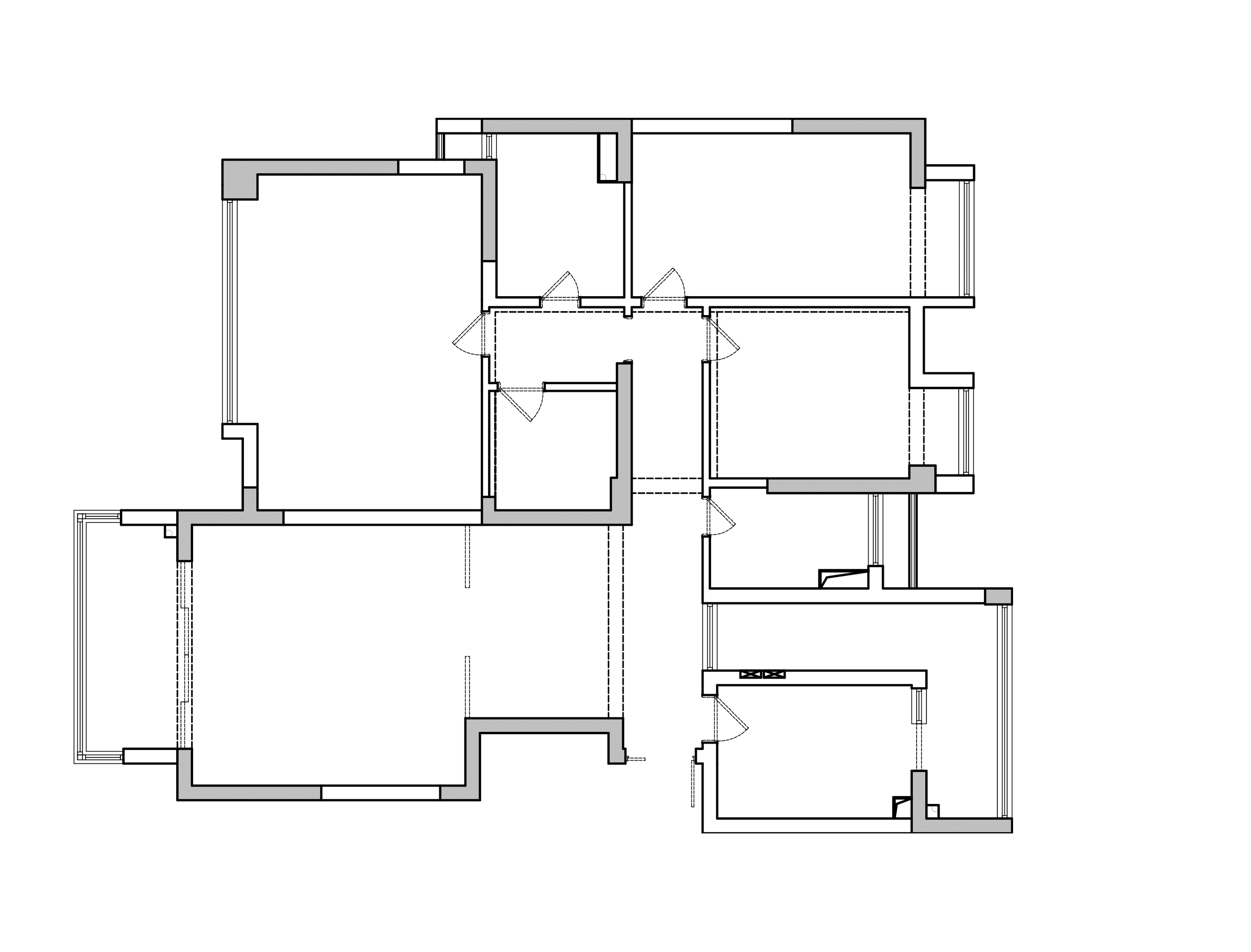
空间布局:我们将过道靠近次卧的墙体做了后退,设置出了一个阅读区域,可以放上小朋友喜欢的手办玩具;拆除原生活阳台与厨房之间的墙体后,把它们梳理为竖向的关系,这样得到了两个方正的空间,使得厨房的操作台区域由原来的4.7米增加为7.8米,将厨房从传统的孤立工作区域转变为一个可以多人协同的开放式空间;并把阳台内拓进客厅,延伸了客厅空间功能,光线充沛适合作为大人和小朋友的互动区域,亦可是一人阅读、喝下午茶的舒适一隅;整合了原主卧空间,通过对动线的梳理,规划出了办公区以及较为舒适尺度的卫浴功能,并调整了入口位置,设置在了靠近客厅的区域,缩短回房间路线距离的同时,也与次卧有效区分,互不打扰。
-
设计选材:在餐厅装饰、柜门上,我们所选木质的纹理,浅杏色与豆绿色的搭配,保证环保的同时赋予了空间自然清新感。卫生间中,我们选用了和墙面同色的绿色波浪纹釉面砖,仿佛水波般起伏流动,走进浴室的一瞬间身心都放松下来宛若走进自然。
-
用户体验:设计师计从每个家庭的实际需要出发,拒绝千篇一律,设计一个自定义的家,从客厅的秋千,无茶几的大地毯,到主卧的外卖小天地,儿童房衣柜的开放格等等,每一处都觉得恰到好处。
厨房门洞扩大后增加了玄关的采光,墙面安装洞洞板搭配隔板与圆球挂钩,组合成多样的收纳场景,使玄关收纳更加有条不紊。定制的到顶衣帽镜安装在洞洞板旁边,可以将厨房和生活阳台的光线反射到玄关区域,两者之间有一个1cm宽的线灯,可以补充正面照明,方便屋主在出门前进行妆容整理。
厨房墙顶采用不同颜色的涂料,通过色彩来界定空间的功能关系,增加玄关区域的视觉层次。
靠近厨房一侧的玄关矮柜,预留给露营车/婴儿车,方便进出门随时收纳。
原先的厨房空间较为狭窄,通过与部分生活阳台区域合并,扩大了厨房空间,增加了操作台面面积。
新梳理后的厨房布局为“U”字型和“一”字型相结合的形式:放菜台-冰箱-蒸烤箱-洗碗机-水槽-备菜台-烹饪-传菜台,无论是切配还是烹饪,都可以和家人从容应对,宽敞明亮、动线流畅的厨房满足屋主对各式烹饪料理的需求。利用透光不透明的长虹玻璃隔断+门的组合增加厨房的采光,玻璃门上的猫洞连接厨房与生活阳台,方便猫咪自由出入,有效隔绝异味的传播,同时也保证美观性。
厨房门洞尺度扩大后形成客餐厅开放式布局,倍化空间视觉,增加了家庭成员之间的互动和沟通。过道和餐区顶面采用弧形设计来弱化顶面的梁位,让空间在不降低层高的情况下变得更有趣味。
餐桌旁是在行走的动线上,餐边柜采用了暗拉手的形式,避免磕碰。在这里可以放置屋主与家人常用的茶杯、水壶、咖啡机等,内嵌灯带补充台面照明,柜体上区可以收纳囤积的生活用品,下区是鞋柜区。木质的纹理,浅杏色与豆绿色的搭配,赋予空间自然清新感。
小朋友在成长过程中客厅是最常待的地方,我们将客厅与阳台连接的转角,考虑了弧形墙面柔和过渡,运动玩耍更加安全。电视柜全长4m,高2m,深度为0.4m,超强收纳系统,可以容纳77个20寸行李箱!
电视柜按照LEKMAN收纳盒的高度做了悬空处理,小朋友常用的玩具、绘本可以分类收纳,整面电视柜补充收纳家里的医药用品、工具箱、杂物等等,让客厅保持整洁的同时也可以培养小朋友的收纳习惯。
用方便移动的小边几来替代客厅中心的茶几,圆形羊毛地毯亲肤柔软,小朋友最爱在上面玩耍
就近、充足的收纳空间就算玩耍得一片狼藉,也可以在10分钟内快速收整搞定,非常方便贴心。
利用墙角与电视柜的垂直关系设置了一面银镜,能反射照进客厅阳台的光线,增加采光的同时延伸空间的视觉感受。镜子旁的开架区域,最上方的两层可以根据屋主的喜好摆放装饰品或绿植,下方的弧形隔板则是给猫猫提供了一个休息的平台,最下方预留给了垃圾桶,我们把垃圾桶上方的隔板开了一个圆洞,小朋友丢垃圾时可以模仿投篮动作,培养垃圾入桶的好习惯,增添生活中的小趣味。
小朋友在家就可以实现秋千自由,屋主告诉我们,小朋友特别喜欢在上面荡秋千,看着窗外车水马龙,共度美好的亲子时光,顶部的挂钩不仅可以用于安装秋千,还可以在小朋友长大后作为健身器材的固定点,不用时也可以轻松取下,发挥多重功能。
电视墙的家政柜内部设置了一组洞洞板并且预留了电源,可以很方便的收纳吸尘器的各种配件,满足后期更多样化的收纳场景。
家里随处可见,有许多轻巧的小边几,移动方便,可以满足不同的场景需求。从隐形门进入主卧,屋主希望作为自己的私人空间,可以营造出充满个性与格调的居家氛围。
床头隔断将主卧功能划分开来,玻璃砖既能保证隐私性,也能保证进入卧室后的视线延伸,形成一个隔而不断的卧室小玄关增加入室的仪式感。衣柜门型与餐区墙面的装置挂画相互呼应,空间既独立又相互关联。主卧选用了屋主喜爱的陶红+豆绿,与胡桃木地板搭配,营造出馥郁的复古氛围。
进门右侧是屋主的独立办公区,“L”型书桌大大提升了空间的利用率,能同时满足台式电脑+笔记本两人办公的需求
独立办公区与主卧相互连通而又互不干扰
床头设置了生活化的矮几
屋主是主机游戏爱好者,床头的开放格量身定制规划,可以满足PS4、PS5、switch、手柄以及游戏光碟的展示收纳,也方便操作使用。
进门左侧的柜体设置了次净衣区与健身器械收纳区,随形穿衣镜方便穿搭整理,一旁预留了圆形小壁灯,柔和的光线可以补充面部照明。
主卧进门后第一印象
床尾顶部内嵌升降幕布,可以轻松转换为游戏娱乐、私人影院模式,窗帘特意选用强遮光面料,白天使用也无压力。
浴缸旁的玻璃隔断与主卧相连,增加了卫生间的采光。洗手台下方保证迷你洗衣机可放下的尺度,同时还考虑了一整排抽屉,与上方的镜柜相互补充,满足日常洗护、化妆用品的收纳需求。
卫生间选用了和墙面同色的绿色波浪纹釉面砖,仿佛水波般起伏流动,走进浴室的一瞬间身心都放松下来。
走廊靠近儿童房的墙壁做了内退的书柜+储物空间,弱化了过廊的夯长感同时也为我们进入儿童房的动线增加了实用性。
床头背景使用孩子喜好的图形和色彩用乳胶漆做了一面简单墙画,与飘窗的小房子造型搭配,空间充满了童真趣味。
没有繁复的装饰,更多考虑到他们生活习惯的实用性,梳妆台和衣柜采用了一体设计,整洁美观
没有繁复的装饰,更多考虑到他们生活习惯的实用性,梳妆台和衣柜采用了一体设计,整洁美观
开放格可以放置常用的书籍、护肤用品,一盏&Tradition花苞灯点亮夜晚,营造出温馨助眠的舒适氛围。
客卫延续陶红+米黄的撞色搭配,浓郁又活泼。
原始平面图
轴视图
改造后平面图

