回归生活的美好-晴翠园别墅



- 项目类型:别墅
- 项目地点:北京市
- 建筑面积:230.0000㎡
- 项目造价:500.0000万元
- 主案设计师: 姚冬
- 参与设计师:姚冬
- 竣工时间:2023年10月10号
- 设计机构:合智营造空间设计(北京)有限公司
-
项目定位:城市的喧嚣、工作的忙碌,拥有一个精致舒适、极简明朗的家,才能让我们回归生活上的美好。
-
空间意境:房子原身是个阳光房,是客户主楼别墅的附属空间。设计师巧妙地将自然光与人工照明相结合,白天阳光洒进屋内,为室内带来自然的明亮舒适。夜晚灯光亮起,散发出温暖的光芒,星空的星光与灯光交相辉映,在此静坐,聆听夜的声音,感受风的轻抚,沉浸于如梦如幻的美好之中。
-
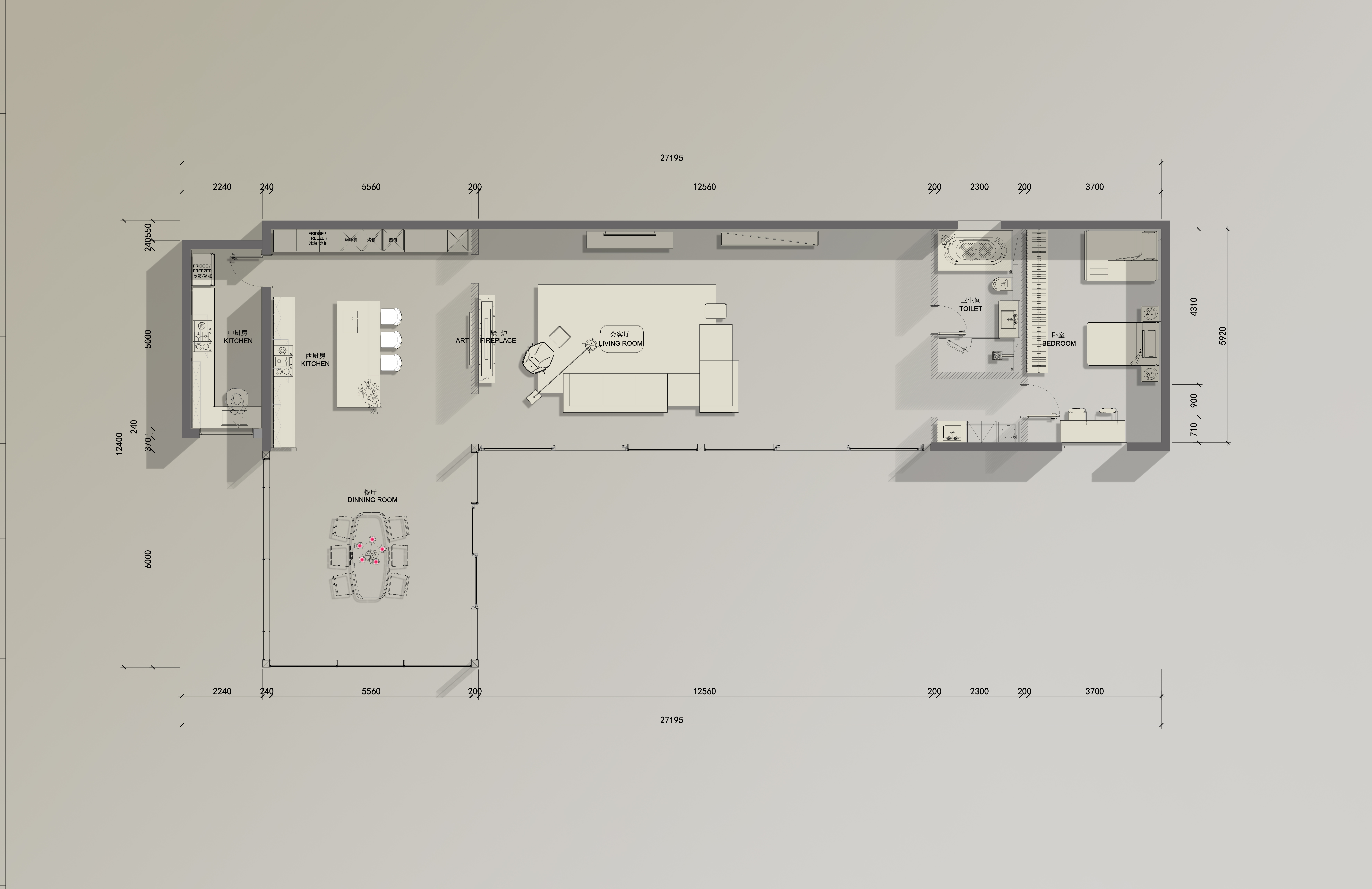
空间布局:考虑到甲方在有主楼别墅空间的提前下,做为甲方与孩子的亲子、会客空间,230平米的阳光房,只做为一居室来设计,长度12.5米的客厅让孩子有充足的空间在里面活动。而西厨和餐厅做为了甲方主要会客的区域。
-
设计选材:传统设计师会选择常规木作工厂或者木地板上顶的方式来处理顶面木饰面的效果,但是造价高,弧形位置不好实现。而这个项目原始顶部,充斥着纵横交错的梁和错综复杂的结构,为了遮蔽这些结构,我们研究了原顶后设计出如图的异形顶,用两"片"曲面叠合在一起,形成倒钩的造型。在叠合处暗藏灯带,增加了室内线条感。顶部的木饰面采用科定的3mm木饰面,造价低,可折弯,完美的实现了设计师的想法。
-
用户体验:甲方从房子开始土建到精装完成,只去过现场一次,项目进度效果完全交给我们来把控,最终项目也是完美落地。甲方对项目的认可度很高,经常有朋友去参观,在自己的社交平台也在发布很多家里的实景照片。
城市的喧嚣、工作的忙碌,拥有一个精致舒适、极简明朗的家,才能让我们回归生活上的美好。 The hustle and bustle of the city and the busyness of work,having a refined, comfortable, minimalist and clear home,only then can we return to the beauty of life.
西厨空间不仅注重设计效果的展示,更注重打造整体厨房空间,并提倡家人共享的生活方式。通过细节设计赋予厨房质感,形式追随功能,让每一块区域功能发挥极致,让业主可以感受到来自德意志橱柜独特的艺术、质朴、浪漫,以及她所诠释的一种愉悦的品质生活,是卓越价值与个性设计的和谐之作。 The western kitchen space not only emphasizes the display of design effects, but also emphasizes the creation of an overall kitchen space and advocates a shared lifestyle among family members. By giving the kitchen a texture through detailed design and following the function in form, each area is fully functional, allowing homeowners to feel the unique art, simplicity, romance from German cabinets, as well as the joyful quality of life she interprets. It is a harmonious work of outstanding value and personalized design.
对于现代业主而言,家不再只是一个住所,而是成为一个可以包容自己爱好的地方。喜欢潮玩、手办和原创艺术作品的业主就选择了将新居设计成一座充满现代艺术气息的"艺术馆"。 For modern homeowners, home is no longer just a residence, but a place that can accommodate their hobbies. Owners who enjoy trendy, handmade, and original art have chosen to design their new home as an "art museum" full of modern artistic atmosphere.
坐在 Eames 躺椅上独享自己的悠闲时光。 Sitting on the Eames lounge chair, enjoying your leisure time alone. 《 Eames Lounge Chair 》的设计起源,来自 Eames 夫妇对于开发『量产家具设计』的追求,并且在当时受到传统英式俱乐部椅( Club Chair )的风格影响。曾经 Charles 在一封信里面提到他的设计理念。信中写道,他所想像中的这把座椅,将如同棒球手套般带给人温暖的包覆。如今《伊姆斯躺椅》成为了舒适的代表,将每一位乘坐的人完整地包覆在里面,『舒适却不刻意』的精神,经过时间的淬链,成为熟悉顺手的存在。
别墅的原始顶部,充斥着纵横交错的梁和错综复杂的结构,为了遮蔽这些结构,我们研究了原顶后设计出如图的异形顶,用两"片"曲面叠合在一起,形成倒钩的造型。在叠合处暗藏灯带,增加了室内线条感。 The original roof of the villa is filled with crisscrossing beams and intricate structures. In order to conceal these structures, we studied the original roof and designed an irregular roof as shown in the picture. Two curved surfaces are stacked together to form a hooked shape. Concealed light strips at the overlapping area enhance the sense of indoor lines.
以空间的互动来推进人的互动,厨房与餐厅连接,烹饪的过程成为人们开放内心、与家人互动的过程,使朋友、家人来到家里有宾至如归的舒心与惬意。 Promoting human interaction through spatial interaction, connecting the kitchen and restaurant, the cooking process becomes a process for people to open up their hearts and interact with their families, making friends and family feel at home and comfortable.
为了使自然巧妙地融入室内的空间之中,设计师建议将原有的窗户尺寸向下延伸,换成支持定制的旭格 ASE 60提升推拉门。这样不仅实现了高达3米的一体化定制,同时兼具安居防盗、防暴雨的稳定性能。40mm极窄面宽,隐藏式五金组件在扩大视野的同时提升了室内的采光面积,让家萦绕在生机盎然的宜人景致之中。 In order to cleverly integrate nature into the indoor space, the designer suggests extending the original window size downwards and replacing it with a customized Xuge ASE 60 raised sliding door. This not only realizes the integrated customization of up to 3 meters, but also has the stability of anti-theft and rainstorm prevention. 40mm extremely narrow and wide, the hidden hardware components not only expand the view but also enhance the indoor lighting area, making the home linger in a vibrant and pleasant scenery.
生活在城市之中,拥有繁华却也要面对喧嚣,我们总会有一些时刻想要避开世间纷扰,拥有一丝宁静与平和。温柔的香格里拉,用它独特的力量将外面的世界隔绝开来,给内心留出一个专属空间。 Living in the city, despite being bustling, we have to face the hustle and bustle. There are always moments when we want to avoid the hustle and bustle of the world and have a hint of peace and tranquility. The gentle Shangri La, with its unique power, isolates the outside world and leaves an exclusive space for the heart.
家是停泊的港湾,早晨出发即一个弧度,将晚的幕布里回到终点。 Home is a harbor where one sets off in the morning in an arc, returning to the finish line through the curtains of the evening.
房子原身是个阳光房,是客户主楼别墅的附属空间。设计师巧妙地将自然光与人工照明相结合,白天阳光洒进屋内,为室内带来自然的明亮舒适。夜晚灯光亮起,散发出温暖的光芒,星空的星光与灯光交相辉映,在此静坐,聆听夜的声音,感受风的轻抚,沉浸于如梦如幻的美好之中。 This house was originally a sunroom and was an ancillary space to the client's main villa. The designer cleverly combines natural light with artificial lighting, allowing sunlight to shine into the room during the day, bringing natural brightness and comfort to the interior. At night, the lights light up, emitting a warm glow. The starry sky and the lights complement each other. Sitting here, listening to the sound of the night, feeling the gentle breeze, and immersing oneself in a dreamlike beauty.
晴翠园230米平阳光房,城市的喧嚣、工作的忙碌,拥有一个精致舒适、极简明朗的家,才能让我们回归生活上的美好。

