摩卡



作品说明
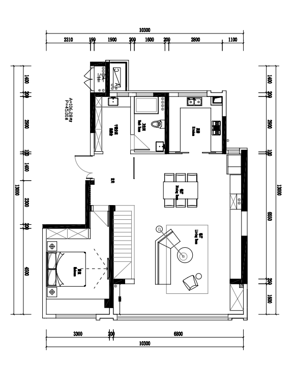
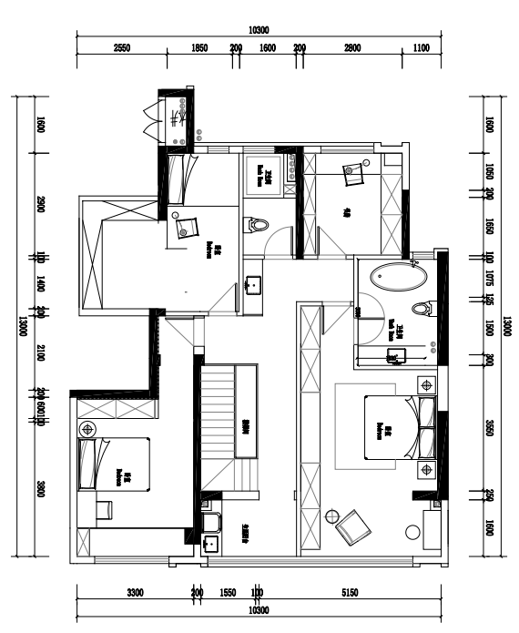
- 项目类型:住宅公寓
- 项目地点:常州市
- 建筑面积:200.0000㎡
- 项目造价:90.0000万元
- 主案设计师: 张杨萍
- 竣工时间:2022.8
票数 : 3
-
项目定位:奶茶色设计风格的主题为“温暖、柔和、自然”,旨在通过设计传达出舒适、温馨、浪漫的氛围,让人们感受到家的温暖和放松。
-
空间意境:注重科技的应用。例如,通过智能家居系统实现照明、温度等方面的自动化控制,或者运用数字艺术和投影技术来增强空间的视觉效果和互动体验。
-
空间布局:为了增加空间感,采用开放式设计,将客厅、餐厅、厨房等空间合并,形成一个连续的空间。这种设计方式可以让空间更加通透、宽敞,增强视觉效果。
-
设计选材:奶茶色设计风格注重材质的选择,通常会选择自然材质,如木质、棉麻布艺等,来营造出自然、温馨的氛围。同时,材质的质感和纹理也是非常重要的元素,通过不同的材质和纹理来增加层次感和立体感。
-
用户体验:满足三代人的生活要求,满足收纳空间的需求的同时满足美感及舒适度

