星叶翰锦院售楼处



作品说明
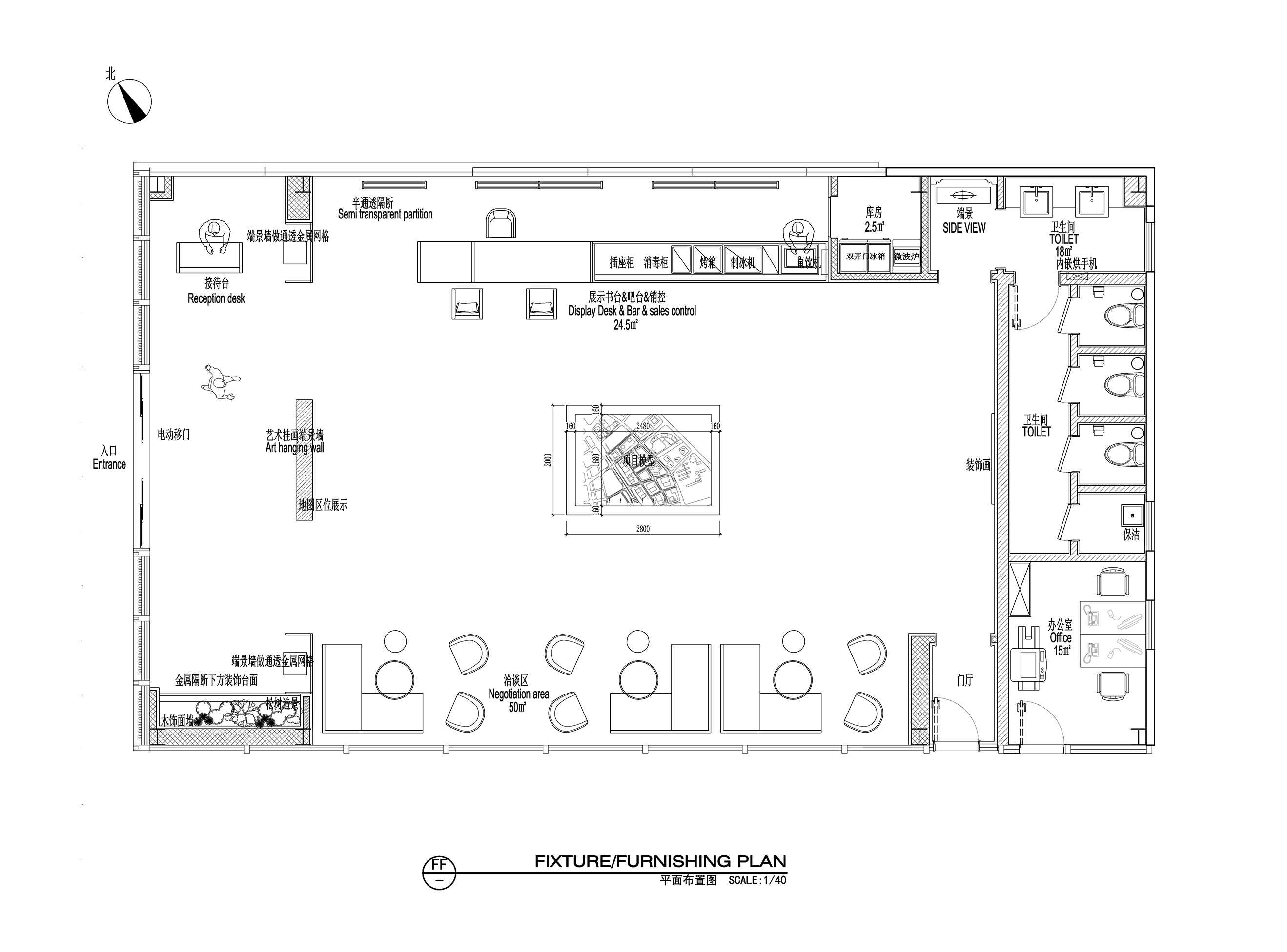
- 项目类型:样板间/售楼处
- 项目地点:南京市
- 建筑面积:185.0000㎡
- 项目造价:200.0000万元
- 主案设计师: 高钧铭
- 竣工时间:2023-01-19
- 设计机构:南京国豪装饰安装工程有限公司
票数 : 4
-
项目定位:一部朝天宫半部南京史记,金陵封面翰锦院,项目落款主城,古往今来,守一处地脉,秉一种情怀,造一席声望,朝天宫旁,在历史与当代相依的地方,落款城心珍稀藏品,左右繁华,丰盛献映。
-
空间意境:时令有序,空间有时,站在历史轮回交替的拐点,赏古城墙焕发出新生的活力,悠然品味一道灵动的景致,写一首眷恋理想的诗......行走其间,感受空间缓慢成长,长出东方元素温润的质地,长出传承都市根源的文脉与精神归属,观礼千年,初心不变,中心风华未曾减淡......
-
空间布局:前厅的设计巧妙融合了都市元素与东方气韵,形成自己独特的空间语言,在这里光影构筑成视觉变量,依托晶莹的金属材质,流泻于苍松、抱石之间...玲珑细巧勾勒出写意之作,搭配金属网格包裹端景,有序演绎,使艺术变得写实可以感知,在江南含蓄的仪式之间,让人流连忘返......
表于形又不止于形,用简单的序列,组织节奏与韵律,为空间注入精神内核。历代文人雅士所追捧的栖居之地无非“几榻有变,器具有式,位置有定,贵其精而便,简而裁,巧而自然也......”水吧的设计传承东西交融之美,简约的吊灯装置、烟雾状的亚克力发光支架、搭配石材与饰面的自然质感,在内厅间构筑起浮光掠影......
空间格局互相渗透交织,打造简洁富有理性的层次感,营造舒适的商务掐谈环境,半围合布局方式界定了区域的功能属性,遵循现代空间美学藏而不露,也打破世俗的社交界限,让人们流畅交互。
视线转换,交叠的维度,在这里,在南京,我们欣赏这份遇见,感受这份眷恋。 -
设计选材:在此次设计的选材上尤其重视经济性与低碳环保属性,选取的材质多为金属不锈钢,理石,局部防火木饰面来确保低碳与环境保护属性,同时对经济性进行考量,顶面使用石膏板油漆工艺处理简约而不简单,墙面取消繁冗复杂的柜体造型,采用木饰面加金属凹槽搭配发光灯带,观景面广阔,大气简练。
-
用户体验:售楼处投入使用后收到了甲方业主使用者一致好评,甲方反馈,设计美观大方,符合项目要求,经济耐用,细节丰富,选材环保,结合南京朝天宫区域范围文化历史脉络,设计对项目文化进行了很好的诠释与还原。开业后售楼处前来咨询的客户每天络绎不绝。

