南湖云顶



作品说明
- 项目类型:住宅公寓
- 项目地点:西安市
- 建筑面积:250.0000㎡
- 项目造价:200.0000万元
- 主案设计师: 苏凯
- 参与设计师:苏凯
- 竣工时间:2023年12月
- 设计机构:名扬空间设计
票数 : 1
-
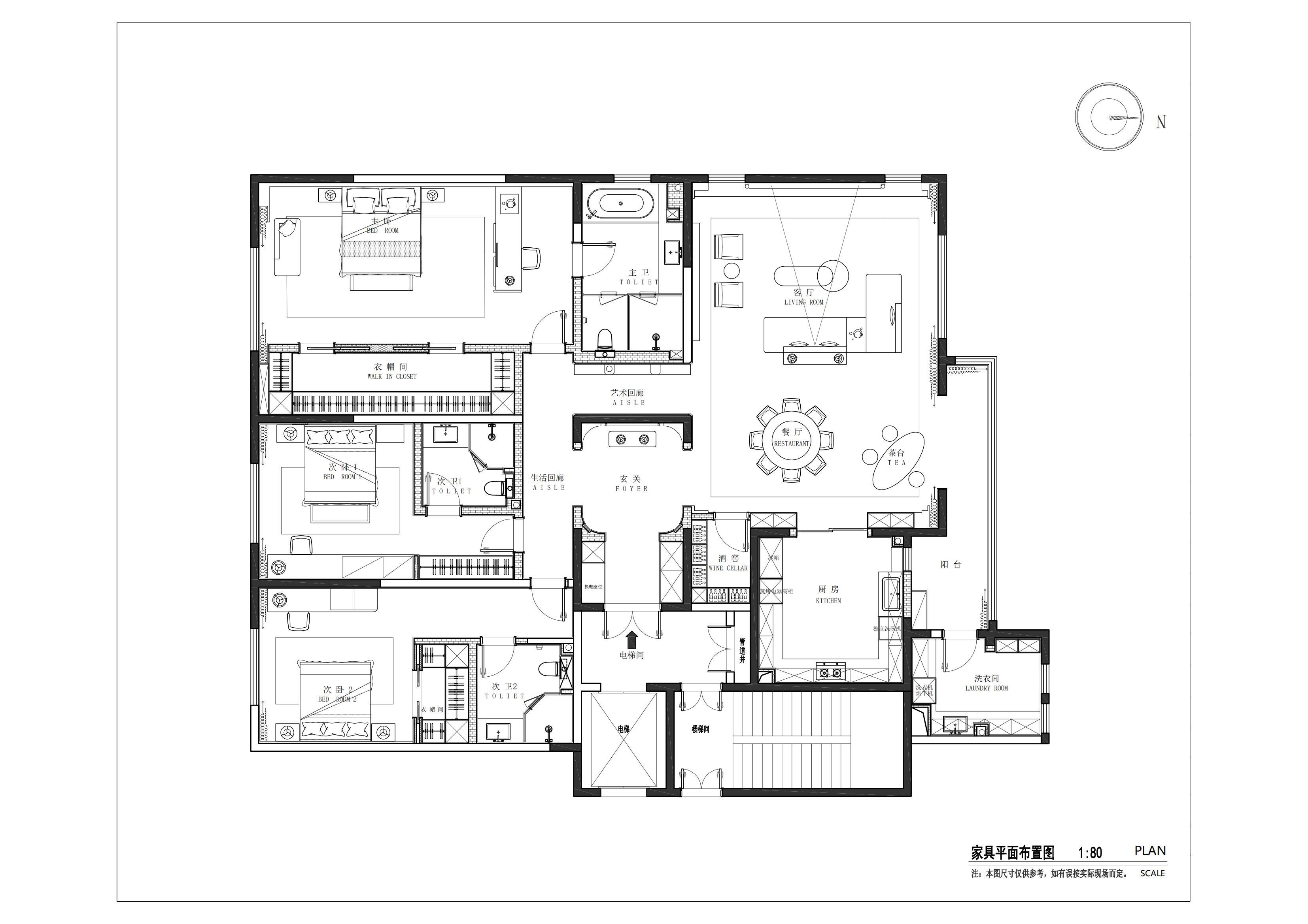
项目定位:项目地处南湖边 可以全览湖景风光 依据以上条件 我们以横厅观湖的方式重新规划了室内的空间布局 以东方人居为主题设计策划了空间
-
空间意境:周边环境景色优美 但有一丝丝的商业味道充斥其中 所以我们采用一些内建筑的手法来弱化
-
空间布局:在空间布局上我们采用环绕动线的设计手法来增加空间的艺术性和通透性
-
设计选材:材质选择上我们尽量在同一种材质上采用不同的应用手法 达到变换的同时节省材料的用量
-
用户体验:好 好 好 好

